Loader Monteith的Ceangal House标志着苏格兰南拉纳克郡的一个工作农场的一个新的、具有建筑特色的中心。Loader Monteith为一个年轻的五口之家完成了新的建筑,结合了现场现有建筑的材料,延续了这个家庭与土地的长期联系。客户James和Lorna Hamilton要求Loader Monteith设计一个新的 "具有建筑学意义的杰出住宅",以取代原有的1800年的农庄建筑,这些建筑早已陷入失修状态。
Loader Monteith’s Ceangal House marks a new, architecturally striking heart of a working farm in South Lanarkshire, Scotland. Loader Monteith completed the new build home for a young family of five, incorporating materials from the existing buildings on-site to continue the family’s long-standing connection to the land. Loader Monteith was briefed by clients, James and Lorna Hamilton, to design a new ‘outstanding home of architectural interest’ to replace the original 1800’s steading buildings that had long since fallen into a state of disrepair.



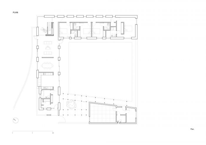
建筑师设计了一个庭院式住宅,呼应了原来的小木屋的语言,组织成L型,以提供对苏格兰无情的风景的庇护。一个新的木头包覆的办公室和客人工作室位于西部边界,通过一个红色铝和木头凉棚与主屋相连。
The architects designed a courtyard home that echoes the language of the original steading, organized in an L-shape to provide shelter from the unforgiving Scottish landscape. A new timber-clad office and guest studio lie at the western boundary, connected to the main house by a red aluminum and timber pergola.

体积是Ceangal之家的设计原则的核心。房子的特点是三个倾斜的红色屋檐,从东到西的体积不断增加,这提供了视觉上的兴趣和宽敞的室内空间。在内部,这些体量容纳了大厅、厨房、餐厅、客厅和阅览室,最大的屋檐的第一层有一间客人的卧室。南北翼包含孩子们的卧室,通往房子最北边的主卧室。
Volume is central to the design principles in play at Ceangal House. The house is characterized by three pitched red gables increasing in volume from east to west act, which offers both visual interest and generous interiors. Inside, these volumes accommodate a lobby, kitchen, dining, living room, and reading room, with a guest bedroom contained on the first floor of the largest gable. The north-south wing contains the children’s bedrooms leading to the master bedroom at the northernmost part of the house.


主要的生活空间内部被安排在一个半断裂的计划中,让光线充满屋檐的倾斜体量,并溢出到邻近的空间。Ceangal住宅也是对该家族与土地的祖先关系的庆祝,Loader Monteith通过对周围农田持续不断的观察,将这种联系凸显出来。这里没有视觉上的 "死角",这意味着家人可以从房子的任何地方欣赏到纵横交错的美景。一个大型的玻璃转角阅览室提供了一个宁静的空间来休息和观察天气,而每一个底层的卧室都通过滑动门或法式门直接连接到私人庭院。
The main living space interiors are arranged in a semi-broken plan, allowing light to fill the pitched volumes of the gables and spill into adjacent spaces. Ceangal House is also a celebration of the family’s ancestral ties to the land, a connection Loader Monteith brings to the fore through constant, continuing views of the surrounding farmland. There are no visual ‘dead ends’, meaning the family can enjoy long views across and down the length of the house from any point within. A large glazed corner reading room provides a serene space to rest and watch the weather, while each ground-level bedroom connects directly into the private courtyard by way of sliding or french doors.


大面积的三层玻璃让房子沿着南面的立面体验到场地的四季变化。根据Loader Monteith对可持续发展的严格要求,旧堡垒中90%的原始砖石被回收并用于整个住宅。客户手工清洗并回收了4000多块当地铸造的砖块,用来铺设整个人字形地板,使新房子在原地打下基础。Loader Monteith克服了技术上的挑战,通过挖掘90厘米深的地基,在厚厚的砖层下加入了地暖。这一解决方案使广阔的砖块地板在整个白天充当热量储存器,并在夜间温和地辐射出温暖。
Large expanses of triple glazing allow the house to experience the changing seasons of the site along the southern elevation. In line with Loader Monteith’s rigorous approach to sustainability, 90 percent of the original masonry from the old steading was reclaimed and used throughout the home. The clients hand-cleaned and reclaimed over 4000 locally-cast bricks which were used to lay a herringbone floor throughout, grounding the new house in its place. Loader Monteith overcame the technical challenge of incorporating underfloor heating beneath the layer of thick brick by digging deep foundations of 90 centimeters. This solution allows the expansive brick floor to act as a thermal store for heat throughout the day and gently radiate warmth overnight.

为了保持较低的运行成本,房子采用了高度绝缘的三层玻璃,空气源热泵提供热量,超级绝缘的金属覆层,以及雨水收集系统。在外部,红色的正弦形包层参考了该地和周边地区的农业遗产,同时加强了房屋在更广泛的景观中的存在。外部还使用了再生砂岩包层,进一步将Ceangal房屋固定在其环境中。房子的名称与斯考特的盖尔语农场的起源有关,该家族最早的经营活动是在1600年代。Ceangal "这个词来自Scot的盖尔语,意思是 "结合"。
To keep running costs low, the house is highly insulated featuring triple glazing throughout, heat from an Air Source Heat Pump, super-insulated metal cladding, and a rainwater harvesting system. Externally, red sinusoidal cladding references the agricultural heritage of the site and the surrounding region, whilst reinforcing the presence of the house in the wider landscape. Reclaimed sandstone cladding was also used externally, further anchoring Ceangal House in its setting. The house is titled in relation to Scot’s Gaelic origins of the farm, the earliest operations of which have been dated by the family to the 1600s. The word ‘Ceangal’ is derived from Scot’s Gaelic meaning ‘to bond’.


Loader Monteith和他们的客户相信,这个词不仅反映在房子的结构上,也反映在它的目的上;加强家庭与他们过去、现在和未来与土地的联系。
Loader Monteith and their clients believe this word is not only reflected in the fabric of the house, but also in its purpose; to strengthen the bond between the family and their past, present, and future connection to the land.






























Architects: Loader Monteith
Area :220 m²
Year :2021
Photographs :Dapple Photography
Manufacturers : Buster and Punch, Schneider Electric, Archispek, Astrolighting, Atkinson Kirby, Esporta, House of Finn Juhl, The Fire Side
Lead Architect : Iain Monteith
Structural Engineer : Entuitive
Main Contractor : Lawrie Construction
Clients : James and Lorna Hamilton
Cdm Co Ordinator : Principle CDM
Joinery : Lawrie Construction
Styling : Nordic Living by Biehl
Country : United Kingdom