拟议的建筑是早期为大学制定的总体规划方案中一系列建议的干预措施的第一个阶段。该项目以城市为前提,旨在改善大学校园与周边环境的互动。因此,我们设想了一个公共广场,它定义了主要的连接轴,不仅阐明了拟议中的建筑,而且还阐明了校园在城市街区中的其余部分,以及城市。
The proposed building is the first stage of a series of recommended interventions within the master plan proposal developed earlier for the University. The project was based on an urban premise that intended to improve the interaction of the university's campus with the immediate surroundings. As a result, a public square that defines the main connectivity axis was envisioned, to articulate not only the proposed building, but also the rest of the campus inscribed within the urban block, and the city.




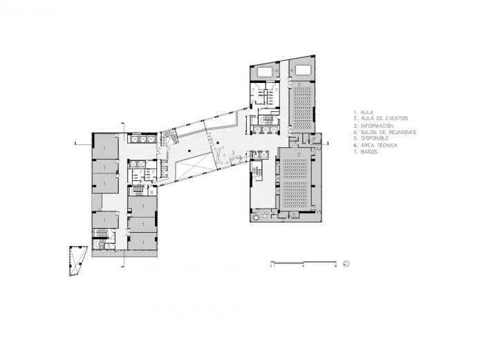
该建筑由三个体量组成,其中两个体量达到了允许的最大高度;而第三个体量,位于其他体量内,也从标题的边界后退,打开了空间,形成了公共广场,定义了从街道(Carrera 5ta)进入的通道。
The composition was developed with three volumes, two of them achieved the maximum height allowed; while the third one, inscribed within the others and also receded from the title´s boundary, opened up the space to generate the public square that defines the access from the street (Carrera 5ta).




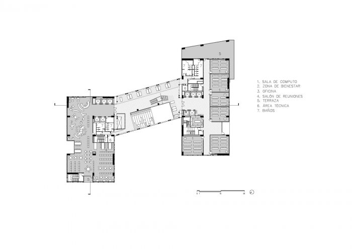
此外,两个较高的体量被设想为一个平台/塔楼战略,其中平台拥有商业用途,以便与城市生活有更多的互动,以及一些集体使用的程序要求。被称为 "垂直校园 "的中央体量被设想为大学生活的核心,独特而有个性。垂直校园 "的类型是作为一种战略来开发的,以增加几个层面的开放/集体空间。
In addition, the two taller volumes were envisioned with a platform/tower strategy, where the platform holds commercial uses, in order to grant greater interactions with urban life, and some collective uses from the programmatic requirements. The central volume of the composition known as the “vertical campus”, was envisioned as the nucleus of the university´s life, singular and distinctive. The typology for the “vertical campus” was developed as a strategy to multiply the open/collective space on several levels.


最后,为了保证建筑质量和稳定性,我们采用了永恒的材料。两个相似体量的外墙由垂直预制混凝土构件形成的重复性开口组成,而 "垂直校园 "的外墙被定义为半透明的对比,具有可见的金属结构。中央体量的透明度创造了灯塔效应,从内到外照亮了周围的环境。
Finally, in order to grant construction quality and also stability, timeless materials were introduced. The facades of the two similar volumes were composed of repetitive openings formed by vertical precast concrete elements, while the “vertical campus” facade was defined as translucent in contrast, with a visible metallic structure. The transparency of the central volume creates the lighthouse effect, lighting the surroundings from the inside out.















Architects: Taller Architects, taller de arquitectura de bogotá
Area : 26174 m²
Year : 2019
Photographs :Alejandro Arango
Manufacturers : Alfa, Hi-Light Industries, P&P Prefabricaciones y proyectos, Pizacryll, Ventanar
Lead Architects : Daniel Bonilla , Marcela Albornoz, Pablo Forero, Julián Restrepo
Architects : Daniel Bonilla, Marcela Albornoz, Pablo Forero, Julian Restrepo, Alexander Roa, Juan Camilo Brito, Juan Rubio, Cesar Grisales, Ixa Bachman
Team : Alexander Roa, Juan Camilo Brito, Fabian Luna, Paolo Ronchi
Interns : Manuela Orozco, Juan Esteban Canal, Gabriela Barreto, Angelica Ruiz
Design Management : Gutierrez Diaz y Cia S.A
Construction Management : Payc S.A.S.
Construction Audit : Ingetec S.A - Gutierrez Diaz
Structural Design : P&P proyectos S.A.S.
Budget : Payc S.A.S.
Soil Study : Alfonso Uribe S y Cia S.A.
Electric Design : Intgecnology S.A.S.
Hydrosanitary Design : Plinco S.A.
Structured Cabling : Intgecnology S.A.S.
Acoustic Design : Acustica, Diseño y tegnologia S.A.S. - Arq. Daniel Duplat
Bioclimatic Consulting : Natural Cooling S.A.S., - Arq. Agustín Adarve
Lighting Design : ClaroOscuro Lighting Design S.A.S.
Landscaping : Paisaje Urbano
City : Bogota
Country : Colombia