KAAN建筑师事务所很自豪地介绍了地理和环境中心(GUZ),这是他们在德国建造的第一个项目。作为一个国际竞赛的获胜作品,该建筑是一个最先进的设施,用于跨学科研究环境问题的解决方案,特别是水、土壤和大气。由于其突出的位置,该建筑与校园的城市布局相得益彰,并强调了该中心的科学重要性。
KAAN Architecten is proud to present the Geo- and Environmental Centre (GUZ), their first project built in Germany. As the winning entry of an international competition, the building is a state-of-the-art facility for interdisciplinary research into solutions for environmental problems, particularly water, soil, and the atmosphere. With its prominent location, the building complements the campus' urban layout and underlines the Centre's scientific importance.




Morgenstelle校区属于Eberhard Karls大学,位于俯瞰山谷和图宾根市的一座山上。校园最初设计于20世纪60年代,根据Harris + Kurrle Architekten的城市概念,校园将通过在中央广场周围建造四座新的建筑来进行扩建。地质和环境中心是这个向南扩展计划的一部分,它将以前分散的地球科学学院和地下水研究所的部门集中起来。合并后的设施旨在促进该建筑中的各个部门和位于该地区的其他自然科学院系之间的交流。
The Morgenstelle Campus belongs to the Eberhard Karls University, located on a hill overseeing the valley and the city of Tübingen. Initially designed in the 1960s, the Campus will be extended by constructing four new buildings around a central square, according to the urban concept by Harris + Kurrle Architekten. Geo- and Environmental Centre is a part of this planned southward expansion bringing together the previously scattered departments of Earth Sciences Faculty and the Institute for Groundwater. The combined facility aims to stimulate exchange between individual departments in the building and other natural science faculties located in the area.

该建筑部分嵌入场地的斜坡中,是一个低矮的细长结构,共有六层。在其100×50米的占地面积内,它包括两个在不同层次上布置的庭院,以应对场地的倾斜地形。建筑的南面朝向图宾根市,形成Morgenstelle校园的面孔,而北面的外墙为校园广场创造了一个清晰的空间边界,并标志着建筑的主入口。
Partially recessed into the site's slope, the building is a low elongated structure spreading over six floors. Within its 100 by 50 m footprint, it encloses two courtyards laid out on different levels to cope with the inclined topography of the site. The southern side of the building opens towards the city of Tübingen, forming the face of Morgenstelle Campus, while the northern facade creates a clear spatial boundary of the campus square and marks the main entrance of the building.


地质和环境中心将公共教学和学习区域与专门的研究和工作空间相结合。位于北部的礼堂和研讨室等公共设施位置便利,从校园广场可以很容易地到达。同时,实验室和车间面向东方,办公室在西部和南部。从广场通过开放的北部立面的直接视线将游客拉入一个巨大的双层接待大厅。同样坚固材料的延续加强了与周围环境的联系,与深色胡桃木细节的温暖形成对比。作为建筑的会议和互动中心,入口大厅里有很多学生工作区,通过玻璃内墙可以看到教学区。连接上下两层的独立雕塑楼梯将视野向上延伸,开放的画廊提供了进入建筑深处的路线。
Geo- and Environmental Centre combines public teaching and study areas with specialised research and workspaces. Conveniently located communal facilities like the auditorium and seminar rooms in the north are easily reached from the campus square. Meanwhile, the labs and workshops face east, with offices lining the west and south. Direct sightlines from the square through the open northern façade pull the visitors into a sizeable double-height reception hall. The continuation of the same robust materials reinforces the connection with the surroundings, contrasted by the warmth of the dark walnut detailing. As the building's hub for meeting and interaction, the entrance hall is peppered with student workspaces providing views to the teaching areas through glazed interior walls. A free-standing sculptural staircase linking the upper and lower levels brings the views upwards, where open galleries provide routes deeper into the building.

大厅的隐藏特征是由当地艺术家马丁-布鲁诺-施密德设计的不稳定的建筑,他通过纵向分割支撑柱子来挑战建筑的静态结构。一条穿过7.5米高的柱子的垂直缝隙揭示了它们的内部,挑战了结构的承重能力的极限。
The hall's hidden feature is the precarious kunst am bau by local artist Martin Bruno Schmid who challenges the building's statics by splitting the supporting pillars lengthways. A vertical slit through the seven and a half meter high columns reveals their interior, challenging the limits of the structure’s load-bearing capacity.

在布局效率和未来灵活性要求的指导下,实验室和车间被安置在建筑东侧的两个紧凑的区块中。它们根据 "从粗到细 "的原则分布在所有六层,从最低层的岩石制备车间开始,到最高层的洁净室。
Guided by demands for efficiency of the layout and future flexibility, the laboratories and workshops are accommodated in two compact blocks in the eastern section of the building. They are distributed across all six levels based on the principle 'from coarse to fine', starting with the workshops for rock preparation on the lowest level and the cleanrooms at the top.

从远处看,这栋建筑就像一块石头,有很深的山脊,暴露出一个玻璃的体积。仔细观察后,发现外墙被水平的环状物包裹,与现有的校园建筑的特征相匹配。
Seen from afar, the building is like a block of stone with deep ridges that expose a glazed volume. Upon closer inspection, the facade reveals to be wrapped in horizontal rings matching the character of existing campus buildings.


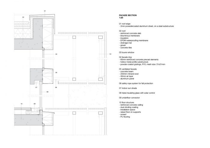
高度和深度均为2米,这些看似坚固的环带实际上是由预制混凝土构件和格栅包覆的空心结构,使通风和维护成为可能。这些带子还提供了遮阳和光照控制,使外部的遮阳窗变得多余。因此,中心的专业活动被更清楚地展示出来,特别是当建筑在夜间亮起时,在校园中形成了一个明显的标志。长时间不间断的视野是可能的,因为外墙带是由从连续的无窗格玻璃中分离出来的剪力墙支撑的。这些混凝土翅片作为外部承重支撑,使内部布局具有灵活性。
Measuring 2 metres in height and depth, the seemingly solid bands are actually hollow structures clad in prefabricated concrete elements and gratings, enabling access to ventilation and maintenance. The bands also provide sun shading and light control, rendering external sun blinds superfluous. Specialised activities of the Centre are therefore on display more clearly, making a visible mark on the Campus especially when the building lights up at night. The long uninterrupted views are made possible because the façade bands are held up by shear walls detached from the continuous mullion-free glass. These concrete fins serve as external load-bearing supports, allowing interior layout flexibility.

办公室和会议室通过内部走廊连接到北面、西面和南面的立面上,并将两个内部庭院围起来。通过高度精细的石质外墙和整齐的窗户,庭院的特征让人想起图宾根的历史中心,那里以前是旧办公室的所在地。这样一来,内部办公室熟悉的家庭环境弥补了外部立面的景观视野的不足。
The offices and meeting rooms linked via internal corridors line the north, west and south façades, enclosing the two inner patios. With highly detailed stone-clad facades and neat rows of windows, the character of the courtyards is evocative of Tübingen's historic centre where the old offices were previously located. In this way, a familiar domestic environment for the inner offices compensates for the landscape view available to the ones on the outer façades.


院子之间的垂直轴线将实验室区与办公室连接起来,并容纳了日常运作所需的所有功能区。它位于建筑的中心,形成了GUZ员工的社交空间和天井之间的一个重要的空间定位点。通过隐蔽而亲密的南部庭院可以看到周围的草坡,而北部庭院则从入口大厅望向校园广场,并与开放的公共空间相连。"KAAN建筑师事务所的联合创始人Dikkie Scipio教授总结道:"虽然是为地球服务的,但它是为人服务的建筑,基于方便的访问、可见性和交流。
A perpendicular axis between the courtyards connects the laboratory blocks to the offices and houses all the functional areas needed for day-to-day operation. Located at the heart of the building, it forms a space for GUZ staff to socialise and an essential spatial orientation point between the patios. The surrounding grassy slopes are visible through a secluded and intimate southern courtyard, while the northern one looks out over the entrance hall towards the campus square and links with the open public spaces. "Although dedicated to earth, it is a building for people based on easy access, visibility and communication," concludes Prof. Dikkie Scipio, co-founder of KAAN Architecten.


























Architects : KAAN Architecten
Year : 2022
Photographs :Brigida Gonzalez
City:TÜBINGEN
Country:Germany