该项目位于埃斯坎东殖民地,一个消除了过去和现在之间界限的殖民地。在这里,生活和家庭企业被固定在社区内。由于其战略位置,它拥有广泛的服务和设备。该地区靠近大型车辆道路,靠近各种公共交通网络,方便居民的流动。
The project is located in the Escandón colony, a colony that erases the line between the past and the present. Where life and family businesses are anchored in the community. Due to its strategic location it has a wide range of services and equipment. The area is close to large vehicular roads and close to various public transport networks that facilitate the mobility of its inhabitants.




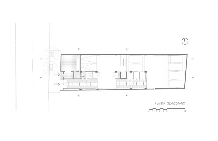
该项目位于343米的区域内,呈梯形,东西走向。该项目面临的挑战是如何保留其在1940年代由INBA建造的原始外墙。并实现一个先锋建筑的住房用途。该建筑由两个5层的体量和一个半地下室停车场组成,每层有3个复式住宅。这两个体量被循环体量所分隔,通过一个带有两个庭院的走廊分配到各个房屋,高度达到三层。
The project is located in an area of 343 m. with a trapezoidal shape and an east-west orientation. The challenge of this project is to preserve its original façade built in the 1940s by the INBA. And achieve a vanguard building for housing use. The building consists of two volumes of 5 levels and a semi-basement parking, on each level there are 3 duplex homes. The volumes are separated by the circulation volume that distributes the access to the houses through a corridor with two courtyards up to triple height.

主立面的体量被隐藏在物业内部,以突出保留的建筑并尊重该地区其他现有建筑的参数。
The volume of the main facade is tucked inside the property to highlight the preserved building and respect the parameters of other existing buildings in the area.

该项目由10栋房屋和一个位于底层的商业场所组成。自由楼层的标准是最大限度地扩大面积和优化每栋房子的建筑方案的根本,外部和内部的空间关系是通过连接天井和阳台与公共区域(如每栋房子的客厅和饭厅)的落地窗实现的。这使得整个空间的照明和自然通风最大化。
The project consists of 10 houses plus a commercial place on the ground floor. The criterion of free floor is fundamental to maximize the area and optimize the architectural program for each house, the spatial relationship between exterior and interior is achieved by means of floor to ceiling windows that connect the patios and balconies with public areas such as living room and dining room of each house. This allows to maximize the lighting and natural ventilation throughout the space.

每个住宅的内部循环是一条非常坦率的纵轴,分布在不同的空间。该建筑采用黑色块状墙和黑色混凝土墙的侧切来加强结构,并采用明显的混凝土板来框住东西两面的阳台。
The interior circulation in each dwelling is a very frank longitudinal axis that distributes to the different spaces. The building is built with black block walls and black concrete walls on the side cut to stiffen the structure and apparent concrete panels to frame the balconies on the East and West facades.

建筑物的开口从地板到天花板,矩形比例为1/2.5,产生了一种节奏,并配置了立面的发展,建筑物在其最长的一面(南向)使用了照明和通风,每个体积的末端都有开口,还有一个天井,保证了交叉通风,这是可能的,因为相邻的财产没有开发,将来也不会,因为它是一个地铁设施。
该项目有一个雨水收集蓄水池,在屋顶有3个屋顶花园,在底层有一个商业空间。
The openings of the building go from floor to ceiling with a rectangular proportion of 1 / 2.5 that generates a rhythm and configure the development of the façade, the building uses the lighting and ventilation in its longest side (south orientation) with openings at the end of each volume, and a patio that warranties cross ventilation, this is possible since the adjoining property is not developed and will not be in the future since it is a Metro facilitiy.
The project has a rainwater collection cistern, 3 roofgardens at the roof level and a commercial space on the ground floor.





















Architects: Estudio Tacubaya
Area : 16546 ft²
Year : 2018
Photographs :Mauricio Salas, Angélica Ibarra
Manufacturers : Lafarge Holcim, Grupo JOBEN, Marca Madera, NOVIDESA, URREA
Lead Architects : Arq. Jesús A Rodríguez Loria
City:MEXICO CITY
Country:Mexico