我们在Valdalpone的一家工厂内,该工厂生产蜜饯已有一百多年的历史,Valdalpone是维罗纳和维琴察之间的一个农业区,以其Prunus Avium种植园或樱桃树而闻名。
We are inside a factory that has been producing candied fruit for more than a hundred years in Valdalpone, an agricultural area between Verona and Vicenza famous for its Prunus Avium plantations, or cherry trees.



干预措施是在一个生产建筑的一楼,有一个倾斜的屋顶,内部高度约为5米,周边有双窗。
The intervention is on the first floor of a production building with a pitched roof, an internal height of about five meters, and double windows on the perimeter.


需求是创建一个展示烹饪的空间,他们可以拍摄使用其糕点产品的示范视频,一个具有相关服务的厨房,以及一个新的会议室。
The need was to create a show cooking space where they could shoot demonstration videos for the use of their pastry products, a kitchen with the relative services, and a new meeting room.


考虑到内部空间的高度,我们的策略是插入一个新的双层木质体,与现有的工业内部分离,并能容纳所有需要的功能。工业遗产在周边墙壁上裸露的梁柱中可以看到,这些梁柱像墙壁一样被涂抹,就像一张空白的画布,突出了项目的线条。
木制的体量突出了天花板的高度,用实体和空隙的游戏界定了空间的节奏,并创造了前所未有的内部视野。
Given the height of the interior space, the strategy was to insert a new double-height wooden volume that detached itself from the existing industrial interior and could accommodate all the required functions. The industrial legacy is visible in the exposed beams on the perimeter walls, which, painted like the walls, are like a blank canvas that highlights the lines of the project.
The wooden volume highlights the height of the ceiling, defining the rhythm of the spaces with plays of solids and voids and creating unprecedented internal views.

新的体积被设计成一件大型家具,其灵感来自Antonello da Messina的画作 "San Girolamo nel studio",这是我们在米兰理工学院的教授真正的痴迷之作,画中一个文艺复兴时期的人在一件可居住的家具中工作。这幅画也因无懈可击的透视法的使用而闻名,恢复了一个生活在其中但同时又是乌托邦式的严谨的空间形象。
The new volume was designed as a large piece of furniture, inspired by Antonello da Messina's painting "San Girolamo nel studio", a real obsession of our professor at the Milan Polytechnic, in which a Renaissance man works inside a habitable piece of furniture. The painting is also known for the impeccable use of perspective, restoring the image of a space that is lived in but at the same time utopian and rigorous.

另一个参考是,剧院必须创造一个进入后不能立即看到的风景区。为了强调空间的戏剧性,类似于幕布的浅色波浪形窗帘被用来遮蔽众多的窗户。
The other reference is to the theater having to create a scenic area not immediately visible upon entering. To emphasize the theatrical aspect of the space, light wavy curtains resembling a curtain were used to darken the numerous windows.

该体量被设计成一个真正的木制房屋,采用带有杉木支柱和横梁的气球框架结构,上面覆盖着okumè木,其颜色让人想起樱桃木,事实上,该公司的旗舰产品就是樱桃。选择这种建筑技术是因为它很轻,便于运输和组装。
The volume was designed as a real wooden house, with a balloon frame structure with fir pillars and beams, covered in okumè wood, which recalls cherry wood in color, in fact, the company's flagship products are cherries. The construction technology was chosen for its lightness and to facilitate transport and assembly.

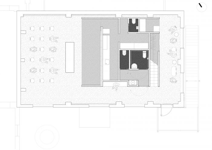
新体量的内部设计包含了所有需要的功能:在一楼靠近入口处有一个小的咖啡区,一个休息区和一个衣柜区,然后继续沿着走廊有一个楼梯通向夹层,在一个与墙齐平的地方有顾客的浴室,继续往前走,主房间打开,柜台、厨房与储藏室和员工浴室都位于这里。在夹层中是一个会议室,中央有一张大桌子。
木质结构是由南蒂罗尔州的木匠制作的。有了它,在结构元素的预制方面做了非常有趣的工作,除了速度和精度之外,还实现了本来不可能实现的质量。
The interiors of the new volume have been designed to contain all the required functions: on the ground floor near the entrance a small coffee area, a sitting area, and a wardrobe area, then continuing along the corridor a staircase leads to the mezzanine floor, behind a flush with the wall there are the customers' bathrooms and continuing on the main room opens up where the counter, the kitchen with the storeroom and the staff bathroom are located. On the mezzanine floor is a meeting room with a large central table.
The wooden structure was made by carpentry in South Tyrol. With which a very interesting job has been done on the prefabrication of the structural elements, which has allowed, in addition to speed and precision, a quality that would otherwise be impossible.







Architects: co.arch studio
Year : 2023
Photographs :Simone Bossi
Manufacturers : Equilibri Furniture, Rossini
Lead Architects : Andrea Pezzoli, Giulia Urciuoli
Design Team : Matteo Torti, Deniz Agaoglu
City : Verona
Country : Italy