夏尔科体育中心是一个多项目城市运营的一部分,包括一个地下停车场、一座路桥(从Chevalet街和法兰西大道延伸)和一个公共花园。
Charcot Sports Centre is part of a multi-program urban operation including an underground car park, a road bridge (extending from rue du Chevaleret and avenue de France), and a public garden.




该项目是基础设施和建筑的结合。坐落在街道、铁轨和Halle Freyssinet之间,该场地确定了三角形的规划,一个折叠的地面,以及一个出现在街道上的单一外墙。
The project is a combination of infrastructure and architecture. Situated between the street, railway tracks, and Halle Freyssinet, the site defines the triangular plan, a folded ground, and a single facade emerging onto the street.


体育馆的屋顶支撑着一个公共花园,将长廊延伸到铁路和现有城市地形之上。 在宏伟建筑的包围下,该项目采用了一种直的姿态,在必要时不超过地面。重视使用,它是一个更广泛的城市动态的基础,而不是其主要目的地。
The gymnasium's roof supports a public garden that extends the promenade above the railway and the existing urban topography of the city. Bordered by imposing buildings, the project adopts a straight posture not exceeding the ground as much as necessary. Valuing the uses, it is the base of a wider urban dynamic than its primary destination.


在其城市环境中,该建筑创造了一个水平层的景观,略微倾斜的石头体量强调了花园的重量,玻璃元素向体育馆内部开放。
In its urban context, the building creates a landscape of horizontal layers, the slightly sloping stone volume emphasizing the weight of the garden and the glazed elements opening towards the interior of the gymnasium.

外立面突出了项目的结构框架,反光的铝包层创造了一个动态的移动体反射。
The facade highlights the project’s structural frames with reflective aluminum cladding creating a dynamic reflection of moving bodies.

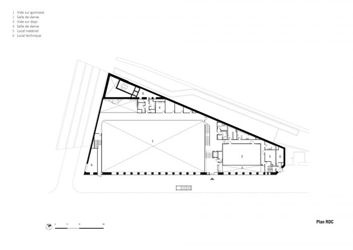
攀岩馆和体育馆形成了一个相同的体量。一个木质的斜面天花板将整个建筑统一在一个向入口处弯曲的宽阔姿态中。舞蹈厅背对着外墙,提供了一个双高的道场。这个空间沐浴在来自上方的自然光中。
The climbing hall and the gymnasium form part of an identical volume. A wooden slated ceiling unifies the whole in an ample gesture curving towards the entrance. The dance hall, set back from the facade, offers a double-height on the dojo. This space is bathed in natural light coming from above.









Architects: ODILE+GUZY architectes
Area : 3200 m²
Year : 2021
Photographs :David Foessel, Julien Lanoo
Manufacturers : Laudescher, Coil
Lead Architects : Lucie Garzon, Edith Chevillot
Acoustics : Acoustb
Civil Engineers : Auger structure
Mechanical Engineers : IGC
Graphic Design : FUGA
City : Paris
Country : France