Charoenpong幼儿园是该地区一所古老而受欢迎的泰国私立学校,由托儿所和幼儿园组成。
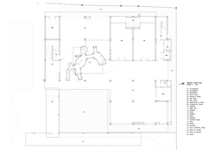
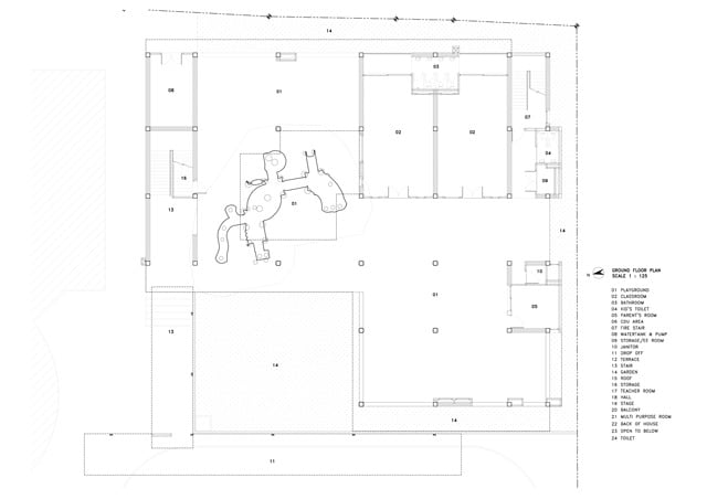
该项目的简介是通过改造以前的操场和院子来扩大学校建筑。新建筑有7间教室、浴室、娱乐区、教员室、午餐区和操场。设计理念是保持儿童的操场活动如常。地面层为孩子们提供了开放的游戏空间,并与周围的元素互动。
Charoenpong Kindergarten is an old and popular private Thai school in the area, comprised of Nursery and Kindergarten level.
The brief for the project was to enlarge school building by transforming the formerly playground and yard. The new building has 7 classrooms, bathroom, recreational area, faculty room, lunch area and playground. Design concept is to keep children’s playground activities as usual. Ground level offering open-plan space for children’s play and interact with the surrounding elements.




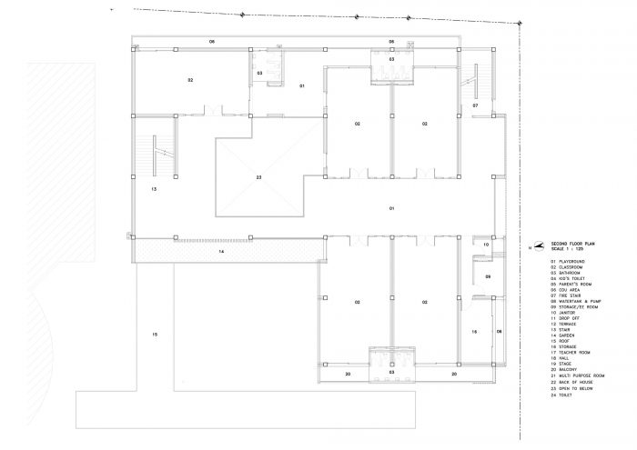
在二楼,有一个高天花板的中央球场,与地面上的游乐场相连。这一层包含5间教室和沿走廊的活动空间。三楼被设计成一个供所有儿童参与的大型休闲区,另一边是一个教员室。
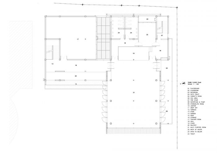
In the second floor,there is a central court with high ceiling connected to play yard on the ground. This floor contains 5 classrooms and activity spaces along the corridor. Third floor is designed to be a large recreational area for all children’s participation, and a faculty room in the other side.



建筑物的体量是由玩具发展而来的,每个几何形状都被重叠起来,并通过颜色定义分区。建筑内有一些空隙,以便使空间流动并将每个区域连接在一起。
The building’s mass is developed from toys, each geometry forms has been overlapped and defined zoning by color. There are some voids in the building so as to flow the space and connect each area together.































Architects: I Like Design Studio
Area : 1600 m²
Year : 2013
Photographs :Soopakorn Srisakul
Design Team : Narucha Kuwattanapasiri
City : Bangkok
Country : Thailand