位于索恩河畔夏隆的贝尔维尤区由各种典型的城市郊区建筑类型组成。该项目位于一个封闭的场地上,远离街道,对其周围的环境和设计概要做出了回应,并要求采用木材建筑解决方案。
Located in Chalon-sur-Saône, the Bellevue district consists of a variety of building typologies typical to that of a city’s suburbs. Situated on an enclosed site and set back from the street, this project responses to its surrounding environment and to the design brief that imposed a timber construction solution.


一组零散的中间住房(20套住宅)和一排排排屋(6套住宅)被安排在一个中央种植的小巷周围,为植被和户外空间留出空间。
A set of fragmented intermediate housing (20 dwellings) and a row of terraced houses (6 dwellings) are arranged around a central planted alley leaving space for vegetation and outdoor spaces.

项目的起源
由OPAC 71发起的设计竞赛最初设想建造两座3至4层的独立建筑和集体住宅。为了充分利用场地,我们建议对空隙和实体给予同样的重视,并提供较低规模的类型。
Genesis of the project
The design competition launched by OPAC 71 initially envisaged the construction of two distinct buildings of 3 to 4 floors and collective dwellings. To make the most of the site, we proposed to put as much emphasis on voids as on solids and offer lower scale typologies.

因此,该项目是围绕着自由功能空间和建筑体量交替进行的,这取决于场地的质量和限制。从街道入口到场地北部界限,入口、室外停车场、中间房屋、小巷、花园和独立的房屋,创造了一个城市序列,与邻近建筑的规模相匹配。
The project is thus built around alternating free functional spaces and built volumes depending on the qualities and constraints of the site. From the street entrance to the northern site limit, entrance, outdoor parking, intermediate housing, alley, gardens and individual houses, creates an urban sequence that matches the scale of the neighboring buildings.

设计空隙
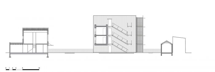
中间房屋的零散体量在停车场和中央小巷之间创造了一个过滤器。空隙有助于创造通过人行天桥和外部楼梯延长的序列,为城市提供显著的框架。
Designing voids
The fragmented volumes of the intermediate housing create a filter between the parking and the central alley. The voids help create sequences prolonged through the footbridges and external staircases offering remarkable frames towards the city.

中间住宅在街道和后面一排个人住房之间创造了一种对话。内部布局允许多样化的类型,并有畅通无阻的外部视野。
Intermediate dwellings create a dialogue between the street and the row of individual housing behind. The interior layout allows for a diversity of typologies with unobstructed views towards the exterior.

建筑体量是由垂直的木头覆盖的。这种振动的游戏通过隔离屏沿着梯田延伸,确保对每个住宅的阳光和视觉保护。
The built volumes are clad in vertical wooden. This play of vibration extends along the terraces through separation screens ensuring solar and visual protection to each dwelling.

室外空间的质量,是项目的重要组成部分,给常绿植被留下了很大的空间。白桦树将引入一个细长的轮廓,创造一个与建筑体量的对话。
The quality of the outdoor spaces, an essential component of the project, leave a large place to evergreen vegetation. The birch trees will introduce a slender silhouette creating a dialogue with the built volumes.

铺设的中央小巷允许人们进入这排房子。每栋房子都有自己的私人花园,在紫色的雾状树篱后面。 一个木格子遮阳篷保护朝南的起居室免受太阳辐射。在房子的后面,厨房和天井的交替体量确保了与现有城市结构的衔接。
A paved central alley allows access to the row of houses. Each house has its own a private garden behind purple haze hedges. A wooden lattice awning protects the south facing living rooms from solar gain. To the back of the houses, the alternating volumes of kitchen and patio ensure the articulation with the existing urban fabric.

第五立面得到了特别的关注。房屋的瓦片屋顶为俯瞰房屋创造了一个多彩的景观。与周围住宅的单调外墙形成自愿的对比,让人想起勃艮第历史建筑的特色模式。
Particular attention has been paid to the fifth façade. The tiled roofs of the houses create a colorful landscape to overlooking housing. Contrasting voluntarily with the monotone facades of the surrounding dwellings, it recalls the characteristic pattern of historic buildings in Burgundy.

住宅
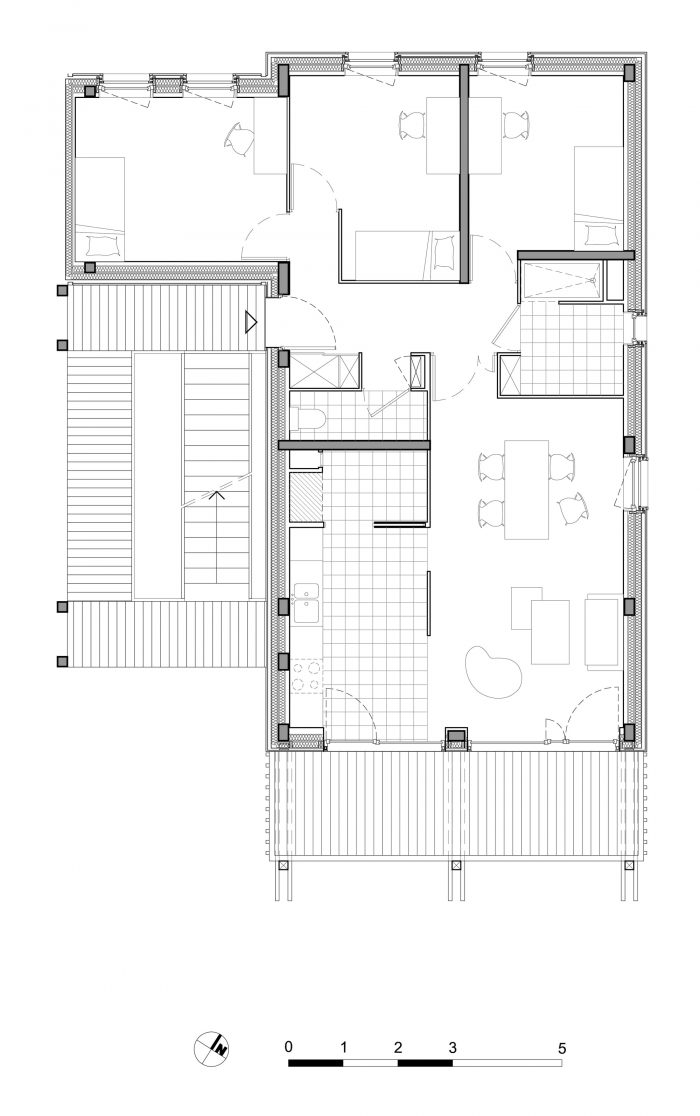
每个住宅都是双层的,浴室和厨房都是沿着外墙放置的,并受益于直接的自然光和通风。
Dwell
Each of the dwellings are double oriented, bathrooms and kitchens have been placed along the façade and benefit from direct natural light and ventilation.

入口的位置是为了使生活区的空间最大化。厨房和起居室根据不同的类型由宽敞的花园、天井或阳台延伸。
蔓延的公共区域、路径、外部楼梯,允许各种用途、做法和社会互动。
Entrances are placed in order to maximize space for the living areas. The kitchen and living rooms are extended by generous gardens, patios or balconies according to each typology.
Spread common areas, paths, external staircases, allow a wide variety of uses, practices and social interactions.

建设性原则
使用具有成本效益的木制建筑方法是一个优先事项。结构、木柱、混凝土楼板和木质外墙框架以经济的方式满足规范要求,同时取消了房屋内部的中间支撑部件,以保证空间的灵活性。这种简单的解决方案是通过计划的合理性和类型的严格叠加而实现的。
Constructive principles
Using a cost-effective wood construction method was a priority. The structure, wooden posts, concrete floor slab and wooden façade framework meet the normative requirements in an economical way while eliminating intermediate support elements inside the housings to guarantee the flexibility of the spaces. This simple solution is made possible by the rationality of the plans and a rigorous superposition of the typologies.

该项目外墙是由热改性木质云杉制成的,以确保覆层的和谐老化。随着时间的推移,它将达到一种炭灰色的色调,并与外墙的白色金属元素形成对比。
The projects facade is made of thermally modified wood spruce to ensure a harmonious aging of the cladding. Over the years it will achieve an charcoal grey tint and contrast with the white metal elements of the façades.


















Architects: ODILE+GUZY architectes
Area : 3706 m²
Year : 2017
Photographs :David Foessel
Manufacturers : Jannet Hubert, Pernin et Fil, Pernin et Fils
Lead Architects : Julien Odile, Michaël Guzy
Consultants : BETREC, Sophie Barbaux
Client : OPAC Saône et Loire
City : Chalon-sur-Saône
Country : France