在一块面积为5x25米的土地上,樱桃民宿是一个将大自然的气息融入到独特的现代建筑风格中的项目。该作品是许多不同风格、线条和形状的结合,不遵循任何规则。该建筑的建筑形状具有强烈的线条,结合V型柱系统成为外墙的亮点,与会安的传统瓦片屋顶系统和柔和的螺旋楼梯商业交织在一起。强烈的形状和柔和的曲线在建筑的整体外观上创造了平衡与和谐。
On a plot of land with an area of 5x25m, Cherry homestay is a project with a breath of nature integrated into a unique contemporary architectural style. The work is a combination of many different styles, lines, and shapes and does not follow any rules. The building has an architectural shape with strong lines, combined with the V-pillar system becoming the highlight of the facade, interwoven with the traditional tile roof system of Hoi An and the soft spiral staircase commercial. Strong shapes and soft curves create balance and harmony in the overall look of the building.



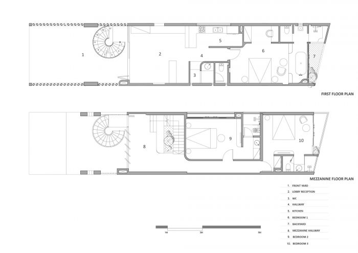
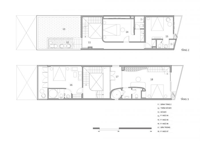
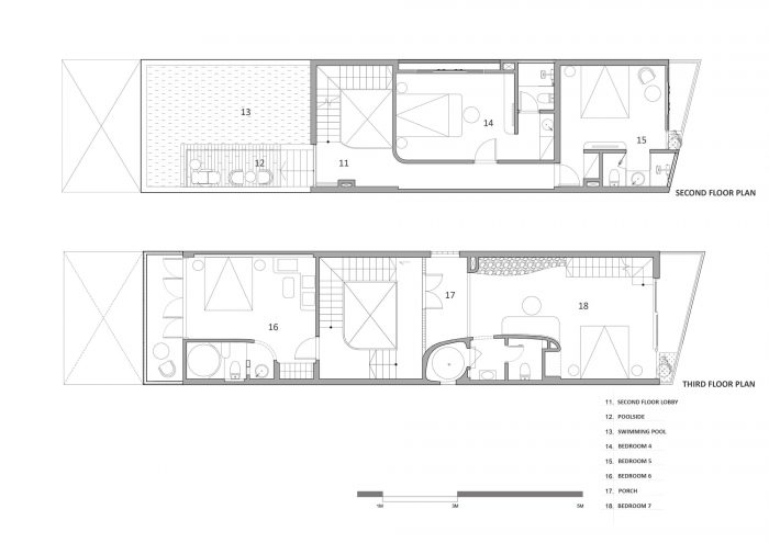
在建筑师的天才之手下,房屋的安排和空间问题得到了彻底的解决,但仍然保证了度假村的必要功能,同时也保证了它保持符合会安市的建筑规定。建筑师将房间的数量从9间减少到7间,以保留部分空间,使之更有吸引力。游泳池不再安排在1楼,因为1楼没有私密性,而且狭窄,而是移到2楼,视野开阔,提供更多的私密性。此外,为了充分利用屋顶瓦片的高度,建筑师在顶层房间增加了一个夹层,使房间空间更加宽敞和独特。
With the talented hands of architects, the arrangement and the problem of space of the house is solved thoroughly but still ensures the necessary functions of a resort, and at the same time ensures it stays in compliance with the construction regulations of Hoi An city. The architects have reduced the number of rooms from 9 to 7 rooms to reserve part of the space for a more attractive move. The swimming pool, instead of being arranged on the 1st floor, which is not private and narrow, has been moved to the 2nd floor, where the view is broadened and provides more privacy. In addition, to make the most of the roof tile height, the architect added a mezzanine floor in the top room, which makes the room space more spacious and unique.


楼梯的设计形式多样,适合各个位置,在移动中创造出一种新的感觉。倒转楼梯使其更加特别,甚至当人们移动时,会忘记他们必须爬楼梯到4层。
Stairs are designed in a variety of forms and suitable for each position, to create a new feeling in moving. Reversing the stairs makes them even more special, even when people move, they forget that they must climb the stairs to 4 floors.



还是可持续的绿色理念,开放的空间优化了自然光,并创造了空气流通的源头,帮助调节生活空间,其灵感来自安南的建筑师,并通过材料语言保留了会安地区的特点。房屋的整体建筑风格为乡村风格,采用当地的天然材料,如磨石、水泥、竹子、砖头、瓦片等,并通过手工处理,细致到每一个细节,成为项目的独特亮点。
Still, a sustainable green philosophy with an open space that optimizes natural light, and creates a source of air circulation to help regulate living space is inspired by the architects of An Nam and preserves the characteristics of the region Hoi An through material language. The overall architecture of the house is in a rustic style with local natural materials such as grinding stone, cement, bamboo, bricks, tiles, etc., and are handled manually, and meticulously to every detail, becoming the unique highlights of the project.

带着现代建筑的外表,深入到内部是一个关于传统建筑和老房子特色的故事。在现代建筑的核心中放置了一个传统的建筑特征,那就是木桁架结构,以及钢筋混凝土结构中的瓦片屋顶。不管是现代的还是传统的,老的还是新的,都有自己的价值,都有自己的美,都需要被保护和发扬。
Bringing the outside appearance of modern architecture, going deep inside is a story about traditional architecture and old house features. A traditional architectural feature placed in the heart of modern architecture is a wooden truss structure, and tile roof in a reinforced concrete structure. Whether it's modern or traditional, old, or new, both have their own values, and their own beauty and need to be preserved and promoted.



















Architects: AN NAM Architecture
Area: 450 m²
Year: 2022
Photographs:AN NAM Architecture
City: Хойан
Country: Vietnam