Chido餐厅位于马德里,在Chamberí社区。该项目是在一个300平方米的场地上开发的,其中180平方米在1925年的受保护建筑的底层。这一层是在一条纵轴上开发的,创造了一条穿过项目的路径。
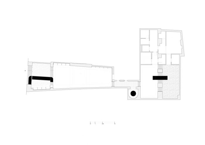
Chido restaurant is located in Madrid, in the Chamberí neighborhood. The project is developed in a 300m2 venue, with 180 m2 on the ground floor of a protected building from 1925. This level is developed on a longitudinal axis that creates a path through the project



空间的合并。干预措施插入了一个基于空间串联的组织系统。餐厅被分割成5个连续的氛围,交替使用两种具有独特品质的体量。第一种类型的空间是压缩的。通过使用10×10的瓷砖和成套的镜子来实现最大的影响,稀释了房间的限制。第二种类型是扩大的。这些沙龙用水泥树脂和顶部的切口覆盖,露出黑色的技术天花板,增强了对比度。它们之间的过渡源自于通道。这些交叉点的特点是其弯曲的线条和粗糙的纹理。
Concatenation of spaces. The intervention inserts an organizational system based on the concatenation of spaces. The restaurant is segmented into 5 consecutive atmospheres, alternating two types of volumes with distinctive qualities. The first type of space is compressed. The maximum impact is achieved by using 10x10 tiling and sets of mirrors that dilute the limits of the rooms. The second type is expanded. These salons are covered with cement resins and cutouts on top to reveal a black technical ceiling that enhances contrast. The transitions between them originate from passages. These intersections are characterized by their curved lines and rough texture.



通过对比来限定。空间之间的连续性被一个恒定的+2,50的海拔高度所强调。在这个极限之上和之下,有一个由对立面组成的上下部分之间的连接。在纵轴上,压缩的反射空间和较大的哑光空间之间的顺序和对比也证明了用途的划分。在压缩的空间中,垂直元素和镜面天花板的选择扭曲了对空间中真实高度的感知。垂直的霓虹灯、落地的镜子和光洁的瓷砖也支持Z轴。在较大的空间里,切口揭示了一个继承下来的技术性天花板,它覆盖着一个黑色油漆的蛭石纹理。这个天花板与灰色调的水泥树脂沙龙形成对比。所有的装置都被收集并悬挂在黑色技术天花板下。沙龙的家具用橡木、大理石表面和有图案的软垫打破了米色的基调。
Qualification by contrast. Continuity between the spaces is highlighted by a constant +2,50 elevation. Above and below that limit, there is a connection between the upper and lower parts by the opposition. On the longitudinal axis, the sequence and contrast between compressed reflective spaces and larger matte ones also evidence the division of uses. In compressed spaces, the choice of vertical elements and mirrored ceilings distort the perception of the real height in the space. Vertical neons, floor-to-ceiling mirrors, and gloss-finished tiling also support the z-axis. In the larger spaces, cutouts reveal an inherited technical ceiling which is covered with a black-painted vermiculite texture. This ceiling contrasts with the beige-toned cement resin salons. All the installations are collected and suspended under the black technical ceiling. The salon's furniture breaks the beige tone with oak wood, marble surfaces, and patterned upholstery.





奇异的机制。一系列的铁制品被横向地分布在空间中。这些机制可以通过共同的特征来识别。一个酒吧柜台和两个大桌子,一个用于私人餐厅,另一个作为沙龙之间的连接,强调了水平面。这些表面是用黑色大理石雕刻的,而它们的垂直面则用镜板覆盖,以保持不被注意。水平面和垂直面之间的接缝处填充了一个隐藏的LED,指出了它在沙龙中的重要性。
Singular mechanisms. A series of ironwork objects are distributed transversally to the spaces. These mechanisms are recognizable by common characteristics. A bar counter and two large tables, one for the private dining room and the other as a link between salons, emphasize the horizontal plane. These surfaces are carved in black marble, while their vertical planes are covered with mirror plates to stay unnoticed. The joints between horizontal and vertical surfaces are filled with a hidden LED that points out its importance in salons.














Architects: MOCA estudio
Area : 300 m²
Year : 2022
Photographs :Asier Rua
Manufacturers : Hisbalit, RCR deco
Lead Architects : Carlos Moles Romero, Adrián Sánchez Castellano
City : Madrid
Country : Spain