位于汉堡森林边缘的一座新的住宅楼现已完工,作为儿童和青少年的家。
Located near the edge of the forest in Hamburg, a new residential building is now finished as a home for children and adolescents.


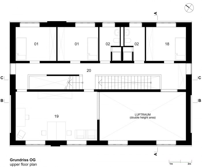
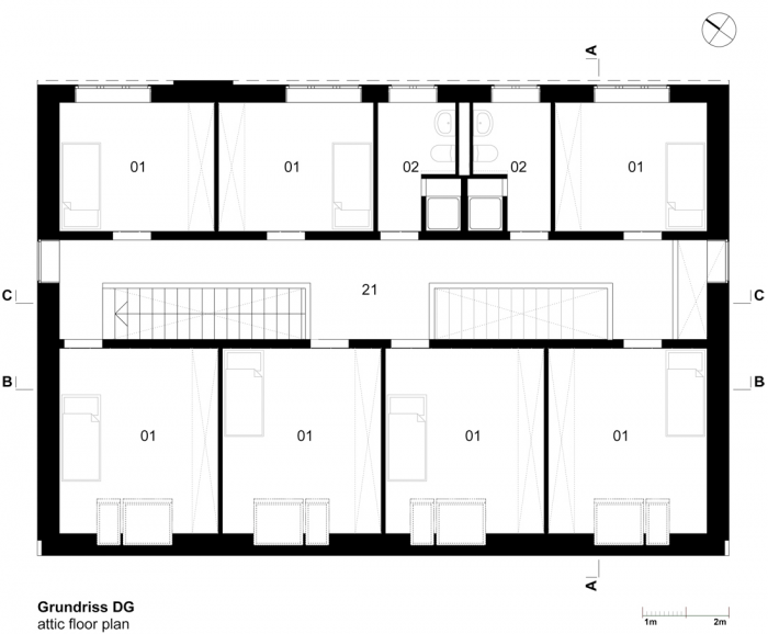
该建筑的特点是基于双色浮雕立面,包容了紧凑的房屋体积。一个中央楼梯穿透了楼层之间的划分,有利于交流,为社区创造一个中央开放空间。
The characteristics of the building are based on a two colour relief facade embracing a compact house volume. A central staircase penetrates the division between floors in favour of communication to create a central open space for the community.




















Architects: J. Mayer H. Architects
Year :2008
City:HAMBURG
Country:Germany