场地位于Sharosu-gil的一个十字路口的拐角处,这里有狭窄的小巷和宽阔的道路相交。由于颁布了法律,以确保在十字路口有更好的视线,该建筑的平面类型为切角,从主干道看是建筑的正面,形成一个扭曲的五边形平面。我们以这个切角的平面图开始设计。
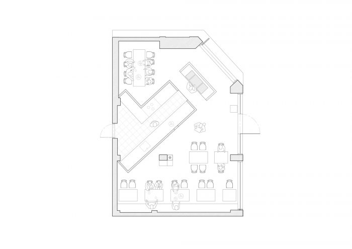
The site is located at a corner of an intersection on Sharosu-gil where both narrow alleys and wide roads meet. Because of the law enacted to secure better sight at intersections, the building was built to have a plan type with a cut corner, which serves as the front of the building from the main road and creates a distorted pentagonal plane. We began our design with this cut-corner floor plan.




Chinmok,一家烤鸡店是一个专注于肉本身的品牌。我们把肉的预烤箱放在这个切角处,并在前面安装了一个无框的折叠门,这样路人就可以在街上很好地观看烤肉活动。与这个预烤箱相连的厨房箱从建筑的切角处挤压出来,一直通向后面的仓库,斜着切过空间。
Chinmok, a grilled chicken restaurant is a brand that focuses on the meat itself. We placed the meat pre-grilling box in this cut corner and installed a frameless folding door on the front so that passers-by can watch grilling activities well from the street. The kitchen box connected to this pre-grilling box is extruded from the building’s cut corner and leads all the way to storage in the back, cutting across the space diagonally.


由于厨房箱的存在,整个空间被自然地划分为主厅和私人房间。厨房箱体用抛光的不锈钢装饰,不仅象征着高效的现代厨房系统,也反映了周围的环境。
Due to the kitchen box, the entire space is naturally divided into the main hall and private room. The kitchen box is finished with polished stainless steel to not only symbolize an efficient modern kitchen system but also reflect its surroundings.


大厅空间是通过移除附着在现有空间上的内部杂物而形成的。我们暴露了由横梁和柱子组成的建筑混凝土结构,并积极利用了去除墙上的油漆过程中的抛光图案。这种图案创造了一种洞穴般的氛围,并与现代厨房的盒子形成对比。在某种程度上,这将使你想起原始时代人们在山洞里用火吃肉的情景。
The hall space was created by removing the interior debris that had been attached to the existing space. We exposed the concrete structure of the building consisting of beams and columns, and actively utilized a polishing pattern from the process of removing the paint on the wall. This pattern creates a cave-like atmosphere and contrasts with the modern kitchen box. In a way, this will remind you of people eating meat with a fire in a cave in the primitive age.











Architects: Malf, Workment
Area : 70 m²
Year : 2022
Photographs :Yousub Song
Manufacturers : Behr, L&C stendal, Todocristal
Lead Architects : Joonwoo Cho, Youhwan Cho, Seungyeop Song
Country : South Korea