一个弯曲的外部庭院决定了这个位于新加坡的家庭住宅的特征。由于郊区的高度建筑化,庭院的概念是为了创造向内的景观,并在不影响隐私的情况下将光线和通风引入房屋。
A curved external courtyard defines the character of this family home in Singapore. Due to the highly built-up nature of suburban districts, the courtyard was conceptualised as a means to create inward facing views, and introduce light and ventilation into the house without sacrificing privacy.





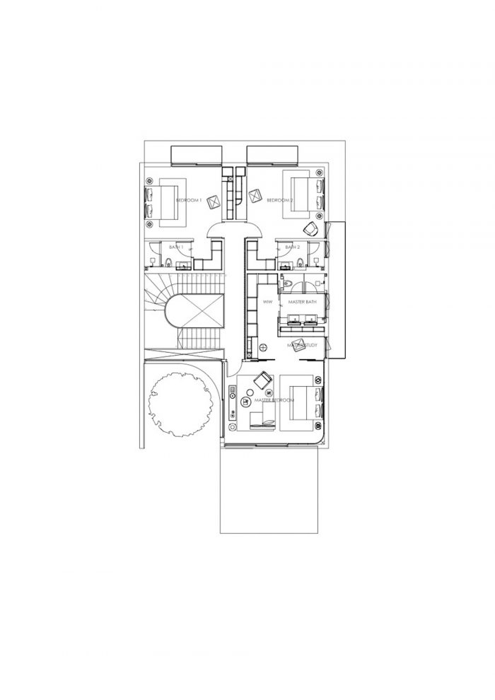
典型的新加坡住宅的门窗都是朝向周围的邻居和街道的。房子的形式是对这种城市环境的回应,向内看是院子,高高的围墙提供了与相邻邻居的隐私。这座房子的一个重点是邀请自然光和内部景观,庭院与主要生活空间和楼梯中庭相连。
The typical Singapore house has fenestration which faces outwards to the surrounding neighbours and street. The form of the house was derived as a response to this urban context, with inward facing views to the courtyard and a high party wall providing privacy from the adjoining neighbour. A key focus in this house is to invite natural light and views deep within, with the courtyard linked to the main living spaces and staircase atrium.


弦乐之家 "是由于曲线上的两点之间的关系而得名,它颠覆了这一概念,我们采用了一个弯曲的建筑形式来强调庭院从房屋中被雕刻出来的概念,就像一个消极的花瓶一样的空间,包含了一片景观或种植。弯曲的外墙与房屋的其他部分形成对比,加强了这一点,后者主要是直线和矩形的形式。这一点一直延续到房子内部的拱形楼梯的设计上,它与院子密切相关,并从院子中获得了它的形状。
Chord House, termed due to the notion of how two points on a curve are related, inverts this idea, and we employed a curved building form to emphasize the notion of the courtyard being carved out from the house, much like a negative vase-like space containing a piece of landscape or planting. This is reinforced by the contrast of the curved façade to the rest of the house, which is mainly straight and rectangular in form. This continues on to the design of the arching staircase inside the house, which is closely related to the courtyard and derives its shape from it.



浅色灌木锤纹花岗岩石材被用来覆盖建筑体,黑色铝框作为对比元素。我们有意让外部的石墙继续延伸到内部的楼梯中庭,以便使内部和外部的门槛无缝衔接。院子里的一棵树在当地被称为 "豹子树",它是从马来西亚采购和进口的。一个定制的圆形水磨石长凳被浇筑在它的底部。阳光将树枝的影子投射到房子深处,根据一天中的不同时间,在楼梯中庭的墙上形成不同的图案。在室内,灰色大理石地板和深浅橡木墙板的组合完成了材料调色。
Light bush-hammered granite stone was selected to clad the building mass, with black aluminium frames as contrasting elements. It was intentional that the external stone cladded wall should continue on into the interior staircase atrium, so that the threshold between inside and outside should be seamless. For the courtyard, a single tree known locally as a 'leopard tree' was sourced and imported from Malaysia. A custom-made circular terrazzo bench was casted at its base. The sun casts shadows of the tree branches deep within the house, forming varying patterns on the staircase atrium wall depending on the time of day. On the interiors, grey marble flooring and a combination of dark and light oak wall panelling complete the material palette.

















Architects: Ming Architects
Area: 5000 ft²
Year: 2021
Photographs: Studio Periphery
Manufacturers: Carpentry and Interior, Ironmongery, Landscaping, Lighting, Sanitary wares, Spray paint texture, Stone and granite finishes
Lead Architects: Tan Cher Ming, Erica Chan
Structural Design: JS Tan Consultants
Country:Singapore