"朱拉隆功纪念医院护士宿舍"(新宿舍)或来自玛哈-扎克里-诗琳通公主殿下的皇家名称 "NAWARACHUPATUM",是泰国红十字会朱拉隆功医院的护士宿舍。该建筑有26层,有523个房间。大部分房间适合2人居住,有各种设施,如生活区、图书馆、食堂、洗涤室和多功能室。
“Nurse Dormitory Chulalongkorn Memorial Hospital” (The new dormitory) or the royal name from Her Royal Highness Princess Maha Chakri Sirindhorn, “NAWARACHUPATUM”, is a dormitory for nurses at Chulalongkorn Hospital, The Thai Red Cross Society. The building has 26 floors with 523 rooms. Most of the room suitable for 2 people with various facilities such as living area, library, canteen, washing room, and multipurpose room.





项目地点周围有4栋现有的医生和护士宿舍。场地周围有3栋高层建筑,这是一条供车辆通过的大道。场地中间有一栋低层建筑,已被拆除,取而代之的是新宿舍。
The site of the project was surrounded by 4 existing buildings of doctors' and nurses’ dormitories. There were 3 high-rise buildings around the site which was a thoroughfare for vehicles to pass by. There was a low-rise building that stood in the middle of the site which had been demolished to be replaced by this new dormitory.

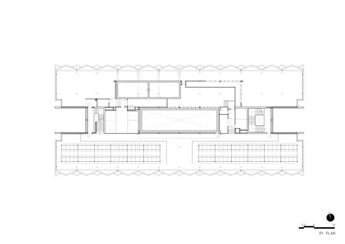
我们的建筑师团队决定设计新宿舍的布局,使其与现有的3座建筑相互影响,形成一个封闭的庭院,与医院拥挤、繁忙的气氛相分离。建筑物的底层是一个连接主干道和院子的开放空间,隐喻着作为进入这个安静祥和的住宅区的大门。
Our architect team decided to design the layout of the new dormitory to interact with 3 existing buildings in a way that creates an enclosed courtyard, separated from the crowded, busy atmosphere of the hospital. The ground floor of the building is an open space connecting the main road with the courtyard, metaphorically act as a gateway into this quiet and peaceful residential area.

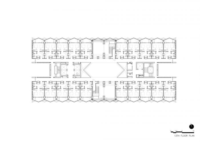
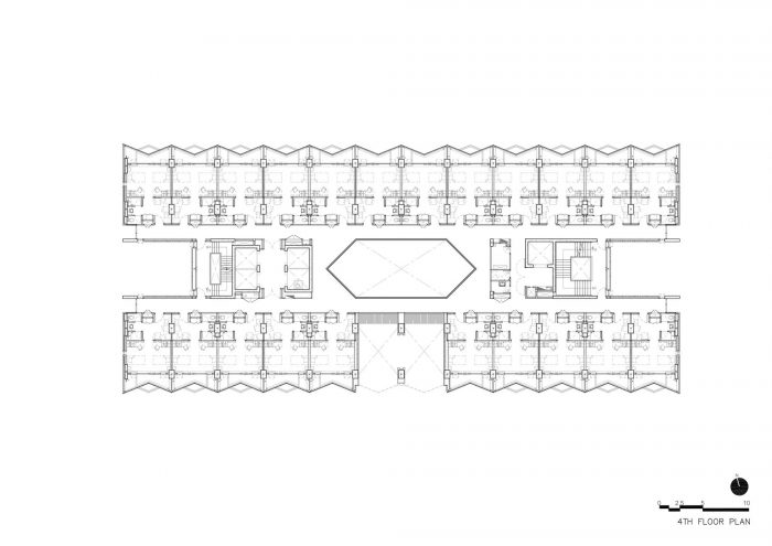
关于我们的研究,大多数护士喜欢自然通风的房间而不是空调房间。在阳台上种树也受到护士们的欢迎。基于上述信息,设计的主要概念是为了满足需求而构思的。通过分析一个典型的具有双负荷走廊布置的宿舍,我们的团队意识到有2个问题,缺乏自然光和室内通风不良。
Regarding our research, most of the nurses prefer naturally ventilated rooms to air-conditioned rooms. Planting trees on the balcony are also popular among the nurses. Based on the above information, the main concept of the design to meet the needs conceived. By analyzing a typical dormitory with a double-load corridor arrangement, our team realized that there are 2 problems, lack of natural light and poor indoor ventilation.

为了解决上述问题,我们将建筑的2个侧面分开,做成2个中间有空隙的单负荷走廊安排。这一设计决定使更多的自然光进入走廊,并在建筑中间形成一个通风烟囱,便于从地下室到屋顶的通风。我们在1楼和建筑的中心设计了一个大的空气通道。我们还在屋顶上设计了另一个大的空气通道,以创造一个堆叠效应,将空气从地下室引到顶部。外墙通道的设计灵感来自于 "UNA-LOME DAENG",这是泰国红十字会标志的原始设计。
To solve the above problems, we separate 2 sides of the building to make 2 single-load corridor arrangements with a gap in the middle. This design decision allows more natural light into the corridor and creates a ventilation chimney in the middle of the building that facilitates ventilation from basement to rooftop. We design a big air channel on the 1st floor and at the center of the building. And we also design another big air channel on the rooftop to create a stack effect, draws air from the basement up to the top. The design of the channel on the facade got inspiration from the "UNA-LOME DAENG", the original design of Thai Red Cross Society’s logo.


对于房间的设计,我们把入口的门设计成双门,包括一个实心门和防虫网。当实心门和阳台处的窗户打开时,走廊上的空气可以流经房间。典型的房间布局被分为2个部分。毗邻走廊的第一部分是两个室友的共享空间,包括茶水间和洗手间,用一扇推拉门将该区域与卧室分开。当住户决定将实心门打开,让自然空气流过房间时,滑动门将为他们创造隐私。第二部分是2个住户的卧室。每张床放置在房间的对面,为每个居民创造一个私人空间,同时共享中间的走道,通往阳台。
For the design of the room, we designed the entrance door to be a double door including a solid door and insect screen. When the solid door and the window at the balcony opened, the air from the hallway can flow through the room. The typical room layout is divided into 2 parts. The 1st part adjacent to the corridor is a sharing space for both roommates including a pantry and restroom with a sliding door to separate the area from the bedroom. The sliding door will create privacy for the resident when they decide to leave the solid door open to let natural airflow through the room. The 2nd part is the bedroom for 2 residents. Each bed placing on the opposite side of the room to create a private space for each resident while sharing the walkway in the middle leads to the balcony.

由于宿舍靠近附近的其他建筑,我们将阳台设计成一个斜角。这将避免与其他建筑的直接视线,以保持住户的隐私。人字形的阳台允许更多的阳光照射到这个区域,适合种植树木和根据居民的需要晾晒衣服。
Since the dormitory is close to other nearby buildings, we then design the balcony to have a slated angle. This will avoid direct sightline to other buildings to maintain the privacy of residents. The zigzag balcony allowing more sunlight to the area which suitable for planting trees and drying clothes according to the needs of the resident.

栏杆的设计采用垂直铝翅,遮阳板采用穿孔铝板,可以掩盖不整齐的元素,如晾衣架、空调冷凝器和洗衣机。我们选择铝作为外墙的材料,因为它们耐用且易于维护。这种独特的立面和阳台构成创造了光与影的模式,体现了建筑的简单系统化设计,同时隐藏了用户的各种复杂的功能需求。
The design of the railing with vertical aluminum fin and sunshade with a perforated aluminum sheet will conceal untidy elements such as drying rack, air conditioner condensing unit, and washing machine. We choose aluminum as materials for the facade since they are durable and easy to maintain. This unique facade and balcony composition create the pattern of light and shadow that reflected the simple systematic design of the building while concealing various complicated functional requirements of the users.




















Architects: Plan Architect
Area: 32000 m²
Year: 2021
Photographs: Panoramic Studio
Manufacturers: American Standard, Tree Concept, Fórmica, Suntech, TOA, WILLY
Lead Architects: Nitisak Chobdamrongtham, Apichai Apichatanon, Wara Jithpratugs, Naphasorn Kiatwinyoo, Nathida Sornchumni
Landscape: PL Design
Structural Design: KCS
Mechanical Engineering: Plan Engineering
Architects:Plan Architect
City:Khet Pathum Wan
Country:Thailand