制造业世界正处于世界范围内的快速转型之中。地球的紧迫性、新的生产需求和不断变化的标准只是推动该行业进入一个新的增强层面的几个因素。这是一个雄心勃勃的项目的出发点,由建筑和数字设计工作室Calibro Zero(Francesco Carota, Margherita Iperique, Giorgio Salza)与建筑师Federico Gatto和工程师Marina Carbone合作,为CIM 4.0(工业制造能力)进行设计,这是一个意大利卓越中心,实现和促进教育和开放式创新计划,帮助意大利企业向工业4.0过渡。
The manufacturing world is in the middle of a worldwide rapid transformation. Planetary urgencies, new production needs and constantly changing standards are just a few of the factors that are driving the industry into a new augmented dimension. This is the starting point of an ambitious project, carried on by the architectural and digital design studio Calibro Zero (Francesco Carota, Margherita Iperique, Giorgio Salza), in partnership with the Architect Federico Gatto and the Engineer Marina Carbone, for CIM 4.0 (Competence Industry Manufacturing), an Italian excellence center realizing and promoting educational and open innovation programs to help Italian enterprises in their transition towards the industry 4.0.




该设计涉及重新利用都灵市的一个前教育空间,以实现数字制造的试验线:一个高度创新的空间,在结构和程序方面,中小型企业可以在进入市场之前测试他们的产品和流程。为了实现这一目标,Calibro Zero对基于类型学功能和分类的综合和陈旧的空间划分提出了质疑,在一个单一的空间中主持不同功能的混合:从展览空间到小型工业生产,从办公活动到实验实验室,直至培训和教育活动。
The design concerns the reuse of a former educational space in the city of Turin for the realization of a pilot line dedicated to digital manufacturing: a highly innovative space, both in structural and programmatic terms, in which small and medium enterprises can test their products and processes before going to the market. To achieve this goal, Calibro Zero has questioned consolidated and obsolete spatial divisions based on typological functions and categorizations, hosting a hybridization of different functions in a single space: from the exhibition space to small industrial production, from office activities to the experimental laboratories up to training and educational activities.

设计围绕着生产空间的可重构性、灵活性和人性化等概念展开,将典型的工业空间和材料策略与来自家庭和戏剧世界的灵感相结合。因此,新的数字试验线的特点是一个可识别的形象,直观地代表了CIM 4.0品牌和能力中心所承载的价值。
The design revolves around concepts such as reconfigurability, flexibility, and humanization of the production space, combining typically industrial spatial and material strategies with inspirations derived from the domestic and theatrical world. Thus, the new Digital Pilot Line is characterized by a recognizable image that intuitively represents the CIM 4.0 brand and the values of which the Competence Center is the bearer.


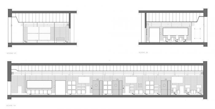
现有内墙的拆除形成了一个开放和协同的空间,在这个空间里,多种社会活动和实践可以汇聚在一起,相互交叉,并根据不同的需要灵活地重新配置自己。因此,空间组织允许不同的人流和空间使用的重叠,在这里,操作区和休息区交替出现,在这里,CIM4.0专家可以展示并让参观者看到这些空间,即使是在完全工作的情况下。
The demolition of existing internal walls gives shape to an open and synergic space in which multiple social activities and practices can converge, intersect and reconfigure themselves flexibly according to contingent needs. The spatial organization thus allows the overlapping of different flows of people and uses of space where the operational areas alternate with rest areas, in which CIM4.0 experts can show and let visitors see the spaces even in a full working capacity.



周边的墙被设想为一个支持家具元素变化安排的基础设施。由蓝色格栅板制成的连续对墙,是专门为这个场合设计和建造的包层系统,可以用一个连续的表面隐藏外部电气系统,在上面放置各种家具组件(如书架、书桌、屏幕等),这些组件配备了一个共同的挂钩系统,可以很容易地被拆除和重新定位。
The perimeter wall is conceived as a support infrastructure for the changing arrangement of furnishing elements. Made with a continuous counter-wall in blue grating panels, the cladding system, specially designed and built for the occasion, allows hiding the external electrical system with a continuous surface on which to place various furnishing components (such as shelves, desks, screens, etc.) which, equipped with a common hooking system, can be easily removed and repositioned.

内部隔断是由一个窗帘系统制成的,这使得根据不同的需要将空间划分为不同的区域成为可能。这些可移动的墙壁可以根据要进行的活动而打开或关闭,也可以完全重新定位,以便随着时间的推移产生不同的配置。所有这些元素都有助于使空间具有高度的可重构性和响应性,并具有良好的美学效果,以应对生产性世界的挑战,这个世界正朝着一个增强的维度发展,并达到克劳斯-施瓦布所定义的第四次革命。
The internal partitions are made of a curtained system, making it possible to divide the space into distinct areas on the basis of different needs. These movable walls can be open or closed according to the activities to be carried out, as well as completely repositionable, so as to produce the different configurations over time. All these elements contribute to making the space highly reconfigurable and responsive, as well as aesthetically well-finished, responding to the challenges of a productive world that is moving towards an augmented dimension and reaching what Klaus Schwab has defined as his fourth revolution.










Architects: Calibro Zero
Area : 420 m²
Year : 2021
Photographs :Fabio Oggero
Architectural Designer : Giorgio Salza
Project Leader, Architectural Designer, Artistic Director : Francesco Carota
Visual Designer, Artistic Director : Margherita Iperique
Architectural Designer, Construction Manager : Federico Gatto
Engineer, Construction Manager : Marina Carbone
Client : CIM 4.0
Structure Engineer : Eurodesign
General Contractor : Eurodesign
City : Turin
Country : Italy