如何建立可持续性?这是一个非常现实的问题--它让很多人以及科堡应用科学与艺术大学的Rainer Hirth教授博士指导的 "可持续设计与制造 "课程的硕士生为之感动。该项目从一些关于建筑行业问题的研讨会开始。根据联合国2020年的一份报告,建筑业占全球所有二氧化碳排放量的38%,对资源的消耗巨大且持续增长,例如,在德国,建筑业占所有废物的55%左右。不断增长的人均生活空间需求--目前在德国平均为48平方米--通过反弹效应消除了在可持续性方面的所有进展。而我们在能源消耗等方面的计算是否都是正确的?
How to build sustainability? A very current question - that moves a lot of people, as well as Master students of the course „DESIGN and MAKE sustainably“ guided by Prof. Dr. Rainer Hirth at Coburg University of Applied Sciences and Arts. The project started with a number of seminars about problems coming from the building sector. According to a UN report from 2020, the construction sector is responsible for 38 % of all CO2 emissions globally; for an immense and constantly growing consumption of resources, and, for example, in Germany for around 55 % of all waste. The constantly increasing demand for living space per capita - the average is currently 48 sqm in Germany - eliminates all progress in sustainability through the rebound effect. And is everything correct what we calculate in terms of energy consumption etc.?



因此,我们想到了建立一个 "替代性 "的研究建筑,并在五年内用一到两个居民来监测 "现实 "的性能。我们的目标是建立一个基于 "从摇篮到摇篮 "原则的实验性建筑,不产生二氧化碳,不与砂石相连,只用太阳能发电,并且只用重复使用和可再生的材料制造。该项目从城市规划分析开始--很快就很清楚,小房子只对城市内部的密集化有意义,在剩余的地块上,在建筑物的顶部,或者在停车场。
So the idea came up to build an „alternative“ research building and to monitor the performance „in reality“ with one or two inhabitants over a period of five years. The goal became an experimental building based on the cradle-to-cradle principle, CO2 - neutral, not connected to the grit, operated by solar power only, and made exclusively from reused and renewable materials only. The project began with an urban planning analysis - it became clear very soon that Tiny Houses only make sense for densification in inner cities on leftover plots, on top of buildings, or in car parks.

在任何情况下,它们都不应该消耗郊区的新土地。建成后的原型占据了一个停车场,因此也是一个减少汽车交通的声明。什么是小房子?我们需要什么才能生活在一个可接受的舒适水平上?一个定义的问题。自我定义的假设--一张双人床,一个衣柜,一个笔记本电脑工作空间,一个微型浴室,以及一个小型优化的厨房,在一个明亮、开放和建筑精致的建筑中。当然还有一张可以放松的沙发和 "聪明 "而灵活的家具,至少可以接待四位客人。
Under no circumstances should they consume new land in the outskirts. The built prototype occupies a car park and is thus also a statement of less car traffic. What is a Tiny House? What do we need to live on an acceptable level of comfort? A question of definition. The self-defined assumption - a bed for two, a wardrobe, a laptop working space, a micro bathroom, and a small optimized kitchen in a light, open, and architecturally sophisticated building. And surely a sofa to relax and „smart“ and flexible furniture to host at least four guests.


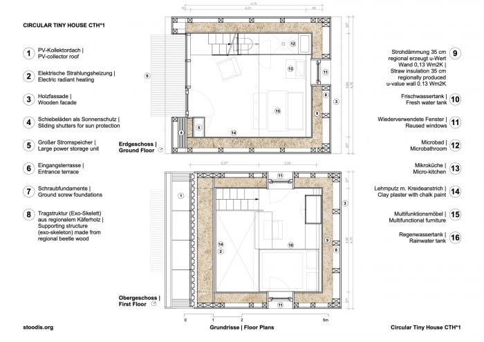
该研究楼有19平方米的可使用面积,分两层。它必须是可持续的、廉价的、易于建造和拆卸的 - 遵循从摇篮到摇篮的原则。循环小房子CTH*1团队完全避免了二氧化碳排放的建筑材料/矿物粘合剂,如混凝土石灰石膏等。它几乎完全由可再生材料制成,如秸秆、木材和粘土。所有的建筑材料都来自附近:木材被树皮甲虫轻度破坏--仍然坚固,但已经不能满足高的视觉标准。而粘土、白垩和重复使用的建筑部件(如窗户)则从附近的拆迁建筑中获得。
The research building has a 19 sqm useable area on two levels. And it had to be sustainable, inexpensive, and easy to build and to dismantle - following the cradle-to-cradle principle. The Circular Tiny House CTH*1 team avoided completely CO2-emitting building materials/mineral binders such as concrete lime plaster, etc. It is almost exclusively made from renewable materials such as straw, timber, and clay. All building material came from nearby: timber lightly damaged the bark beetle - still strong but not fulfilling the high visual standards anymore. And clay, chalk, and reused building components like windows gained from nearby demolished buildings.


摇篮到摇篮原则的应用也被指定,既不使用钉子也不使用胶水。在五年的监测期过后,建筑可以用电池螺丝刀完全拆除。既没有拆迁锤,也没有垃圾箱,稻草和粘土会被供应商犁掉。木材、窗户、门等将回到建筑部门。
The application of the cradle-to-cradle principle was also specified, neither nails nor glue was used. The building can be dismantled completely with a battery screwdriver after the monitor period of five years. There will be neither a demolition hammer nor a rubbish container the straw and the clay will be plowed under by the supplier. Timber, windows, doors, etc will come back to the building sector.

校园内的CTH'1将作为设计学院的客座公寓使用,使用期为3月15日至12月1日--通过屋顶集成的光伏模块和大型电池组,在10.5个月内完全自主。雨水将被收集、净化,并用于所有用途。这些假设将在五年内得到科学的监测和验证。
The CTH’1 on the campus will be used as a guest flat of the Faculty of Design with a semester-related period of use from 15 March to 1 December - fully autonomous for 10,5 months by roof-integrated photovoltaic modules and a large batterie. Rainwater will be collected, purified, and used for all purposes. These assumptions will be scientifically monitored and verified over a period of five years.














Architects: Faculty Design / Coburg University Germany
Area : 19 m²
Year : 2022
Photographs :Sebastian Kolm
Lead Architect : Rainer Hirth
Lba Ma Arch : Anders Macht
Design Team : Oliver Frank, Christopher Nguyen
Rendering : Anders Macht
Interior Volume : 66m3
Living Area According To Wfl Vo : 19 m²
U Value Of Walls, Roof And Floor : 0,13 W/m2K
Calculated Heating Energy Requirement : 900 W
Photovoltaics Collector Area : 22 m²
Photovoltaics Collector Power : 4,4 KWp
Capacity Electricity Storage : 9,6 kWh
Power Of Installed Radiant Heating : 900 W
Fresh Water Tank, External Filling : 300 l
Rainwater Storage Tank : 750 l
Black Water Tank, External Emptying : 500 l
Cost Of Materials For Shell, Cost Group Kg : 300 30.000 €
City : Coburg
Country : Germany