该项目必须满足几个限制条件:翻新和部分提升现有的 "附属建筑 "的住宿,以增加酒店的容量,创建一个建筑来连接这个 "附属建筑 "和Bastide,设计一个培训中心,包括一个会议室、一个工作间和三个办公室,在占用的场地上进行这些工程,更确切地说,是继续使用睡觉的地方。施工现场必须围绕这个问题进行管理和组织。
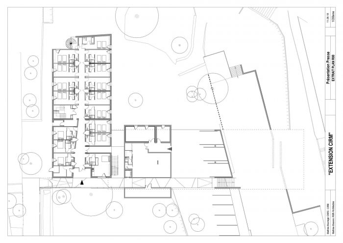
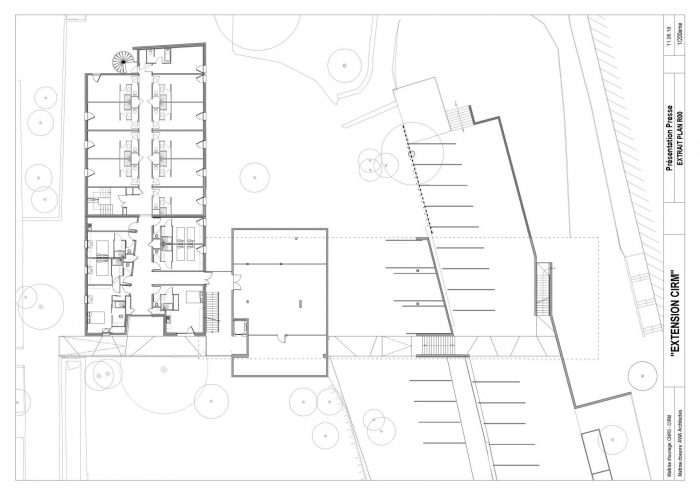
The project had to meet several constraints: to renovate and partially elevate the existing accommodation of the "l'annexe" in order to increase the capacity of the hotel, to create a building to link this " l'annexe " to the Bastide, to design a training center with a conference room, a work room, and three offices and to carry out these works in the occupied site and more precisely by continuing the use of the sleeping premises. The construction site had to be governed and organized around this problem.




这个项目的主要想法是在CIRM的两个实体之间建立一个联系:住宿楼和Bastide。这种联系采取了建筑桥梁的形式,承载着工地的培训区域:会议室、工作间和办公室。地中海盆地周围空间的使用传统上是基于内部和外部之间的密切关系。
The main idea of the project was to create a link between two entities of the CIRM: the accommodation building and the Bastide. This link takes the form of a building bridge hosting the site's training areas: conference room, workroom, and offices. The use of spaces around the Mediterranean basin is traditionally based on a close relationship between the interior and exterior.

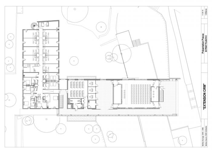
因此,我们认为这座桥梁建筑是一个大型的外部走廊,同时服务于有顶的露台和内部空间:工作间、办公室和会议室,这是本项目的关键空间之一,因为它确实是展示研究人员工作成果的地方。
Therefore, we thought of this bridge-building as a large exterior corridor serving both covered terraces and interior spaces: the workroom, the offices, and the conference room, which is one of the key spaces of this project because it is really the place where the results of the researchers' work are presented.


内部/外部的界限可以在会议室和办公室之间的有盖平台上通过滑动的聚碳酸酯板进行调节,从而调节所选择的保密程度。
The interior/exterior boundaries can be modulated at the level of the covered terrace between the conference room and the offices by means of sliding polycarbonate panels, thus regulating the degree of confidentiality chosen.

这种建筑联系的建立使得通过引入城市和乡土的连贯性来发展这个地方的使用成为可能。这种演变的象征性形象是在桥梁建筑、现有图书馆和CIRM餐厅(该项目也由AWA-P3G实施)之间的交界处创建一个 "乡村广场"。
The creation of this architectural link makes it possible to evolve the use of the place by introducing an urban and vernacular coherence. The symbolic image of this evolution is the creation of a "village square" at the junction between the bridge building, the existing library, and the CIRM restaurant (the project also carried out by AWA-P3G).

住房 "附件 "的立面是用混凝土设计的。该项目在底层有一个混凝土核心,以支持桥梁建筑。另一方面,桥梁建筑使用了三个系统。对于西面的立面和位于底层混凝土核心的垂直连续性的工作间,我们倾向于使用混凝土面纱来稳定整体。对于会议室,我们选择了一个木质框架,以减轻甲板上的压缩负荷。
The elevation of the housing "annex" is designed in concrete. The project has a concrete core on the ground floor to support the bridge building. On the other hand, the bridge building uses three systems. For the west facade and the workroom located in the vertical continuity of the concrete core of the ground floor, we have favored the use of a concrete veil to stabilize the whole. For the conference room, a wood frame was chosen to lighten the compression loads on the deck.


走道是用金属设计的。选择使用完全可见的华伦梁结构,从而促进了作品的阅读。外墙是由穿孔的考登板制成的,承担了地中海周围传统的moucharaby的通风和视觉渗透的作用。
The walkway was designed in metal. The choice was made to use a WARREN beam structure that is entirely visible, thus contributing to the reading of the work. The facades are made of perforated corten plates, taking on the role of ventilation and visual permeability of the moucharaby traditionally present around the Mediterranean.


















Architects: AWA Architectes
Area : 1560 m²
Year : 2019
Photographs :Marie Caroline Lucat
Manufacturers : Etanchéité bi-couche, Mobilier, Sols souples , Tableau salle de conférence
Demolition : GENIER DEFORGES - VITROLLES
Structual Engineer : PARACIER - COURNONSEC
Locksmiths : SARL MICHEL - LE CHAFFAUT
Elevator : THYSSENKRUPP - MARSEILLE
Landscape Design : A2BTP - GARDANNE
Project Management : CNRS – Délégation Provence et Corse
Acoustics Engineer : Sigma Acoustique
Engineering Consulting : UDG - Undergroune Engineering, P3G Ingénierie
Geotechnical Consulting : FONDASOL
General Contractor : BEC CONSTRUCTION - MARSEILLE
Sealing : OMEGA ETANCHEITE - MARSEILLE
Wood Work : GCP - MARSEILLE
Partitions Ceilings : ISOLBAT - MARSEILLE
Interior Joinery : Lucien GUISTI ET CIE - MARSEILLE
Paintings : SERIES - MARSEILLE
Facade Work : ENOVA SUD - MARSEILLE
Electricity : GER ELEC - MARSEILLE
Plumbing Engineer : CLIMATECH - MARSEILLE
User : CIRM - Centre international de rencontres mathématiques
Building Control : BTP Consultants
City : Marseille
Country : France