通过绿色规划重新定义边界 私人和公共生活。"树,我的室友"。"树的租户用氧气支付租金,通过它的吸尘能力,作为一个反噪音机器,通过消除毒素,净化被污染的雨水,作为一个幸福和健康的生产者,一个蝴蝶的使者,以及通过美 "Friedensreich Hundertwasser, 1973.
Redefining boundaries through green planning Private and Public Life. “The tree, my roommate”. “The tree tenant pays its rent with oxygen, through its dust-absorbing capacity, as an anti-noise machine, by eliminating toxins, purifying polluted rainwater, as a producer of happiness and health, a butterfly-bringer, and through beauty” Friedensreich Hundertwasser,1973.




植物、树木和人在一个屋檐下共存的概念可以说是比以往任何时候都更及时、更有必要。当我们城市的水平地面被建筑战线所覆盖时,垂直地面也在不断发展,创造出被认为是城市结构中可行的细胞的生活建筑,为改善居民和邻近计划的生活质量作出贡献。
The notion of plants, trees, and people coexisting under one roof can be characterized as timelier and more necessary than ever. While the horizontal ground of our cities is being covered by the construction front, the vertical ground is evolving, creating living buildings that are deemed viable cells in the urban fabric and contributing to improving the quality of life of residents and neighboring schemes.



该建筑的名字来自于私人垂直花园的创建,旨在为其用户提供与公共花园相同的好处,同时解构建筑与邻里之间的界限,并重新定义其作为私人建筑的身份,一个小型的 "城市花园"。自然地,一个住宅建筑方案被限制在其方案用途和地块边界内,在建筑的使用者和邻里之间形成了一个分割。
The name of the building derives from the creation of a private vertical garden, which aims to offer its users the same benefits as a public one while deconstructing the boundaries between the building and its neighborhood, and redefining its identity as a private building, a small-scale ‘Urban Garden’. Naturally, a residential building proposal is limited to its programmatic use and its plot boundaries, creating a division between the building's occupants and the neighborhood.

设计的目的是解构这些私人建筑和邻里之间的既定界限,重新定义居民之间的关系。传统的建筑立面概念与这一界限相吻合,因此被一个活生生的绿色外壳所取代,它允许交流和视线的发展,允许建筑的居民揭示和隐藏他们的私人生活。
The purpose of the design is to deconstruct these established boundaries between the private building and the neighborhood and to redefine the relationships between the residents. The traditional concept of an architectural facade coincides with this boundary and therefore is being replaced with a living, green shell that allows for the development of communication and sightings and allows the building's inhabitants to reveal and conceal their private life.


构想。这两个对立的概念,即公共和私人,构成了建筑提案的框架,并被邀请通过这个生物气候设计而共存。正如公共花园的好处并不局限于其自然边界或其用途,而是延伸到其周围,同样,私人花园也试图扩展到其边界之外,成为社区内的一个可持续发展的细胞。
IDEA. The two opposing concepts, the public and the private, frame the architectural proposal and are invited to coexist through this bioclimatic design. Just as the benefits of a public garden are not limited to its natural boundaries or its use, but instead extend to its surroundings, similarly, the private garden attempts to expand beyond its boundaries and become a sustainable cell within the neighborhood.


边界解构的主要元素是钢丝绳外壳。这使得建筑内的植物可以在垂直和水平方向上生长,在建筑的周边形成一个绿色的外墙。 建筑物各层的周边花坛中种植了各种适合在塞浦路斯环境条件下生长的本地和外国植物。在其最大限度的发展中,该立面形成了一个垂直花园,使其用户和建筑本身受益,为室内创造阴凉,从而减少能源消耗。作为城市结构的一部分,该建筑在美学上改善了社区的形象,用香味丰富了空间,并吸引了当地的野生动物。
The primary element of the boundary’s deconstruction is the wire rope shell. This allows the plants within the building to grow both vertically and horizontally, creating a green facade around the perimeter of the building. The perimeter flowerbeds on all levels of the building host a variety of local and foreign plants, suitable for growing in the environmental conditions of Cyprus. At its maximum development, the facade forms a vertical garden that benefits its users and the building itself, creates shade for the interiors, and thus reduces energy consumption. As part of the urban fabric, the building aesthetically improves the image of the neighborhood, enriches the space with scents, and attracts local wildlife.


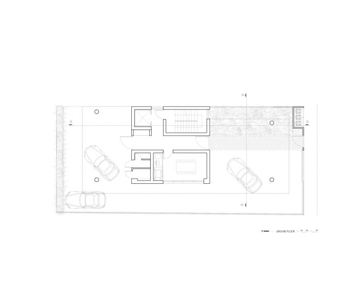
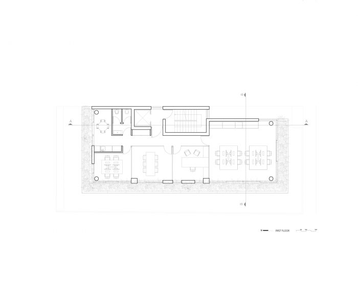
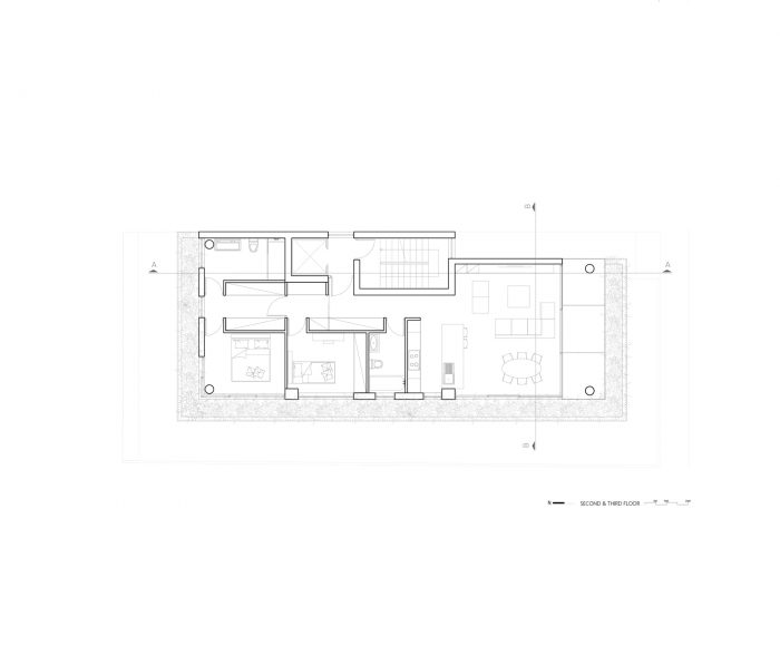
该建筑位于利马索尔中心东部的Ayios Nikolaos人口稠密区。该地区的特点是60年代和70年代的单户住宅,在过去的十年里,该地区一直在经历着激烈的城市和建筑变化。该建筑分为五层,piloti,三层,和屋顶花园。Piloti允许进入建筑,同时也是停车区。第一层是一个建筑工作室,有一个画室和一个会议室。二楼和三楼是楼层公寓,包括一个开放式的厨房、客厅、餐厅、两间卧室和两间浴室。开放式公寓被朝南和朝西的开口所包围,而卧室则朝西和朝北。
The building is located in the densely populated area of Ayios Nikolaos, east of the center of Limassol. An area characterized by the single-family houses of the 60s and 70s and that has been undergoing intense urban and architectural changes in the last decade. The building is divided into five levels, the piloti, three stories, and the roof garden. The piloti allows access to the building and is also the parking area. The first floor houses an architecture studio space with a drawing room and a meeting room. The second and third floors are floor apartments that include an open-plan kitchen, living room, dining room, two bedrooms, and two bathrooms. The open-plan apartments are surrounded by south and west-facing openings while the bedrooms are west and north facing.


所有的内部空间都被滑动的热铝玻璃所包围。一方面,它们有助于减少能源损失,另一方面,它们将外部和内部空间统一起来,使用户可以毫无障碍地看到绿色的外墙。 屋顶花园由一个用餐区、休息区和烧烤设施组成。一个金属凉棚覆盖了整个屋顶。双面光伏板位于凉棚的上部,有助于减少建筑的能源消耗,并在白天创造阴凉。该项目作为一个活生生的城市细胞,作为社区的一个积极成员而不断发展。 城市花园,我的邻居。可持续性,实验性,变化。
All interiors are surrounded by sliding thermal aluminum glazing. On the one hand, they help reduce energy loss while on the other hand, they unify the exterior and interior spaces, allowing the user to have an unobstructed view of the green facade. The roof garden consists of a dining area, lounge area, and barbecue facilities. A metal pergola covers the entire rooftop. Double-sided photovoltaic panels are located on the upper part of the pergola, helping to reduce the energy consumption of the building and creating shade during the daytime. The project as a living urban cell evolves as an active member of the neighborhood. Urban garden, my neighbor. Sustainability, Experimentation, Change.

















Architects: Loizou Architects + Associates
Area : 360 m²
Year : 2022
Photographs :Maria Efthymiou
Manufacturers : AS Metal Construction, Chr. Marneros & Co Ltd, Dark Architectural Lighting, Eurblinds, Evpalia Trading Co. Ltd, N.G. Marangos
Lead Architect : George Loizou
Structural Engineer : Allayiotis & Christodoulidou Civil & Structural Engineering Consultants LLC
Quantity Surveyor : Christos D. Ioannou Construction Cost Consultants LLC
Landscape Architect : Mary Pernjak
Lighting Architect : Arch + Light Design Lab
Site Surveyor : M.A LandMetric – Mavrou Aggeliki
City : Limassol
Country : Cyprus