该项目位于一个具有先进整合过程的街区内。阿根廷科尔多瓦市的一个中间部门,目前有低密度的住宅活动,还有一些生产和物流类型的用途。
The project is located within a neighborhood with an advanced consolidation process. An intermediate sector of the City of Córdoba, Argentina, a place where low-density residential activity is currently available, and some uses of the productive and logistics type.



该建筑的目标之一是激活社区计划发展的无形和社会化进程。计划中的项目包括一个约1653平方米的运动区,一个约3050平方米的户外大规模社会和社区扩展区,以及一个约318平方米的主要满足日常集会需要的有盖区域。
One of the objectives of the Building is to activate intangible and socialization processes that the community plans to develop. A program is planned that is identified with a sports area made up of about 1,653m², an area for massive social and community expansion in the open air of about 3,050m² and a covered area that can primarily attend to the need for the daily convocation of about 318m².




场地面积约为6734平方米,在执行之前沉浸在两种情况下,需要给南北方向的道路提供车辆的连续性,以及在上述道路的另一侧,存在一个安排在铁路区域的流行社区。根据这些,该设备被安排在南部,以巩固该社区的城市正面。这个决定产生了一个向北的完全开放的空地,安排在体育基础设施和东部之间。这两个基础设施之间的极性被强调。
The site, about 6,734m², is immersed in two situations prior to its execution, the need to give vehicular continuity to a road in a north-south direction and the presence of a popular neighborhood arranged on a railway area, on the other side of the mentioned way. According to these, the Equipment is arranged to the South consolidating the urban front of the neighborhood. This decision produces a full opening to the North on a vacant space, arranged between the sports infrastructure and the East. A polarity between these two infrastructures is stressed.

主入口从一个空旷的地方出现,一个大约389平方米的市民广场,一个支持性的空间,也作为道路区域和设备之间的 "风箱或交汇点"。
The main entrance materializes from a void, a civic square of about 389m², a support space that also functions as a "bellows or meeting point" between the pre-existing neighborhood on the road area and the equipment.

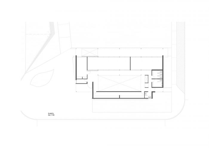
该设施的类型是围绕着一个中央庭院组织的,其中每个规划的空间和活动都汇聚在一起。每个人的功能和流通都通过它们发生。诸如栅栏等元素被安排在它的一侧,目的是保证在这个中央开放空间的自发活动。一个健身房和两个多功能室被安排在北 "翼",直接投射到一个单一的外部画廊(内部和外部之间的界面),可以俯瞰运动区之间的中间空间(空)。两个可以独立运作的统一的厨房被安排在南 "翼",巩固了公共道路的正面。在西边,厕所给了这个类型的物理封闭。
The typology of the Facility is organized around a central courtyard in which each of the planned spaces and activities converges. The functionality and circulation of each one of these happen through them. Elements such as grills are arranged on the side of it with the intention of guaranteeing spontaneous activity in this central open space. A gym and two multipurpose rooms are arranged on the North "wing", with immediate projection on a single exterior Gallery (interface between inside and outside) that overlooks the intermediate space (empty) between the Sports area. Two unified kitchens with the possibility of independent operation are arranged on the South "wing", consolidating a front on public roads. To the west, the restrooms give physical closure to the typology.

关于它的物质性,特别注意由不同的纹理(通过颜色统一)产生的游戏,这些纹理是解决砖石、板块、柱子等的各种方式。
Regarding its materiality, special attention is paid to the game generated by the different textures (unified through color) of the various ways of solving a masonry, a slab, a column, etc.












Architects: Grupo Edisur
Area : 318 m²
Year : 2021
Photographs :Gonzalo Viramonte
Manufacturers : Cerro Negro, Holcim, Lucciola, WindPlex, ferrum
Lead Architect : Agustin Aguirre Caudana, Alejandro Mur
Technical Direction : Paula Aznar
Landscape : Marcelo Calsina
Collaborators : Catalina Parodi
City : Cordoba
Country : Argentina