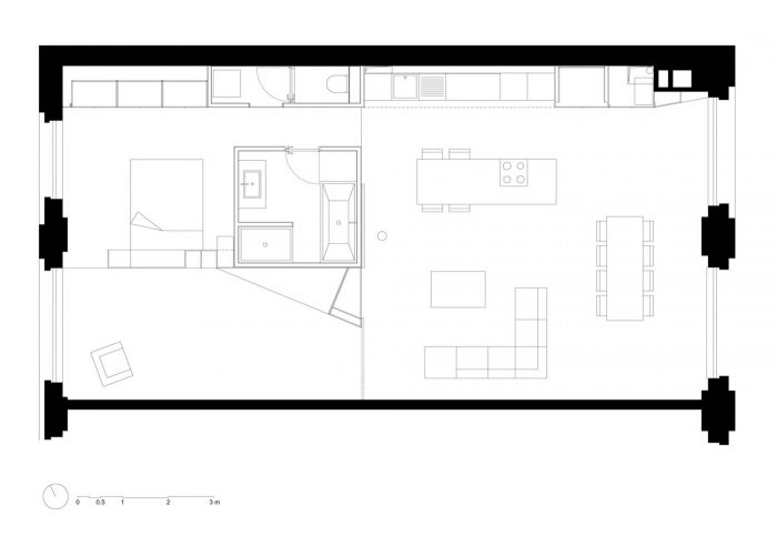
我们面临的挑战是在极小的预算范围内,将一个100平方米的空间 "casco "布置成一个精神 "loft"。为了保留交叉空间并将深度带入视野,我们的想法很简单:将所有的技术和功能元素插入一件家具中,沿着侧墙放置。然后,我们在阁楼的中间放置了一个中央体积(浴室)。在此基础上嫁接设计的家具(如客厅的Hi-Fi角、书桌和图书馆),使两个不同的空间(一边是卧室,另一边是办公室/客人室)分离。
The challenge was to furnish a 100 sqm space “casco” in a spirit “loft” , within a tiny budget. In order to preserve crossing spaces and to bring depth into the views, the idea was simple: to insert all the technical and functional elements in a piece of furniture, placed itself all along the side wall. Then, we put a central volume (bathroom) in the middle of the loft. To this one are grafted a designed furniture (as a Hi-Fi corner in the living room, a desk and a library) which induces separation between two distinct spaces (bedroom on one side, office/guest room on the other).


还有一个模块化的概念,就是在公寓的所有宽度上都有一个大的滑动门,使得关闭和打开空间成为可能。作为结论,这个房间被一个隔板抬高,这使他与阁楼的其他地方有了自己的空间规约。考虑到经济问题,地面和天花板都是粗糙的,没有任何修改。我们的意愿是提供一个组织空间的家具装置。这个空间希望是清醒的、纯净的,通过特定的颜色和现有地面的纹理来强调。
There is also a concept of modularity via a large sliding door over all the width of the apartment, making it possible to close and open spaces. As conclusion, the room is raised by a estrade, which confers to him its own space statute in relation with the other places of the loft. Thinking at the economy, grounds and ceilings are left rough as such without any modification. The will is to offer an installation of furniture which organize the space. This space wants to be sober, purified, emphasized by specific keys of color and the texture of the existing ground.












Architects: adn Architectures
Area: 100 m²
Year: 2009
City:BRUSSELS
Country:Belgium