这间办公室位于群马县前桥车站前的一栋曾经是百货公司的大楼的第四层。这座建筑是典型的百货公司,没有什么窗户可以让自然光照射进来,而且楼层很深。起初,我的印象是,作为一个供人们工作和生活的环境,这栋建筑已经年久失修。然而,与此同时,我们认为,通过接受这种建筑类型,并利用百货公司的独特空间。因此,我们可以建立一个对CLIMB来说是独一无二的办公室。
This office is located on the fourth floor of a building that used to be a department store in front of Maebashi Station in Gunma Prefecture. This building was typical of a department store with few windows to let in natural light and a deep floor plan. At first, I had the impression that the building was in disrepair as an environment for people to work and live in. However, at the same time, we thought that by accepting this building type and making use of the unique space of a department store. So we could build an office that was unique to CLIMB.



这个新的工作环境是一个项目,旨在以合理的预算为组织定义团队合作、安全、工作场所的灵活性和幸福感。在那里,重要的是创造一个灵活的工作空间,在一个舒适的内部环境中表达CLIMB的价值观和身份。
This new work environment was a project that aimed to define teamwork, security, workplace flexibility, and well-being for the organization with a reasonable budget. There, it was important to create a flexible working space to express CLIMB's values and identity in a comfortable interior.



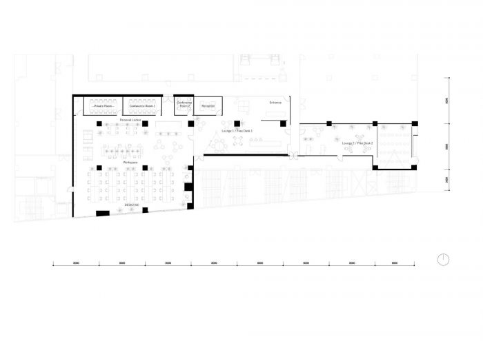
布局分区从在60米长的狭窄规划区的中心创建一条街道开始。这条主干道如项目的 "骨干",从它涌现出来的各种空间可以根据其工作需要自由选择。
The layout zoning started with the creation of a single street in the center of the 60m long and narrow planning area. That main street is such as the "backbone" of the project, and the various spaces that emerge from it can be freely selected according to their work needs.

在室内,现有的混凝土框架表面被处理成银色,以平衡周围的环境,天花板被暴露出来,作为设备网络的骨架,这对办公环境很重要。这为办公环境创造了灵活性,可以通过开放的电缆通道和电线杆轻松地进行搬迁。同时,这种材料也很耐用,易于维护。
For the interior, the surface of the existing concrete frame is treated with a silver finish to balance the surroundings, and the ceiling is exposed as a skeleton for the equipment network, which is important for the office environment. This creates flexibility in the office environment and can be easily relocated with open cable channels and poles. Also, this material is durable and easy to maintain.


在这个项目中,我们被这样一个事实所吸引:我们可以用创造性的设计方案来为城市和社区的再生做出贡献,而不是拆掉建筑再重建。这些设计方案使我们能够以不同的方式解开那些由于社会差距而被废弃的专用空间。
In this project, we are attracted to the fact that we can use creative design solutions to contribute to the regeneration of the city and the community, instead of tearing down buildings and rebuilding them. These design solutions allow us to unpack dedicated spaces that have fallen into disuse due to gaps in society in a different way.

















Architects: SAKUMAESHIMA
Area: 736 m²
Year: 2020
Photographs: Kenta Hasegawa
Manufacturers: PLUS Corporation
Design Team:SAKUMAESHIMA
Office Furniture Consultant:PLUS CORPORATION
City:Maebashi
Country:Japan