一个新的国家手工艺、艺术和设计中心,在明德卢市的佛得角设计艺术、手工艺和文化之上的一个更新的愿景。该博物馆项目诞生于一个有远见的梦想。在与明德卢国家艺术设计中心主任的一次非正式谈话中,他问我们对那个空间是否有想法--一个有天井的殖民时期的老房子和后面的老建筑。我们回答他的想法是建立一个新的标志性建筑,一个博物馆。从那时起,他的精力和我们的愿景,以及双方的承诺,加上政府的支持和全部资金。
A new national Center for handcraft, art, and design, a renewed vision above the art of design, handcraft, and culture of Cabo Verde in the city of Mindelo. The museum project was born out of a visionary dream. In an informal conversation with the director of the Centro Nacional de Artesanato e Design in Mindelo, he asked us if we had an idea for that space – an old colonial house with a patio and an old building on the rear. We answered him with the idea of a new iconic building, a museum. From then on, it was his energy and our vision, and the commitment from both sides, with support and total financing of the government.



这个地方包括一个在明德卢历史上发挥了重要作用并被修复的老房子。除了这个建筑,在后院还有一个露天的天井和第二个建筑。我们被要求处理修复、天井和后面的新建筑,建立与老房子的联系。展览、咖啡馆、商店和品牌都来自CNAD策展和设计团队。
The site comprises an old house that played an important role in the history of Mindelo and was restored. Besides this building, there is an open-air patio in the backyard and a second building. We were asked to deal with the restoration, the patio, and with the new building on the back, establishing a connection with the old house. The expositions, the cafe, the shop, and the branding are from CNAD curatorial and design team.


佛得角是一个由10个岛屿组成的群岛,位于大西洋中部。几乎所有的产品都是用集装箱、木桶从国外运来的......从石油到服装,到食品和移民。因此,木桶被用于一切,作为容器和具有多种用途的材料。
Cabo Verde is an archipelago of 10 islands in the middle of the Atlantic Ocean. Almost every product came from abroad in containers, barrels… from oil to clothing, to food and people emigrants. Thus the barrels are used for everything, as containers and as materials with many uses.



我们的方法是推倒墙壁,向城市开放天井,并使用这些桶盖,创造一个覆盖整个博物馆的独立的皮肤,向这个简单的物体致敬,它是如此根深蒂固地进入明德卢人民的生活。
Our approach was to knock down the walls and open the patio to the city and to use those barrels caps and create a detached skin that covers the entire museum, paying homage to this simple object that is so entrenched into the lives of the people of Mindelo.
像其他项目一样,我们的目的是尽可能利用更少的资源,并与中心的工匠合作,在一个使用回收材料的车间里自建。有趣的是,现在的预算已经增加了,但我们保留了这个概念。我们的想法是真正把城市的中心带入,并向边缘地区使用的材料表示敬意。不仅如此,它也有一个特定的功能。
Like in the other projects, the purpose was to work with the fewer resources as possible and work with the artisans of the center in a self-build using recycled materials workshop. Funny enough, the budget has grown now but we kept the concept. The idea is to really bring to the center of the city and pay homage to a material used in the periphery. More than that, it also has a specific function.

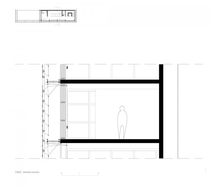
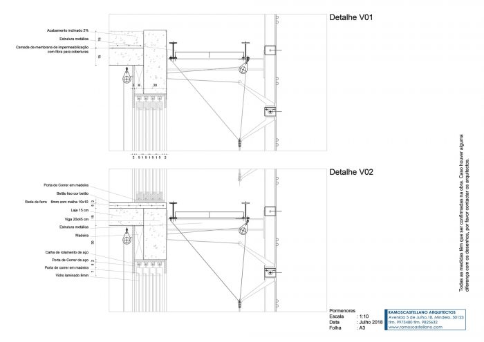
新建筑的双层通风外墙保证了对内部温度的被动控制,不需要空调,盖子可以像persiana一样旋转,允许调节内部光线和气流。能源将由光伏电池板提供。
The double-ventilated facade of the new building assures a passive control of the internal temperature without air conditioning, the caps can rotate like a persiana, allowing the modulation of the internal light and airflow. The energy will be provided by photovoltaic panels.



这些颜色隐藏着一个乐谱。每种颜色都是一个音符。我们想利用协同感觉的感知现象,所以邀请了卡博韦尔迪的作曲家和多乐器演奏家瓦斯科-马丁斯(Vasco Martins)参与,并写下了颜色背后的音乐。向群岛的音乐传统致敬,并向广场传递视觉上的音乐快乐。
The colors hide a musical score. Each color is a musical note. We wanted to use the perceptual phenomenon of synesthesia so a Caboverdian composer and multi-instrumentalist, Vasco Martins, was invited to participate and wrote the music behind the colors. Paying homage to the musical traditions of the islands and transmitting a visual musical joy to the square.



新建筑的所有家具都是由Ramos Castellano Arquitectos设计,并由当地工匠手工制作。
All the furniture of the new building is designed by Ramos Castellano Arquitectos and handcrafted by local artisans.







































Architects: Ramos Castellano Arquitectos
Area : 1265 m²
Year : 2022
Photographs :Sergio Pirrone
Lead Architects : Eloisa Ramos, Moreno Castellano
Interior Design : Ramos Castellano Arquitectos
Design Team : Zico Lopes, Bruno Kenny, Edoardo Meneghin, Marvin Delgado, Danil Silva, Marco dos Anjos
Engineers : Ilidio Alexandre, Daniele Salvadorini, Francesco Bini, Denise Martins e Ricardo Martins, Luis Delgado
Consultants : Shrikar Bhave, Linda Lam, Ti Nene', Giulia La Ganga, Concetta Cavallaro
Interior Design Team : Design team: Bruno Kenny, Edoardo Meneghin
Paintings And Textiles : Alex Da Silva, Bela Duarte, Manuel Figueira, Joao Fortes
Number Of Recycled Barrel Caps : 2532
City : Mindelo
Country : Cape Verde