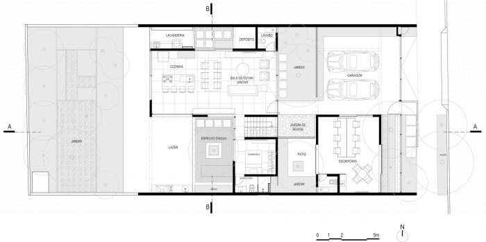
该住宅项目位于圣保罗州圣卡洛斯市中部地区一个综合社区内的城市地段,选择了面向地段内部的体积配置,目的是保证居民的最大隐私。景观设计是在同一时间进行的,在塑造空间、构成背景、控制温度和太阳入射方面起着基本作用。
Located on an urban lot within a consolidated neighborhood in the central region of the city of São Carlos, in the interior of the State of São Paulo, the project for this residence opts for a volumetric configuration facing the interior of the lot, with the intention of guaranteeing maximum privacy to the residents. The landscaping was designed at the same time and plays a fundamental role in shaping spaces, composing backgrounds and controlling temperature and solar incidence.






与钢梁正交网相关的横向结构屋檐,以及选择从前到后的占用,导致了非典型的填充和空隙的实施。这些空间与花园区域相连,确保了自然采光和通风,以及扩展的可能性,使内部-外部边界变得微妙。
The lateral structural gables associated with the orthogonal mesh of steel beams and also the choice for an occupation with front-to-bottom orientation result in an atypical implementation of fills and voids. The spaces are connected to the garden areas, ensuring natural lighting and ventilation, as well as the possibility of expansion, making the internal - external boundary subtle.


在底层,公共使用空间的分布及其相互关系是通过其开口的位置来组织的,并由具有视觉渗透性的元素控制,无论是建筑还是植被。车库和办公室独立于住宅的其他部分,位于前立面的边缘,通过金属墙板与街道保持直接的视觉接触。
On the ground floor, the distribution of common use spaces and their interrelationships are organized by the positioning of their openings and controlled by elements with visual permeability, whether built or vegetated. The garage and office are independent from the rest of the residence and are on the edge of the front façade, maintaining direct visual contact with the street through a metal clapboard.

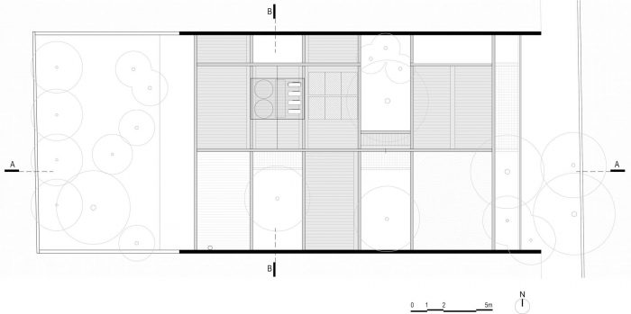
一个宽敞的房间整合了整个公共区域,包括休闲区,并向绿树成荫的后花园开放。在上层,也就是套房和私密区域所在的地方,同样保持了视觉过滤和环境扩展的逻辑,在这种情况下,私人阳台或花园板供公共使用。
A single generous room integrates the entire common area, including the leisure area, and opens onto the tree-lined back garden. On the upper floor, where the suites and intimate areas are located, the same logic of visual filtering and expansion of environments is maintained, in this case for private balconies or garden slabs for common use.






建筑元素的选择加强了在整个项目中保持视觉连接的意图,无论是内部环境和花园之间,还是楼层之间,甚至是住宅和街道之间。例如,混凝土浇铸元素(由办公室在合作伙伴的支持下开发)是自支撑正面平面的特征,为外墙带来了清醒和轻盈。阳台和外部通道的平面图采用金属网格,使太阳光照射在低层。
The choice of construction elements reinforces the intention to maintain a visual connection throughout the project, whether between the internal environments and its gardens, between the floors and even between the residence and the street. The concrete cast element (developed by the office with support from partners), for example, characterizes the self-supporting frontal plane that brings sobriety and lightness to the façade. The floor plans of the balconies and external circulations are in metallic grid, keeping the solar incidence on the lower floor.




















Architects: CHX Arquitetos
Area: 295 m²
Year: 2018
Photographs: Pedro Kok
Manufacturers: Alex Alves Gabriel, Art Final, CHX Arquitetos, Casa dos Portões, Deca, Jmar, Marcenaria Santana Dourado, Metalgrade, Proveraço, Scala Técnica, Serginho Carpintaria São Carlos, Tramontina
Project Team:Chan Hua Xin, Claudia Magon, Ana Karla Olimpio Pereira, Debora C. Dalbó do Nascimento
City:São Carlos
Country:Brazil