主要的想法是在现代城市的中间创造一个经典的城堡。用两个永恒的建筑的结合,来创造一个强烈的设计意图对比。施工现场的弱点是,宽度太小,长度太深。问题是如何为建筑内的整个空间获得和谐的光线,以及不给顾客造成在不同空间之间移动过远的感觉。
The main idea is to create a classic castle in the middle of a modern city. with the combination of two timeless architectures, to create a strong contrast in design intent. The weakness of the construction site is that the width is too small, and the length is too deep. The problem is how to get harmonious light for the entire space inside the building, as well as not create the feeling of moving too far between different spaces for customers.



PT Arch工作室提出的解决方案是将长度分成4个不同的部分,第一部分是柜台区,第二部分是楼梯区,因为这个位置对于顾客来说,移动到下一层的距离不会太远。第三部分是咖啡空间,最后一部分是储藏区和洗手间。这4个区域将由天窗和绿色空间连接起来,形成一个强大的布局。
The solution proposed by PT Arch studio is to divide the length into 4 different parts, the first part is the counter area, and the second part is the stairs area because this location is not too far for customers to move to the next floor. The third part is the coffee space, and the last part is the storage area and restroom. These 4 areas will be linked together by skylights and green spaces, to create a strong layout.


光线将是设计理念的重点,用户将享受中庭空间,而不会感到被狭窄的空间所限制。通过在室内设计许多绿色植物和自然光,室内的布局始终给客户带来舒适感。我们还安排了固定区域,避免移动家具,使操作更加方便。总的预算不会太多,所以仔细计算一切应该是重中之重。所用的材料必须易于清洁,保证高度的美感以及合理的价格。
Light will be the focus of the design concept, and users will enjoy the atrium space, without feeling constrained by a narrow space. The layout of the interior always brings comfort to customers by designing many greeneries and natural light inside. We also arranged fixed areas to avoid moving furniture to make the operation more convenient. The total budget is not too much, so calculating everything carefully should be a top priority. Materials used must be easy to clean, ensure high aesthetics as well as reasonable prices.



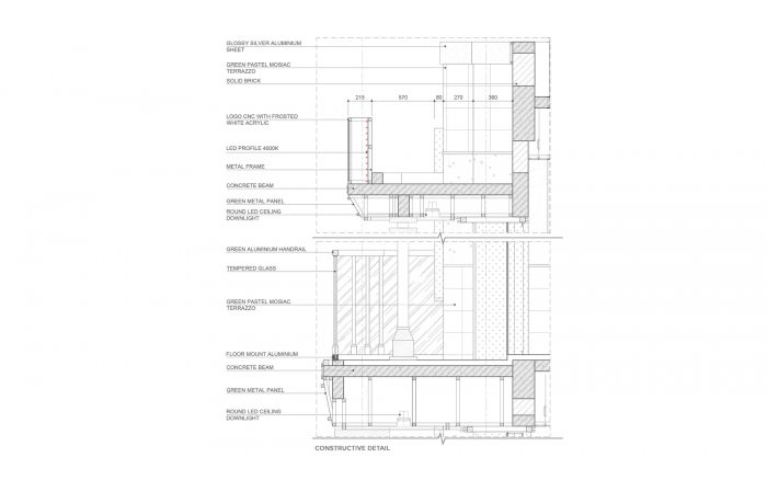
因为该项目建在一个气候非常晴朗,全年风大的城市,所以外墙的设计必须是封闭的,可以阻挡阳光,但仍要保证整个项目的采光和通风因素。所以,玻璃砖是满足上述条件的正确选择。此外,我们始终关注如何将古典和现代材料结合在一起而不感到紧张。因此,从水磨石砖和铝板中选择一种动态的色调,与经典的造型细节相结合,将创造出一种强烈的对比,确保忠实于原始概念。
Because the project is built in a city with a very sunny climate and high winds the whole year, the facade must be designed to be closed and block the sun, but still ensure light and ventilation factor for the overall project. So, glass tiles are the right choice to meet the above criteria. Besides, we always focus on how to combine both classic and modern materials together without feeling strained. Therefore, the selection of a dynamic tone from terrazzo tile, and aluminum panel, combined with classic molding details will create a strong contrast that ensures true to the original concept.













Architects: PT Arch Studio
Area : 320 m²
Year : 2023
Photographs :Nguyen Duy Hoach
Manufacturers : V-Asia, VietTiles
Lead Architect : Nguyen Van Phuoc Thinh
Interior Design : Nguyen Van Phuoc Thinh
MEP : Lan Bui
Structure Engineer : Nhan Nguyen
City : Thành phố Phan Rang - Tháp Chàm
Country : Vietnam