创作灵感。
CoCo》是皮克斯在2016年发布的一部著名动画片。该片主要讲述了家庭亲情的主题,几代人和家庭成员之间的联系,尽管不在同一个世界里。
得益于这一灵感,建筑师希望创造一种新的空间感,通过玻璃质材料的排列艺术将现实和虚拟连接起来。因此,材料所表现出的效果将创造出一种重复的幻觉,为房子提供一种宽敞的感觉(房子的宽度在现实中只有4.6米)。在一些特定的角度,可以看到房子里有无限的视野。房子里的一些细节只设计了一半,一旦被镜子反射,他们将回顾完整的模式(你可以看到二楼阅读空间里的窗户拱门的细节)。
这是一种为窄幅联排别墅放大空间的方法,它提升了空间扩张的感觉,同时也将建筑师希望传达给建筑的理念带到了现实中。
Creative inspiration:
CoCo is a famous animated film released by Pixar in 2016. The film focuses on the theme of family affection, the connection between generations and family members, despite not being in the same world.
Thanks to this inspiration, the architect wishes to create a new sense of space, bridging reality and virtuality through the arranging art of glassy materials. As a result, the effect manifested by the materials would create a duplicating illusion that provides a spacious sense to the house (the width of the house is only 4.6m in reality). At some specific angles, an infinite view can be seen within the house. Some details in the house are only half-designed and once reflected by the mirror, they will review the complete pattern (You can see the details of the window arches in the reading space on the 2nd floor).
This is a method to amplify the space for a narrow-width townhouse, which boosts the feeling of space expansion and also brings to life the concept that the architect wishes to convey into the building.




技术细节。
投资者希望有一个巨大的区域用于种植和锦鲤鱼的爱好,风格简约而宽敞。新的设计允许投资者保持他/她的日常工作,如休闲区(带吊床),以及临床服务的私人区域。这座房子本质上是一个住宿和商业场所的功能。此外,该设计还拥有这些具体的技术特点。
将鱼池和花园纳入共同生活空间:建筑师认识到投资者需要一个巨大的区域来满足他/她在有限的空间内的种植和养鱼爱好,因此将这些区域纳入共同生活空间。鱼池不仅提供了一个风景元素,而且还调整了生活空间的小气候。
Technical details:
The investor would like to have a huge area for planting and Koi fish hobby with a minimalistic and spacious style. The new design allows the investor to maintain his/her daily routine such as a relaxation area (with hammock), and a private area for clinical service. The house essentially functions as an accommodation and a business place. Moreover, the design also possesses these specific technical characteristics:
Integrating fishpond and garden into co-living space: recognizing the investor’s demand for a huge area catering to his/her planting and fishkeeping hobby under a constricted space, the architect has incorporated these areas creating a co-living space. The fishpond not only provides a scenic element but also adjusts the microclimate for the living space.


材料和配置。
设计利用玻璃砖模仿波浪图案,将越南的西部水区形象化,同时也强调了立面的美学曲线。玻璃砖不仅保证了房屋内开放空间的私密性,而且还提供了足够的自然光。
设计利用了通风砖,确保了对雨天的保护。此外,它还允许空气从立面流通到每个角落(查看横截面)。通风砖的选择和安排,经过了建筑师的深思熟虑,在不同的方向上设置了不同的美感,以及作为排水和通风的功能。
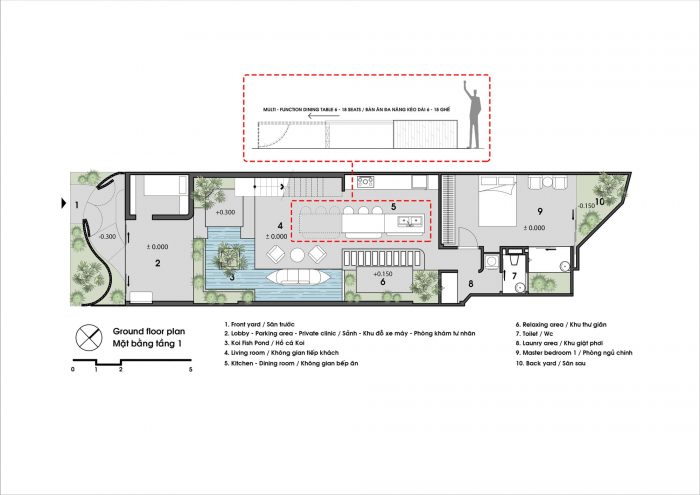
建筑师还通过 "空间借贷 "的艺术将客厅和厨房合并为一个统一的空间。因此,厨房和餐厅的空间可以通过增加一个6至18个座位的餐桌来适应性地扩大,以满足特殊场合或大群访客的需要。
Material and configuration:
The design utilizes glass brick to imitate wave patterns, which visualize the Western water region of Vietnam as well as emphasize the aesthetic curve of the façade. The glass bricks not only guarantee privacy for the open space within the house but also provide enough natural lighting.
The design utilizes ventilation brick to ensure protection from rainy weather. Moreover, it also allows air circulation from the façade to every nook and cranny (view the cross-section). The selection and arrangement of the ventilation bricks, which have been under thorough consideration from the architect, are set up in different directions for aesthetic aspects as well as functioning as drainage and ventilator.
The architect has also merged the living room and kitchen into one unifying space through the art of “space-lending”. Therefore, the kitchen and dining space can be adaptably expanded by adding a dining table with 6 to 18 seats for special occasions or for large groups of visitors.


小气候调节的解决方案。
房子里有5个不同大小的花园,不仅符合投资者的种植爱好,而且还起到了抑制噪音和防止灰尘的作用。
散落在玻璃屋顶上的大理石卵石是光线调节的解决方案。它有助于光线在整个居住空间的反射,创造出适合日常活动的光亮效果。
Solution for microclimate adjustment:
The house contains 5 different-sized gardens which not only align with the planting hobby of the investor but also act as noise suppressors and dust prevention.
Marble pebbles scattering across the glass roof are the solution for light regulation. It helps the light reflect across the living space creating a luminous effect that is suitable for daily activities






















Architects: Duy Le Architects
Area : 142 m²
Year : 2021
Photographs :Trieu Chien
Lead Architect : Lê Trọng Duy
Client : Lê Công Đức
Country : Vietnam