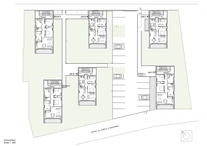
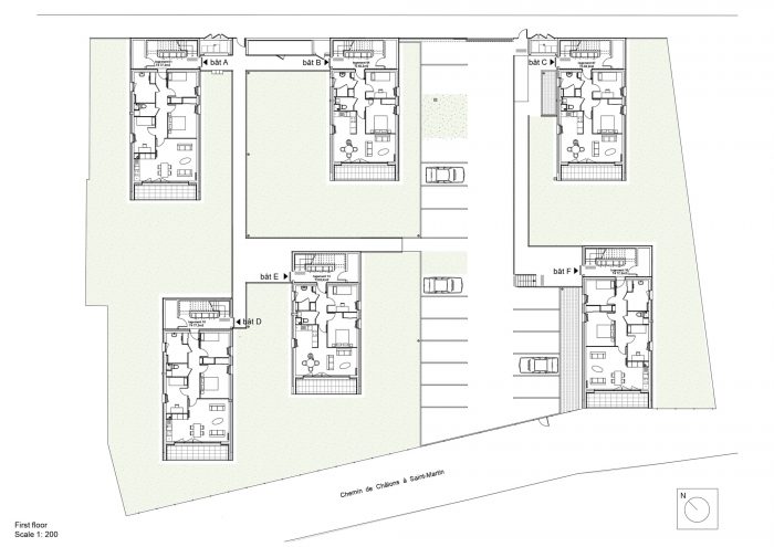
Les Aulnes "项目由18个住房单元组成,分为6栋楼。每个地块开发了3层,所以,底层+2.每层都有一个公寓,在东北侧有一个楼梯间。生活区面向西南方向的木屋,提供植被和运河的景观。
The « Les Aulnes » project consists of 18 housing units divided into 6 buildings. Each plot was developed on 3 stories so, ground floor +2. Each level has an apartment with a stairwell on the northeast side. The living areas open onto loggias facing southwest and offer views of the vegetation and the canal.



该长度的类型学因其三重方向和其 "房子 "的轮廓而有趣。在这个项目中,委员会倾向于通过几乎半独立的住宅为居民提供舒适。每个地块的定位是为了与现有建筑、其他地块和公共空间保持一定距离。这种距离感是由底层的私有绿地、共享绿地和过滤沼泽来体现的。
The typology of the length is interesting for its triple orientation and its «house» profile. On this project, the council preferred to offer residents comfort through almost semi-individual dwellings. Each plot is positioned so as to have a distance from existing buildings, other plots, and public spaces. This distancing is transcribed by privatized green spaces on the ground floor, shared green spaces, and filtering swales.


东北部的外墙在底层采用实心金属包层,在第一和第二层采用微孔金属包层。这种透明度显示了楼梯间的金属框架采用了半木质结构的垂直性原则。所有的外墙都采用带有垂直肋骨的实心金属包层处理,与盖板上的金属容器保持连续性。从沙隆到圣马丁的运河路径上的围栏将部分地被植被围栏处理,以突出运河一侧的景观形象。该项目通过对颜色的大胆选择,成为城市的一个视觉地标。
The Northeast facades are treated in solid metal cladding on the ground floor and micro-perforated metal clad on the first and second storeys. This transparency shows the metal frame of the stairwell using the principle of verticality of half-timbering. All the facades are treated in solid metal cladding with vertical ribs, in the continuity of the metal containers on the cover. The fence on the canal path from Châlons to Saint Martin will be partially treated by a vegetated fence to accentuate the landscape image on the canal side. The project becomes a visual landmark in the city by the bold choice of its color.




















Architects: philippe gibert architecte
Area : 2140 m²
Year : 2022
Photographs :Sergio Grazia Photographe
Manufacturers : MALERBA, Nora, Arcelor Mittal, Profialis
Structure Engineers : KUBE
Project Managers : Élodie Adam, Victor Huttois
Photography : Sergio Grazia Photographe
Design Office : ETNR
Lighting Designers : Thorn
City : Châlons-en-Champagne
Country : France