该建筑是为一个私人客户集体设计的。隐藏在市中心的一个旧工厂墙后面,位于斯芬克斯瓷器的前工业区的一块地。Les Mouleurs "的名字被刻在正门上方的石头上。这个名字是以在这个地方的前瓷器厂的模具制造者命名的。但它也象征着该建筑的建造方式。
The building is designed for a collective of private clients. Hidden behind an old factory wall in the city center on a plot of the former industrial area of Sphinx Porcelain. The name 'Les Mouleurs' is carved in stone above the main entrance. Named after the mold makers from the former porcelain factory that stood at this location. But it also symbolizes the way in which the building was constructed.




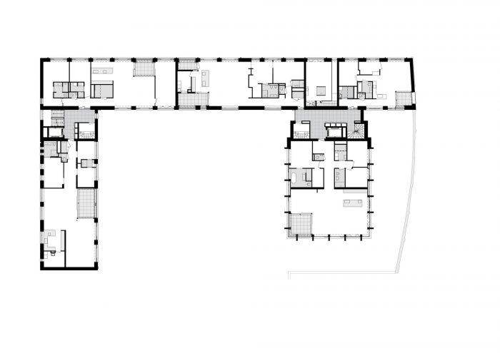
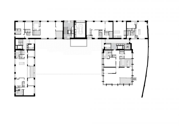
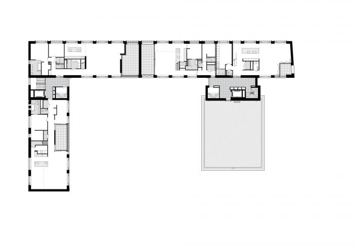
这座建筑与旧工厂的墙壁以及城市的节奏和高度进行了一场体积和构图游戏。Les Mouleurs "的主楼延伸了老陶瓷厂的围墙,并以L型的运动方式包围了一个集体内部花园。这个院子是居民们的中心聚会场所。在繁忙的城市中心,这是一片绿洲。
The building plays a volumetric and compositional game with the old factory wall and the rhythm and height of the city. The main building of ‘Les Mouleurs’ extends the wall of the old ceramics factory and encloses a collective inner garden with an embracing L-shaped movement. This courtyard is the central meeting place for the residents. An oasis in the busy city center.

狭窄的主楼有宽大的公寓,大量的光线可以从两边进入,并且作为一个院子存在与两条街道的连接。公寓有不同的尺寸和灵活的布局选择,以及一个紧凑的中央垂直循环,以获得最大的隐私。室内宽敞的木屋,而不是悬空的阳台,将室外空间的布置与整体建筑构图分开。
The narrow main building has wide apartments where a lot of light can enter from both sides and a connection exists to both streets as a courtyard. Apartments have different sizes and flexible layout options and a compact and central vertical circulation for maximum privacy. Indoor spacious loggias instead of hanging balconies to separate the placement of the outdoor space from the overall architectural composition.



没有一个公寓是相同的,在尺寸和功能上都是如此。这就是为什么在整个结构中,住户的不同性格表现在不同的立面布局中;然而,集体结构的主要表达方式从未丢失。
No apartment is the same, in size and functionality. That’s why throughout the structure, the different characters of the residents show in the different facade layouts; however, the main expression of the collective structure is never lost.



就北面的立面而言,它位于一条狭窄的街道上,没有必要进行正式的表述。我们永远无法将这个外墙作为一个整体来感知。由于来自内部的变化,我们开始时严格的窗户位置顺序,在这里被允许完全消退。最多,基本的方案仍然闪烁着光芒。
In the case of the north facade, which is located on a narrow street, there is no need for formal representation. We will never be able to perceive this facade as a whole. The strict order of the window positions we started with, was allowed to completely fade here, due to changes from within. At most, the basic scheme still shimmers through.



内部花园的外墙也是如此,在那里可以采取许多具有不同的和更多的构图自由的木屋。另一方面,花园住宅更正式地耸立在墙壁上,并以一种结构上不同的语言来区别。
The same goes for the facades on the inner garden where the many loggias with different and more compositional freedom could be taken. The garden house, on the other hand, towers over the wall more formally and differs in a tectonically different language.


主体建筑和白色 "花园洋房 "之间的二元性也表现在材料的选择上。白色的混凝土与深色的砖形成了鲜明的对比,这些砖似乎是来自于旧的工厂建筑。再加上法国石灰岩立面元素,与相邻的安德里斯小教堂的泥灰岩石头很相似。这显然是城市景观的一个新的补充,但它似乎一直都在那里。这不是对过去形状的字面复制,而是对它们的一种参考。
The duality between the main volume and the white ‘garden house’ is also expressed in the choice of materials. The white concrete contrasts with the dark brick that appears to be from the old factory buildings. Together with the French limestone façade elements, which resemble the marl stones of the adjacent Andries chapel. It is clearly a new addition to the cityscape, but one which seems to have always been there. Not a literal copy of shapes from the past, but a reference to them.

该建筑与可持续建筑技术紧密结合,采用了智能屋顶,其中集成了热交换、通风和光伏电池板;用当地砖厂的砖制作了一个良好的绝缘外壳;为了最大限度地增加日光进入和限制冷却负荷,在窗户细节和玻璃上集成了阳光保护,能源供应与附近的造纸厂相连,用于建筑的加热和冷却。
A strong integration of the building with sustainable building technology has been achieved with a smart roof in which heat exchange, ventilation, and PV panels are integrated; a well-insulated shell with brick from a local brick factory; for maximum daylight entry and limitation of the cooling load sun protection has been integrated into the window detailing and the glass, and the energy supply is linked to the nearby paper mill for the heating and cooling the building.



























Architects: Martens Willems & Humblé Architecten
Year : 2021
Photographs :Arjen Schmitz
Manufacturers : Reynaers Aluminium, Van der Sanden
Urbanism : Palmbout Urban Landscape
Design Team : Rik Martens, Fred Humblé, Maikel Willems, Noud Willers
Contractor : Laudy bouw & ontwikkeling
City : Maastricht
Country : The Netherlands