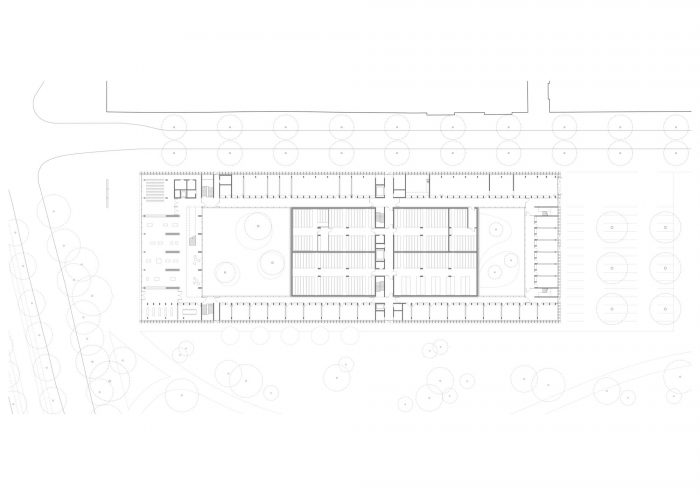
一座三层楼的外壳建筑保护性地拥抱着档案文件--无窗的、有灵气的 "神龛 "从修长的保护结构中升起,就像一座宝库。宝库位于中心位置,存放着历史档案和莱茵图片库的藏品。档案馆的工作室、实验室和工作间以及公共区域都在环形建筑结构中。在宝库和保护罩之间开辟了一个广场和一个纵向的内院,南部周围静止的同伴公园的绿色在内部得以延续。
A three-storey shell building hugs the archival documents protectively - the windowless, auratic 'shrine' rises from the elongated protective structure like a treasure house. The treasure house is centrally located and houses the holdings of the Historical Archive and the Rhenish Picture Library. The workshops, laboratories, and workrooms of the archives, as well as public areas, are in the ring-shaped building structure. A square and a longitudinal inner courtyard are cut between the treasure house and the protective sheath, the green of the surrounding still fellow park in the south is continued in the interior.



在城市规划方面,一系列的研究所建筑将被延续。面向卢森堡大街的漏斗形广场作为参观前后的交流和接触的前院,也是通往规划中的公园的入口。甚至在进入建筑之前,卢森堡大街上宽敞的无门槛的入口立面就能让人看到展览空间,通过门厅、内院和杂志大楼的外墙。上层的阅览室也像商店的窗户一样通过透明的外墙向城市空间开放,从而表达了该建筑作为公民档案的重要性。
In terms of urban planning, the series of institute buildings will be continued. The funnel-shaped square facing Luxemburger Strasse serves as a forecourt for exchanges and encounters before or after the visit and as an entrance to the planned park. Even before entering the building, the generous and threshold-free entrance facade on Luxemburger Strasse provides a glimpse into the exhibition space, through the foyer, the inner courtyard, and onto the facade of the magazine building. The reading room on the upper floor also opens like a shop window to the urban space via the transparent facade and thus expresses the importance of the building as a citizens' archive.


在内部,迎接参观者的是一系列流动的互锁的房间,用于展览、讲座和讨论、学习和研究。小型和大型的开放空间--密度和宽度--交替出现。底层的展览室和上层的阅览室,以白色涂油的花旗松为衬托,显得诱人和欢快,同时也使人感到愉快的平静气氛。大型阅读桌和一个开放的图书馆为集中研究提供了一个理想的场所;不同的视觉关系有助于形成开放和交流的氛围。两层楼高的门厅以其画廊般的通道将两个区域连接起来,并以沿内院立面的令人兴奋的空间序列使参观者感到愉悦。从这里,你的视线徘徊到展览和阅览室,以及带有杂志的绿色内院。
Inside, visitors are greeted by a series of fluidly interlocking rooms for exhibitions, lectures, and discussions, learning, and research. Small and large, open spaces - density and width - alternate. The exhibition room on the ground floor and the reading room on the upper floor, lined with white oiled Douglas fir, appear inviting and cheerful and at the same time enable a pleasantly calm atmosphere. Large reading tables and an open-access library offer an ideal place for concentrated research; varied visual relationships contribute to an atmosphere of openness and communication. The two-storey foyer with its gallery-like access connects the two areas and delights visitors with exciting spatial sequences along the inner courtyard facade. From here, your gaze wanders into the exhibition and the reading room as well as into the green inner courtyard with the magazine.


根据光线的入射情况,在多棱角的建筑青铜器上出现了不同的光影画面。在无窗的外墙后面,历史档案馆和莱茵图片馆的文件被安全地存放在书架和橱柜中。紧凑的安排和每个储藏室的最佳位置,以及杂志的巨大结构,确保了档案永久安全储存所需的气候稳定性。
A varied picture of light and shadow, depending on the incidence of light, emerges on the multiple-edged architectural bronze. Protected behind the windowless facade, the documents of the Historical Archive and the Rhenish Picture Library are safely stored in shelves and cupboards. The compact arrangement and the optimal location of each storage room as well as the massive construction of the magazine ensure the climate stability required for permanently safe storage of the archives.



从环形的通道,可以看到不同大小的内院的树木和草地的不同景色。带有垂直和水平板条的 "brise soleil "的立面,根据观察角度的不同而显得完全不同--既开放又封闭。这种结构使自然光得到最佳利用,同时,深色的外墙保护房间不受阳光直接照射。建筑铜的颜色变化和不断变化的光影游戏,为满足室内气候的高能源和节约要求做出了可持续的重大贡献。该建筑体现了历史档案馆和莱茵图片图书馆作为历史宝库和作为研究和变革的诱人空间的主张和自我形象。
From the ring-shaped access, diverse views of the trees and grasses of the variously sized inner courtyards open. The façades with the 'brise soleil' of vertical and horizontal slats appear completely different depend- ing on the viewing angle - open and closed at the same time. The construction enables the optimal use of natural daylight, at the same time the deep reveals protect the rooms from direct sunlight. The facade with its changing colors of the architectural bronze and the constantly changing play of light and shadow thus makes a significant contribution to meeting the high energy and conservation requirements for the indoor climate in a sustainable manner. The building embodies the claim and self-image of the Historical Archive and the Rhenish Picture Library as a treasure house of history and as an inviting space for research and ex- change.





















Architects: Waechter + Waechter Architekten
Year: 2021
Photographs: Brigida González
City:KÖLN
Country:Germany