Valle de Bravo是一个周末休息的地方,周围有湖泊、橡树和松树林以及河流。它是进行各种户外活动的理想场所,如徒步旅行、山地自行车旅行和滑翔伞运动。Casa Colorada位于这个优越的环境中,在一个与Monte Alto保护区接壤的山上,利用湖泊和城镇的全貌的优势。
Valle de Bravo is a resting place for the weekends surrounded by a lake, oak and pine forests and rivers. It is a perfect place for all kinds of outdoor activities, such as hiking, mountain bike tours and paragliding. Casa Colorada is located within this privileged environment, on a hill that borders the Monte Alto Reserve, taking advantage of the benefit of full views of the lake and the town.



该地块有特殊要求,因为它被拉长了,有陡峭的斜坡和许多松树和橡树。建筑方案是以保护树木的方式设计的,只移植小树。房子的几何形状被玩弄,所以它被建在柱子上,让树木在下面自由生长。在宽阔的前台,多个台阶被设计为树干和树枝,这不仅保护了树木,也给房子带来了阴凉和绿色。
The lot presented special requirements as it was elongated, with steep slopes and many pine and oak trees. The architectural program was designed in a way to conserve the trees, only transplanting the small ones. The geometries of the house were played with so that it was built on columns that allow the trees to grow freely below. On the wide front terrace, multiple steps were designed for tree trunks and branches, which not only preserved the trees but also gives shade and greenery to the house.

房子从地块的上部进入,由一条狭窄而曲折的车辆道路进入,到达一个小型凉亭和停车场。从这里,可以看到房子的后部立面,其非常清醒和简约的体量,在茂密的植被后面的红色粘土墙中只有几个小窗户。这是对发现房子的一个邀请,从这个角度看,它只显示了自己的一小部分。
The house is accessed through the upper part of the lot and is entered by a narrow and winding vehicular road that reaches a mini gazebo and parking. From here, the rear facade of the house can be seen, with its very sober and minimalist volumes with only a few small windows in a red clay wall behind dense vegetation. It is an invitation to discover the house, which from this perspective only reveals little of itself.




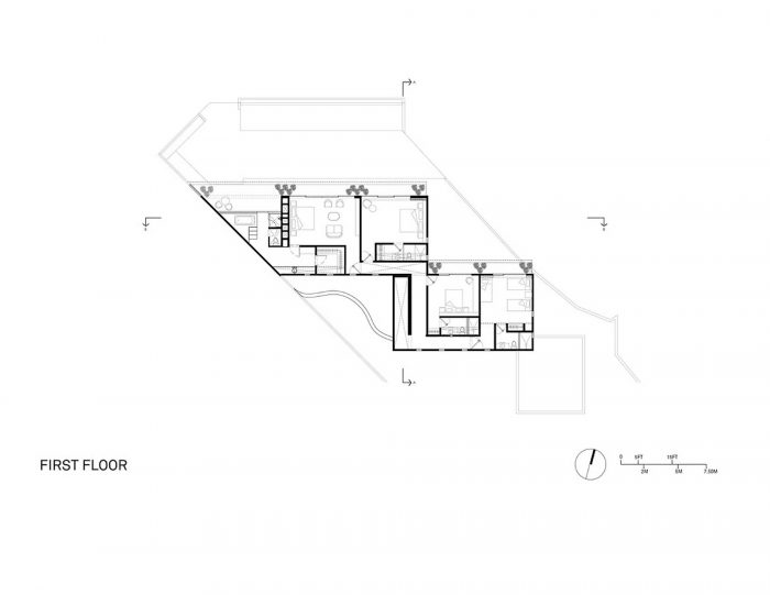
一进入Casa Colorada的底层,一个接待大厅分配了通往厨房、厕所、客厅和餐厅的路线,以及连接上层的楼梯。这个大厅有一个窗户,从这里可以看到远处的湖泊和山脉,作为开胃酒。穿过这个大厅,就到了客厅和餐厅。它们共享一个开放的大空间,东边连接着一个私密的后院,西边连接着一个带游泳池和按摩浴缸的开放大露台,可以看到湖泊、城镇和山脉的景色。在这个露台的尽头,有一个带烟囱的楔形屋顶区域,成为欣赏风景和自然环境的理想场所,同时还能避免日晒雨淋。餐厅通向露台和室内天井,始终保持通风和良好的照明。室内天井是早晨阳光照射的地方,非常适合到外面喝咖啡和取暖,或者反过来,在下午躲避夕阳。这是一个没有风景的僧侣空间,但被植被所包围,在吊床上休息时可以获得宁静和安宁。最后,客厅和餐厅用推拉窗相连,与露台以及后院相连。
Upon entering Casa Colorada at the ground floor level, a receiving hall distributes the routes to the kitchen, toilet, living room and dining room, as well as to the stairs that connect to the upper floor. This hall has a window from which a glimpse of the lake and the mountains in the distance can be seen as an aperitif. Passing this hall, the living room and dining room are reached. They share a large, open space that connects to an intimate backyard to the east, as well as to a large open terrace with a pool and Jacuzzi to the west with views of the lake, the town and the mountains. At the end of this terrace, there is a wedge-shaped roofed area with a chimney that becomes the ideal place to enjoy the view and the natural environment, while at the same time being protected from the sun and the rain. The dining room opens onto the terrace and the interior patio, always ventilated and well lit. The interior patio is the place where the sun shines in the morning, perfect for going outside to drink a coffee and to warm up, or vice versa, take refuge from the setting sun during the afternoon. It is a monastic space without a view but surrounded by vegetation for tranquillity and peace while resting in a hammock. Finally, the living room and the dining room is connected with sliding windows to join the terrace, as well as the backyard.

厨房有一个酒吧,与露台相连,完全被几棵树遮蔽,形成一个绿色屋顶。这个吧台被用来把食物送到露台上,或者仅仅是用来陪着厨师。露台本身也有一个大的吧台,有一个烤架和一个水槽,可以在外面做饭。
The kitchen has a bar that joins the terrace, completely shaded by several trees that cover it generating a green roof. This bar is used to pass food to the terrace or simply to keep the cook company. The terrace itself has a large bar with a grill and a sink for cooking outside.

从大厅上升的楼梯到达上层,那里有四间卧室。主卧室可以一览无余地看到整个景观,有一个带浴缸和淋浴的大浴室,还有一个通往露台的窗户。其余的卧室都有各自的景观和特殊的装饰,每间卧室都是不同的睡眠和居住体验。
The stairs ascending from the hall reach the upper floor where there are four bedrooms. The main one has an unobstructed view of the entire landscape with a large bathroom with a tub and a shower and a window to the terrace. The rest of the bedrooms have their own views and special touches, each of them being a different experience of sleeping and habiting.

材料是精心挑选的,有传统和工业成分。传统材料用于用水泥和沙子抹灰的退火红砖墙,用该地区的冷杉木梁和木板(有FSC类型证书)制成的天花板,粘土镶板地板和火山石围墙,以及粘土瓦屋顶。工业材料被用于非常耐磨的机械化隔断,以达到更高的耐用性,需要更少的维护,用于带有热桥和双层玻璃的窗户,以减少使用壁炉取暖的需要,用于LED照明、浴室水龙头和基于铁匠和木皮的家具。
The materials were carefully chosen to have a range of traditional and industrial ingredients. The traditional materials are used in the walls that are made of annealed red brick plastered with cement and sand, in the ceilings that are made of fir wood beams and planks from the area (with FSC-type certificate), the clay-panelled floors and a volcanic stone enclosure, as well as in the clay tile roof. The industrial materials are used in the very resistant mechanized partition in order to achieve greater durability that requires less maintenance, in the windows with thermal bridge and double glass to reduce the need to use the fireplace for heating, in the LED lighting, the bathroom faucets and the furniture based on blacksmithing and carpentry of veneer.













Architects : Once Once Arquitectura
Area : 620 m²
Year : 2018
Photographs :Camila Cossio
Architecture : Diego Yturbe Verea
Collaborators : Gilberto Aldana de la Torre, Juan Acevedo
Landscape Design : Diego Yturbe, Angeles Alonso
Furnishing : Diego Yturbe, Angeles Alonso
Construction : Diego Yturbe, Juan Acevedo, Silvia Espinos
City : Valle de Bravo
Country : Mexico