该项目位于卢瓦尔河畔圣西尔镇中心的蒙乔伊公园内,包括5个托儿所班级、8个小学班级、一个课后设施、一个餐饮单位和一个为学生和协会设计的体育设施。
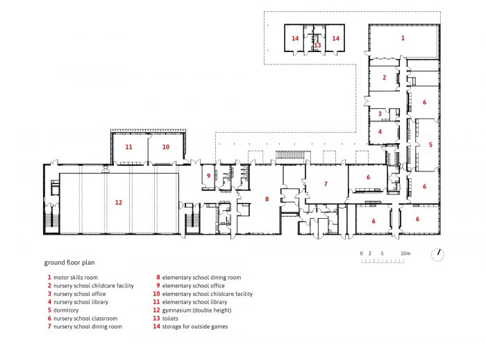
The project, located in the Parc de Montjoie in the centre of the town of Saint-Cyr-sur-Loire, comprises 5 nursery classes, 8 elementary classes, an after‑school facility, a catering unit and a sports facility designed for pupils and associations.




我们渴望设计一个结合建筑和景观的建筑,在景观公园和建筑之间提供一种视觉连续性的感觉。从公园的入口处看去,建筑的体量突出了布局的水平性。该建筑的特点是大型屋顶悬垂,形成了一个遮蔽的走道和建筑周围的覆盖区域。
We were eager to design a building that combines architecture and landscape, providing a sense of visual continuity between the landscaped park and the building. Seen from the entrance to the Park, the massing highlights the horizontality of the layout. The building features large roof overhangs that form a sheltered walkway and covered areas all around the building.

绿化在建筑的外观和布局中发挥了重要作用。它构成了设计的一部分,使它的存在贯穿始终:有生命力的屋顶提供了一种与公园相连接的感觉,操场被从建筑周围的窗户倾斜下来的草滩所点缀,被保留下来的古老的橡树构成了小学操场的中心,幼儿园屋顶上的教育花园是一个真正的自然意识场所,它有昆虫角和菜地。
Greenery plays an essential role in the appearance and layout of the building. It forms part and parcel of the design, making its presence known throughout: the living roof provides a sense of continuity with the park, the playground is punctuated by grassy banks sloping down from the windows all around the building, the venerable oak tree that has been left in place forms the centrepiece of the elementary school playground and the educational garden on the nursery school rooftop is a real nature awareness place with its insect corner and vegetable plots.


该项目的精神也通过所使用的材料表现出来:木材、混凝土和金属。从外面看,金属的使用使其具有光滑的现代感,与内部浅色木材的温暖感形成对比。该建筑不间断的立面由玻璃和金属交替使用,并有绿色植物点缀其中。金属结构元素与木梁交替出现,给外墙带来一种节奏感。金属和玻璃的使用使得优雅的结构与高度的透明度相结合成为可能,使建筑巧妙地融入景观之中。
The spirit of the project is also expressed through the materials used: wood, concrete and metal. Seen from the outside, the use of metal makes for a sleek contemporary look that contrasts with the very warm feel of the pale coloured wood inside. The building’s uninterrupted façades alternate glass and metal and are punctuated by greenery. The metal structural elements alternate with wooden beams, giving a rhythmic feel to the facade. The use of metal and glass makes it possible to combine an elegant structure with a high degree of transparency, subtly integrating the building into the landscape.



超过467立方米的木材在该项目中被广泛使用,无论是上部结构、框架还是内部装修。整个屋顶结构(柱子、横梁和天花板)是用3D建模的,并以优化、自动化的方式在工厂建造。为了确保可持续性,外部使用的所有木材都经过了防风雨处理。
With more than 467 cu.m, wood has been widely utilized in the project whether for the superstructure, the framework and the interior fit-out. The entire roof structure (posts, beams, and ceiling) was modelled in 3D and factory-built in an optimised, automated way. To ensure sustainability, all of the wood used on the exterior has been weather-proofed.

为了使建筑与景观融为一体并便于使用,它主要是一个底层开发项目:只有部分小学占据了上层。建筑大方地向景观区开放,但U型布局创造了一个中心点,当你绕着种植的路径行走时,逐渐露出建筑的中心。主体建筑环绕着面向公园的两个操场。建筑物的北翼向后转,形成一个遮蔽的前院,突出了学校的入口。体育设施位于种植路径与学校的交汇处,与学校建筑完全融合在一起,以方便连接和优化流通。
To make the building blend in with the landscape and facilitate its use, it is mainly a ground floor development: only part of the elementary school occupies an upper floor. The building generously opens out onto the landscaped areas, but the U-shaped layout creates a centrality, gradually revealing the heart of the building as you walk around the planted pathway. The main building wraps around the two playgrounds facing the park. The north wing of the building turns back on itself to form a sheltered forecourt, highlighting the entrances to the school. The sports facility, located where the planted pathway meets the school, is fully integrated with the school building in order to facilitate connections and optimise circulation.








Architects: Marjan Hessamfar & Joe Vérons architectes associés
Area : 3244 m²
Year : 2019
Photographs :Jean-François Tremege
Environmental Quality : Bet Choulet
Client : Maitrise d'Ouvrage - City of Saint-Cyr-sur-Loire
Floor Area : 3,244 m 2
Park Area : 4,226 m 2
Structure Engineers : TERRELL
Hvac Consultans : Bet Choulet
Acoustic Engineers : Emacoustic
Quantity Surveyors : Technique & Chantiers
Landscaping : Bertrand Massé
Roads & Utilities : VIA Infrastructure
Fire Safety : CSD Associés
Kitchens : Cuisinorme
Lighting Designer : Wonderfulight
City : Saint-Cyr-sur-Loire
Country : France