DGN工作室的任务是精心打造适合放松、娱乐和举办亲密的餐饮和艺术晚会的多功能空间,它将位于东伦敦的一个黑暗的维多利亚式半独立露台改造成一个宁静的、充满野性的家。
Tasked with crafting versatile spaces suitable for relaxation, entertaining, and hosting intimate dining and arts evenings, DGN Studio have transformed a dark Victorian semi-detached terrace into a serene, brutalist-inspired home in East London.




客户是一对年轻夫妇,最初委托DGN工作室将他们朝北的黑暗厨房重新配置成一个用于活动和聚会的明亮的公共区域,并重新组织楼上的浴室。然而,由于这对夫妇发现了DGN工作室对天然材料的独特眼光和巧妙的空间规划能力,设计方案很快演变为包括对上层楼的轻度翻新。
The clients, a young couple, initially appointed DGN Studio to reconfigure their dark north-facing kitchen into a light communal area for events and gatherings and to reorganise the upstairs bathroom. However, the brief quickly evolved to include a light renovation of the upper floor as the couple cottoned on to DGN Studio’s exceptional eye for natural materials and clever spatial planning nous.

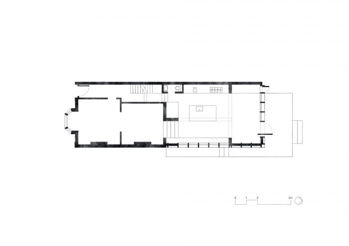
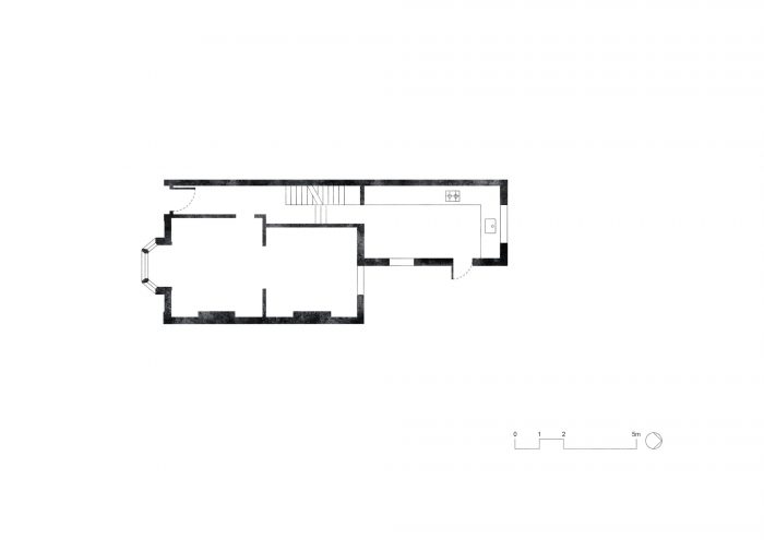
DGN工作室摒弃了维多利亚时期典型的互不相连的小房间安排,选择了一个在物理上和视觉上都很流畅的功能性平面图。平行的阶梯式开口将每个空间连接起来,并提供了从入口和前客厅到后花园的长距离开放视野。
Doing away with the typical Victorian arrangement of small disconnected rooms, DGN Studio opted for a functional floor plan that flows both physically and visually. Parallel stepped openings link each space and offer long open views from the entry and front living room through to the rear garden.

迪尼森木地板和柔和的水磨石瓷砖将参观者引向厨房,在那里,客户对混凝土的热爱得到了颂扬。长而低的混凝土长椅从混凝土地板上长出,在厨房和用餐空间的周边排列,作为多用途的座位、舞台和展示选择。混凝土厨房台面漂浮在烟色的Farrow & Ball "Railings "橱柜上,与上墙的微水泥渲染相接。一个隐藏的地窖门通向公用事业空间,使功能性的杂物不被看到。
Dinesen timber floors and muted terrazzo tiles draw visitors into the kitchen where the clients’ love of concrete is celebrated. Long, low concrete benches grow from the concrete floors to line the perimeter of the kitchen and dining space as multi-purpose seating, staging, and display options. The concrete kitchen worktop floats on smokey Farrow & Ball ‘Railings’ cabinetry, met by microcement rendering to the upper walls. A hidden cellar door leads down to a utility space to keep functional clutter out of sight.

混凝土的厚重感被软橡木的使用和厨房岛上方的大天窗所平衡。简单的橡木窗吸引了更多的光线,向维多利亚时代露台的传统玻璃窗致敬,并将厨房的宽度延伸到绿树成荫的侧面通道。
The heaviness of the concrete is balanced by the use of soft oak joinery and a large skylight above the kitchen island. Simple oak sash windows draw in yet more light in a nod to the traditional glazing of Victorian-era terraces, and extend the width of the kitchen onto the leafy side return passage.

由于现有厨房的天花板高度太高,DGN工作室将地板降低了半米,并选择了一个木制天花板结构,以使新的扩展部分具有最佳的光线和高度。降低的楼层在结构上表现为一个混凝土托盘,三根混凝土柱子从中升起,支撑起一个T型钢架,而钢架又承载着房屋的上层。
Challenged with an oppressive ceiling height in the existing kitchen, DGN Studio lowered the floor level by half a metre and opted for an expressed timber ceiling structure to give the new extension the best possible light and height. The lowered floor level is expressed structurally as a concrete tray from which three concrete columns rise to support a T-shaped steel frame which in turn carries the upper level of the house.


内部的混凝土托盘延伸到花园,混凝土挡土墙、基座和台阶形成了长椅和非正式的座位。
The internal concrete tray extends into the garden where the concrete retaining walls, plinths & steps form benches and informal seating.

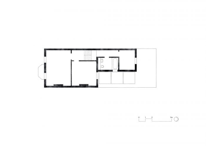
楼上的DGN工作室采用了一种更轻盈的方式,拆除了一个废弃的烟囱,并将浴室重新组织成一个功能齐全、光线充足的私人空间。卫生间的窗户以前可以看到相邻的淋浴间,因此DGN工作室将其移到对面,并在浴缸上方增加了一个天窗,为客户和邻居重新引入了光线和隐私。
Upstairs DGN Studio applied a lighter touch, removing a disused chimney breast and reorganising the bathroom into a functional, well-lit private space. The bathroom window previously looked into the neighbouring shower, so DGN Studio shifted this across and added a skylight over the bath to reintroduce light and privacy for both the clients and neighbours.

建筑师在狭小的城市场地上发挥了深度和功能性。室内的混凝土长椅在室外也得到了利用;窗棂穿透了长而低的混凝土形式,在侧面的回廊和后部的天井里创造了间歇性的角落座位。
The architects have played with depth and functionality on the tight urban site. The interior concrete benches are utilised outside too; the sash windows perforate the long, low concrete forms creating intermittent nook seating all along the side return and rear patio.




















Architects: DGN studio
Area : 157 m²
Year : 2020
Photographs :Nick Dearden
Manufacturers : Diespeker & Co, Dinesen, Duravit, Farrow and Ball, Gessi, Steyson, Vola, Dean Edmonds, Plaster Collective
Main Contractor: : Orsman Construction
Country:UNITED KINGDOM