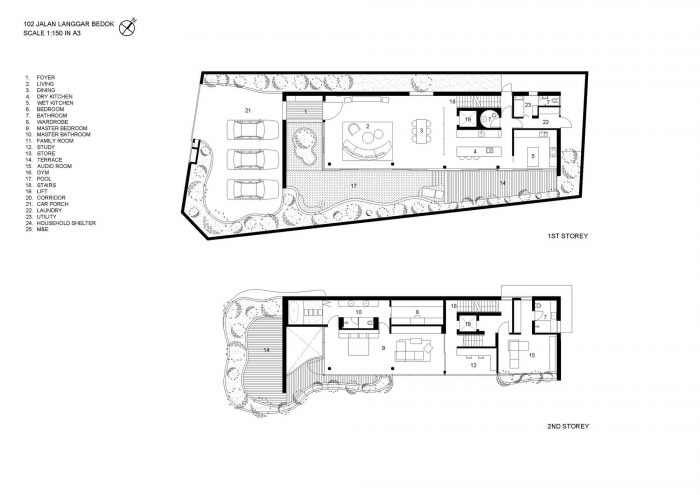
每个场地都有其好的和坏的方面。而每个建筑师都试图在设计建筑时利用好的方面,同时又要避免坏的方面。这座房子也不例外。在正面,房子朝西,有一个硬的街景。侧面和后面的建筑与邻近的房子很近,而且是密集的建筑。幸运的是,房子的南边边界面对着一条相邻的道路和一大片空地,这是 "好 "的一面。而这个房子的设计也许是好与坏的二元对立的最清晰的表达。
Every site has its good and bad aspects. And every architect tries to design the building to take advantage of the good things whilst at the same time shielding it from the bad. This house is no exception. On the front, the house faces west and has a hard streetscape. The side and rear are built up with neighboring houses close and densely built up. Fortunately, the south boundary of the house faces an adjoining road and a large open field and this is the ‘good’ side. And the design of this house is perhaps the clearest expression of the dichotomy between good and bad.



一个混凝土外壳包裹着房子的结构,沿着房子的梯形从前面到后面缩小。所有3个 "坏 "的一面都是相对坚固的,将房子与西面和邻居屏蔽开来。在 "好 "的一面,房子是完全开放的,提供开放空间的视野。房子的顶部还有一个倾斜的混凝土屏风,为玻璃立面提供了遮阳,同时也露出了从穿孔中插入的绿色植物。
A concrete shell wraps around the structure of the house, following the trapezoidal shape of the house which narrows from front to back. All the 3 ‘bad’ sides are relatively solid, shielding the house from the western side and neighbors. On the ‘good’ side, the house is completely open, offering views of the open space. The house is also perforated at the top with a slanting concrete screen, offering shade to the glass façade and at the same time revealing greenery thrusting through the perforations.

与混凝土外壳和屏风的精确几何形状相对应的是一系列的曲线梯田。它们从汽车门廊的屋顶开始,蜿蜒曲折地走向侧面。位于不同楼层的其他梯田也采用了这一主题,在游泳池和户外梯田上方创造了一个郁郁葱葱的户外绿色空间。在入口处,一棵盆景树坐落在水景中,让混凝土墙后的游客感到惊讶。
A counterpoint to this precise geometry of the concrete shell and screen is a series of curvilinear terraces. They start as the roof of the car porch and sinuously curve their way to the side. Other terraces at different levels take on the theme, to create a lush outdoor green space overhanding the pool and outdoor terraces. At the entrance, a bonsai tree sits amidst a water feature, surprising the visitor behind the concrete wall.















Architects: HYLA Architects
Area: 527 m²
Year: 2022
Photographs:Derek Swalwell
Manufacturers: Glos, Gracezone, Kawajun, Kohler, Le Lighting
Engineering: GCE Consultants
Landscape Contractor: Nyee Phoe Flower Garden Pte Ltd
Main Contractor:: Emma Groups Construction Pte Ltd
Design Team: Tiffany Ow, Jacelyn Pau, Thomas Ong
Country: Singapore