回到现实,这是在开发设计为人服务的空间的想法时的标准。连接别墅也是根据这个标准来发展设计理念的,当你回到现实,你可以很好地与人、与自然、与自己连接。连接别墅项目位于越南平阳省Thu Dau Mot的Moi市。连接别墅为配偶、2个儿子和祖父母服务。业主是一个拥有简单生活方式的人,热爱大自然。
Return to reality, that is the criterion when developing ideas to design spaces that serve people. Connect Villa also develops design ideas based on this criterion, when you come back to reality, you can connect well with people, with nature, and with yourself. Connect Villa project is located in Moi City, Thu Dau Mot, Binh Duong Province, Vietnam. Connect Villa serves Spouses, 2 sons, and grandparents. The owner is a person who has a simple lifestyle, loves nature,



为了在家庭成员之间创造凝聚力,我们开发了一个建筑,让人们感到有兴趣生活在现实中。它没有太多的装饰,口音,或令人印象深刻的材料和物品,让人们沉浸在其中。而且建筑不是那么简约,让人们感到被剥夺,然后他们会梦想更好的东西 有趣的建筑空间,只需要让你回到现实,你有现实中拥有这一切。家庭成员可以很容易地与大自然接触,这要归功于卧室可以从许多不同的方向向外开放。由于有天窗,还可以在屋内打开卧室的窗户。
To create cohesion among family members, we develop an architecture that makes people feel interested to live in reality. it does not have too many decorations, accents, or impressive materials and items for people to immerse in it. and the architecture is not so minimalistic that people feel deprived, then they will dream of better things Interesting architectural space, just enough for you to return to reality, you have the reality of having it all. Family members can easily be in contact with nature thanks to the bedroom which can open in many different directions to the outside. and can also open the bedroom window in the house thanks to the skylight,



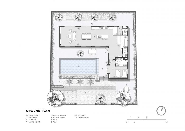
该小区的设计远离道路,呈L型发展,拥抱着游泳池,有助于房间的空间可以看到游泳池。通过阳台或卧室的窗户可以很容易地看到对方并与之联系。天窗和楼梯的天窗被巧妙地安排,使卧室不共用墙壁,为每个人创造隐私,但也创造了房子中各楼层之间的联系。
The block is designed much back from the road and develops in an L-shape embracing the swimming pool, helping the space of the rooms to have a view of the pool. And through the balcony or window of the bedrooms can easily see and connect with each other. Skylights and skylights of the stairs are cleverly arranged so that the bedrooms do not share walls to create privacy for each individual but also create a connection between floors in the house.


一个刚刚好的建筑,一个刚刚好的空间,利用建筑中的密度和空心,创造出空间和形状的平衡。 帮助人们对现实和生活空间有一个更清晰的认识,使他们能够与家人一起快乐、幸福、可持续地生活。
An architecture just enough, a space just enough, exploiting the density and hollowness in architecture to create a balance of space and shape. help people have a clearer idea of reality and living space so that they can live happily, happily, and sustainably with their families.





















Architects: Story Architecture
Area : 525 m²
Year : 2022
Photographs :Minq Bui
City : Ho Chi Minh City
Country : Vietnam