我们相信,建筑是对许多参数的回应,背景、场地、植被、地理和气候。当在像巴鲁克这样干燥和干旱的地方建房时,热,在瓜哈拉蒂语中被称为 "厕所",是建筑必须要应对的一个重要参数。在建造房屋时,必须考虑到许多实际的舒适参数,而对于巴鲁克的这所房子来说,尤其是要解决夏季的高温问题。凉爽之家 "这个名字来自于房子的设计方式,它是夏天的喘息之所,是烈日下的树荫,用我们的赞助人的话说,房子就像一个漏斗,把巴鲁克的风全部导入房子,使之成为凉爽舒适的居住天堂。
We believe that architecture is a response to many parameters, context, site, vegetation, geography, and climate. When building in a dry and arid place like Bharuch, the heat, locally called "loo" in Guajarati was a big such parameter that the architecture had to respond to. When making a house, it is imperative to take cognizance of many practical parameters of comfort, and for this house in Bharuch it was particularly tackling the summer heat. The name Cool House has come from the way the house has been designed, a respite in the summer, a tree's shade under the scorching sun, the house as in the words of our patron is like a funnel that channels all of Bharuch's wind into the house, making it a cool comfortable haven to live in.



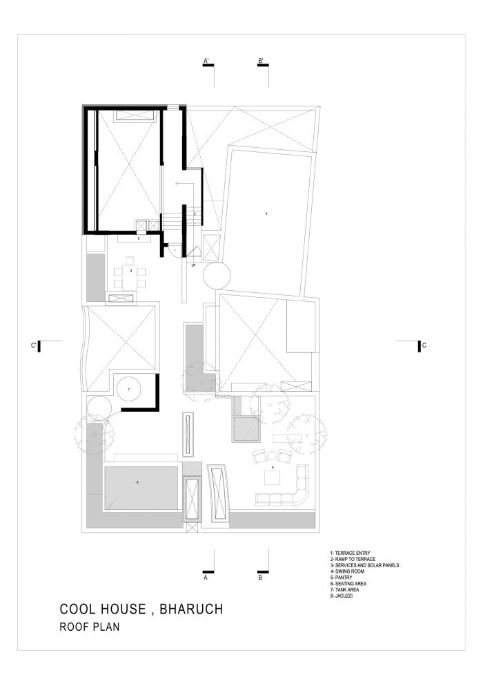
房子的设计像一条轨道,两边的房间被垂直打穿,在中央轨道般的走廊两边形成两个庭院。院子从一楼开始,从房子里可以看到天空。处于小镇上一个紧凑的排屋结构中,环境确实是另一个非常接近的房子。房子被设计成一个盒子,相当内向,窗户是战略性的,可以带来凉爽的微风和散射尖锐的光线。南面的立面保持了相当的死角,风被允许从西南面的院子里通过,并从东北面的院子里逸出,给整个房子通风。
Designed like a track with rooms on either side the house is punctured vertically making two courtyards on either side of the central track-like corridor. The courtyards begin from the first floor and frame views of the sky from the house. Being in a tight row house fabric in the town the context really is another house in great proximity. The house is designed like a box, rather inward-looking with windows that are strategic to bring in the cool breeze and diffuse the sharp light. The south facade is kept fairly dead and the wind is allowed to pass from the southwest courtyards and escape from the northeast courtyard ventilating the entire house.

一个院子里有浅水体,在风进入房子之前就能冷却进来的风。这个院子也有一个jali,可以让风被引导,然后抛入屋内,就像夏日下午的一缕凉风。另一个院子的一楼有树木,从内部为房子提供了一种背景,让内部的窗户可以看到树冠。虽然是向内看,但在房子里有一个持续的内外运动的编排,你会遇到庭院,并可以从中央轨道走出去。
One courtyard has shallow waterbody that cools the incoming wind before it enters the house. This courtyard also has a jali that allows for the wind to be channeled and then thrown into the house like a whiff of a cool breeze on a summer afternoon. The other courtyard has trees on the first floor making a sort of context for the house from within and allowing internal windows to see the tree crowns. Although inward looking there is a constant choreography of inside and outside movement within the house where you encounter the courtyards and can step out to them from the central track.


为了帮助抵御炎热,房子也有厚厚的外墙和一个用石灰 "chuno "做的凉爽舒缓的内部,帮助房间从内部冷却。这座房子是当代建筑的一个例子,它在很大程度上依赖于我们与生俱来的对气候和材料的了解,这些材料在这样恶劣的气候地区也能发挥作用。这座房子从外面看就像一个盒子,有独特的材料性,一个涂成黑色,另一个使用小的定制可爱的siporex砖,非常有触感,语义使轨道走廊的逻辑和两侧的体积非常明显。在大体上确定了一些小的口袋,这些口袋刺破了它,绿色被允许从内部生长。
To help with beating the heat, the house also has thick external walls and a cool soothing interior done in lime "chuno" that helps cool the rooms from within. The house is an example of contemporary architecture that heavily relies on our innate knowledge of climate and materials that work in such harsh climate regions. The house, like a box from the outside, has unique materiality, one painted black and the other very tactile using small custom cute siporex bricks, the semantics makes the logic of a track corridor and volumes on either side very evident. Small pockets have been identified within the mass that punctures it and green is allowed to grow from within.


巴鲁克的 "酷屋 “给我们大家带来了惊喜。虽然房子里的一切都经过有意识的设计,但在夏天的高峰期,房子里的微风真的把我们吹走了,无论是字面上的还是象征性的。
The 'Cool House' in Bharuch has been a surprise for us all. Although everything has been consciously designed within the house, the breeze in the house at the peak of summer has really blown us away, literally and figuratively.





































Architects: Samira Rathod Design Atelier
Area : 10500 ft²
Year : 2022
Photographs :Niveditaa Gupta
Lead Architect : Samira Rathod
Project Management : HR Constructions, Mitesh Jadav
Project Architect : Jay Shah
Structural Consultant : Rajeev Shah
City : Bharuch
Country : India