Corte Bertesina位于维琴察郊区,距离Piazza dei Signori只有3公里,是一个典型的十九世纪威尼斯农村院落,与一个占地17公顷的乡村庄园相连,有经过认证的蔬菜、谷物和饲料的有机花园。这些花园被保护在一个巨大的区域内,该区域于2001年种植了波河谷的原生树木。自2010年以来,该庄园还作为一个社会农业中心,为患有唐氏综合症的年轻人提供工作机会。
Located on the outskirts of Vicenza and only 3km from Piazza dei Signori, Corte Bertesina is a typical, rural, nineteenth century Venetian courtyard connected to a 17-hectare country estate with certified organic gardens of vegetables, grains and fodder. The gardens are protected inside a vast area planted in 2001 with trees native to the Po Valley. Since 2010, the estate also functions as a social farming center, offering job opportunities to young people with Down Syndrome.


该项目的目标是再生和完善现有的建筑核心,旨在发展新的功能关系:加强森林景观的文化和教育活动,通过有唐氏综合症的年轻人参与的社会农业活动,与当地社会合作社的合作,准备和销售农产品,住宅,床和早餐。
The objective of the project has been to regenerate and complete the existing building core with the intention of developing new functional relationships: cultural and educational activities for the enhancement of the forest landscape, social farming activities through the involvement of young people with Down Syndrome, collaboration with local social cooperatives, preparation and sale of agricultural products, residences, bed and breakfast.

此外,该项目旨在尽可能少地介入自然环境,为其未来的居民从周围环境中吸收视觉、能量和健康的潜力。
Additionally, the project aims to intervene into the natural context as lightly as possible, absorbing from the surroundings visual, energetic and wellness potential for its future inhabitants.

可持续发展的概念是该项目社会意图的驱动力,包括其用户的福祉、建筑材料和施工技术的选择以及能源的生产和使用。
The concept of sustainability was a driving force behind the social intentions of the project, encompassing the wellbeing of its users, the choice of building materials and construction techniques, and energy production and use.



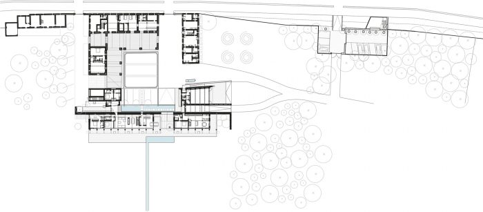
历史性庭院的空间在南边被一堵用传统方法建造的当地石材的长条形墙所界定。这堵墙在院子里的公共和社会功能与新住宅的私人项目之间起到了 "过滤 "作用。
The space of the historic courtyard is defined on the south edge by a long, linear wall in local stone built using traditional methods. The wall acts as a “filter” between public, social functions that occur in the courtyard and the private programs of the new residences.

新的住宅体量是线性衔接的:轻质结构,铰接在石墙上,石墙位于一个大的地下楼层,被设计用来容纳居民的车辆。与外部景观的视觉联系、太阳的方向和自然通风的控制是设计方案的主要因素。
The new residential volumes are articulated linearly: light structures, hinged onto a stone wall which sits on a large, underground floor conceived to house the residents’ vehicles. A visual connection with the exterior landscape, the sun’s orientation and the control of natural ventilation are the main factors that informed the design solution.

屋顶覆盖物的形状是为了控制自然光并最大限度地发挥其光伏潜力。
The roof covering is shaped to control natural light and maximize its photovoltaic potential.

在东南面,一个简单的由不规则落叶松木板覆盖的体量使院子更加完整:它容纳了文化中心,致力于教育和欣赏周围的森林景观。它的玻璃墙将游客的注意力引向户外风景和林地内的小路网络。
On the southeast, a simple volume clad in irregular larch planks completes the courtyard: it holds the cultural center, dedicated to the education and appreciation of the surrounding wooded landscape. Its glass wall guides the visitors’ attention towards the outdoor scenery and a network of trails inside the woodland.

从建筑的角度来看,该干预措施是以创新的精神来处理的,使用轻型预制建筑方法的发展,使该项目在有限的时间内完成。设计过程类似于工业产品,并确定了由当地工业公司和工匠在现场外建造的各种木材、钢铁和石材的建筑部件。这些部件在现场使用构造连接器进行组装。
From a construction standpoint, the intervention was approached with an innovative spirit, using the development of light, prefabricated construction methods which allowed the project to be concluded in a limited time frame. The design process resembled that of an industrial product and defined various construction components in wood, steel and stone built off-site by a group of local industrial companies and artisans. The components were than assembled on-site using tectonic connectors.


由数控系统生产的材料是传统的,选择这些材料是为了容易融入周围的环境。落叶松木因其耐用性而被选为主要建筑材料。在整个项目中,可以看到它以胶合层压梁和柱子的形式出现,室内和室外的围墙,门窗框架和遮阳,作为地板和定制家具的设计中。
The materials, produced by numerical control systems, are traditional and chosen to easily blend into the surrounding environment. Larch wood, conventionally used for its durability, was chosen as the main construction material. Throughout the project it can be found in the form of glued laminated beams and columns, interior and exterior enclosures, in door and window framing and shading, as flooring and in the design of custom-made furniture.



























Architects: traverso-vighy architetti
Area : 2258 m²
Year : 2017
Photographs :Alessandra Chemollo
Manufacturers : Bevilacqua Marmi srl, Carretta Serramenti, KLH, Luce&Light, Mitsubishi Electric
Electrical And Mechanical Design : Gruppo SIA
Lighting Company : L&L Luce&Light
Client : Azienda Agricola Corte Bertesina
Collaborators : Lucia Angelini, Cristina Baggio, Chiara Cavalieri, Stefania Dal Bianco, Giulio Dalla Gassa, Giulia Maria d’Arco, Aurelia Marzano, Grace Rome
Structural Design : Loris Frison
Safety : Giorgio Schettin
Architect In Charge : Giovanni Traverso, Paola Vighy
City : Vicenza
Country : Italy