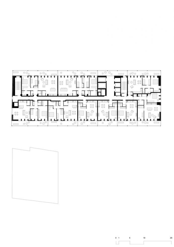
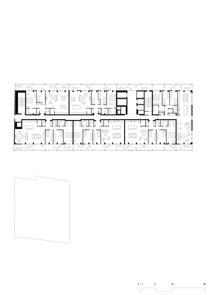
在Quai aux Pierres de Taille,一个已不复存在的布鲁塞尔港口的前码头,周围是旧仓库,旁边是皇家弗拉芒剧院,一座60年代的办公塔楼拔地而起。建筑的风格和规模与当地的城市结构形成了鲜明的对比,但由于其垂直于街道的植入,这座塔楼依然低调,常常不被人注意。该项目将该建筑深刻地转变为一个多功能的综合体,包括130个单元,分为各种不同的住宅,从紧凑的智能工作室到宽敞的三卧室公寓。
At the Quai aux Pierres de Taille, a former quay of the no longer existing harbour of Brussels, surrounded by old warehouses and next to the Royal Flemish Theatre, a 60’s office tower rises above its neighbours. The style and scale of the construction contrast with the local urban fabric, but thanks to its perpendicular implantation to the street the tower remains discreet and often unnoticed. The project profoundly transformed this building into a mixed-use complex comprising 130 units divided in a variety of dwellings ranging from compact smart studios to generous 3 bedrooms apartments.



停车位数量的大幅减少,使得清理周围环境成为可能,以提供一个新的视觉和物理的多孔性。在这个城市背景下,精致的植物与大树相结合,以及在地下停车场的一棵树,通过上层甲板的开口出现。
A drastic reduction in the number of parking spaces made it possible to clear the surroundings in order to offer a new visual and physical porosity through the block. In this urban context, delicate plants combined with large trees were planted as well as a tree in the underground car park that emerges via an opening in the upper deck.

现有体量的线性和场地的多孔性通过沿底层的双高V形柱廊得到加强,并定义了通往建筑主入口的人行通道。在这些柱廊之上,一个轻质的白色脚手架式钢结构支撑着宽大的阳台。可移动的穿孔屏风优雅地提供了遮阳和避风的功能。在场地的东南角,增加了一栋有26个单元的中层住宅楼,延续了运河街的街面。
The linearity of the existing volume and the porosity of the site were reinforced by the creation of double-high V-shaped colonnades running along the ground floor and defining sheltered pedestrian circulation leading to the building's main entrance. Above these colonnades, a lightweight white scaffold-like steel structure supports generous balconies. Movable perforated screens elegantly provide shading from the sun as well as protection from the wind. In the South-East corner of the site, a mid-rise housing block with 26 units was added continuing the street facade of Rue du Canal.



该项目恢复并加强了该地块现有的品质,增加了住房单元的数量,在混合社区的中心地带提高了城市密度,同时鼓励了软性流动。
The project restores and reinforces the existing qualities of the site, it increases the number of housing units promoting a quality urban density in the heart of a mixed neighbourhood while encouraging soft mobility.



















建筑师:BOGDAN & VAN BROECK
占地面积: 16000 m²
年份:2019年
照片:Jeroen Verrecht, memymom
设计团队:L. Croegaert, M. Czvek, M. Lefeber, M. Pocuch, S. Poot, T. Rigby, D. Stefanescu, L. van Innis, T. Willemse.
客户:Besix RED, Avenue des Communautés 100, 1200 Woluwe-Saint-Lambert, BE.
结构:UTIL Struktuurstudies
技术:Concept Control
声学:ASM Acoustics
项目管理:Cetim
城市:布鲁塞尔
国家:比利时
Architects: BOGDAN & VAN BROECK
Area: 16000 m²
Year: 2019
Photographs: Jeroen Verrecht, memymom
Design Team:L. Croegaert, M. Czvek, M. Lefeber, M. Pocuch, S. Poot, T. Rigby, D. Stefanescu, L. van Innis, T. Willemse
Client :Besix RED, Avenue des Communautés 100, 1200 Woluwe-Saint-Lambert, BE
Structure :UTIL Struktuurstudies
Techniques :Concept Control
Acoustics :ASM Acoustics
Project Management:Cetim
City:Brussel
Country:Belgium