这个五口之家的房子位于萨格勒布市有吸引力的住宅区,被设计成天井式住宅和原型体量之间的混合体。
The house for a family of five, located in the attractive residential part of the city of Zagreb, is designed as a hybrid between a patio house and an archetypal volume.



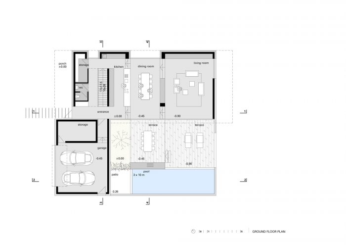
内敛的底层包括生活空间,围绕着一系列的服务区流畅地组织起来,并面向他们自己的微观世界--一个带游泳池的南院。整个楼层被一个巨大的周边纹理砖墙 "包裹 "着。
The introverted ground floor encompasses living spaces, fluidly organized around a series of service blocks and oriented to their own microcosm of a south courtyard with a swimming pool. The entire level is ‘wrapped’ by a massive perimeter textured brick wall.


遵循地形的自然下降,空间是层叠的,从最低的入口到最高的客厅。院子里的露台与室内的层次相一致。
Following the natural decline of the terrain, the spaces are cascading, from the lowest - the entrance to the highest - the living room. Terraces in the courtyard follow the interior levels.


一楼的铜质体量覆盖了入口,并向东延伸,捕捉到了城市的景色。
The copper volume of the first floor covers the entrance and extends far to the east capturing a view of the city.


卧室模块是线性组织的,伴随着一个22米长的衣柜。儿童房是迷你阁楼,有一个用于睡觉(或玩耍--取决于用户)的长廊,可通过人字形的衣柜楼梯进入。
Bedroom modules are linearly organized and accompanied by a 22m long wardrobe. Children’s rooms are mini lofts with a gallery for sleeping (or playing – depending on the user) accessible by zig-zag wardrobe stairs.

除了垂直交流和与入口处的空间连接外,还有一个多功能空间作为图书馆、书房和儿童客厅。
Along with the vertical communication and spatially connected to the entrance, a multipurpose space serves as a library, study, and children’s living room.

在地下一层,在技术室旁边,有健身和桑拿区,并面向一个小型镂空天井。通过天井和水池的玻璃墙,桑拿房提供了水池中的水和天空的地下景观。
On the underground level, beside technical rooms, fitness and sauna areas are located and oriented to a small hollowed-out patio. Through the patio and the glazed wall of the pool, the sauna offers an underground view of the water in the pool and the sky.














Architects: MVA Mikelić Vreš Arhitekti
Area : 499 m²
Year : 2020
Photographs :Bosnić+Dorotić, Jure Živković
Manufacturers : Aurubis, Foscarini, Luceplan, Moooi, Mutina, Varaschin, Flexteam, GIMA, Schuco, Velux
Lead Architects : Marin Mikelić, Tomislav Vreš
Structural Engineering : Konstrukta d.o.o.
MEP : TT inženjering d.o.o.
Electrical Engineering : ETS Farago d.o.o.
HVAC Engineering : TT inženjering d.o.o.
Landscape : Kreativni krajobrazi d.o.o.
Design Team : Marin Mikelić, Tomislav Vreš, Marija Barović
Collaborating Architects : Viktor Vdović, Mirta Rusan, Petra Matić
City : Zagreb
Country : Croatia