在素万那普机场附近的一个村庄里,有一栋两层楼的独立屋,面积为150平方米,只占256平方米地块的三分之二。对于一个有五个成员的家庭来说,它太小了;一对夫妇带着两个孩子和祖母。剩下的三分之一的土地没有使用,因此,它被变成了另一个扩建的房子。
A two-story single-detached house settles in a village near Suvarnabhumi Airport, with its size of 150 square meters, located in only two-third part of 256 square meters plot. It was too small for a family with five members; a couple with two kids and grandma. The rest one-third of the land was left over with no usage; thus, it is turned into another extension house.





不仅是小的曲线三角形的土地形状,而且还位于连接公共街道两侧的角落。扩建的形状类似于一个海湾,与土地的曲线平行,以充分使用空间的潜力。
Not only small curve-triangular land shape, but also located at the corner which connects to both sides of public street. An extension shape is similar to a cove which parallel with the curve of the land, in order to use the space to its full potential.

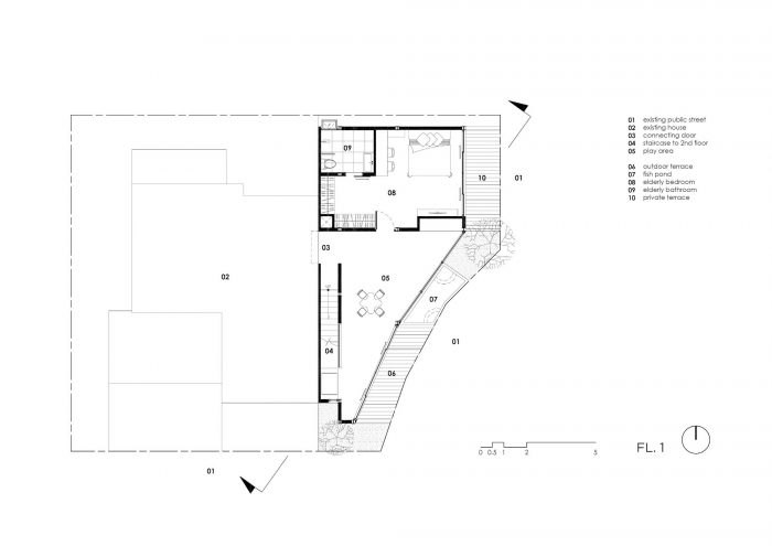
三层楼的设计结合了所有需要的功能,即:一个活动空间连接到现有的房子和室外露台,一楼是老人的卧室,二楼是主卧室,顶楼是生活区。由于现有的花园被建筑所取代,它被抬高到顶层,以保持绿色区域,同时增加房屋的室内使用空间。
Three-floor is created to combine all functions needed, which are; an activity space connects to an existing house and outdoor terrace with one bedroom for elderly on the first floor, master bedroom on the second floor, and living area on the top floor. Since an existing garden is replaced by the building, it is elevated to the top floor instead, to remain green area with increasing indoor used space of the house.


钢结构的应用,主要是为了减少梁的深度,这影响了建筑的总高度,但它有助于减少柱子的尺寸,增加更多的室内空间。两个楼梯被放置在不同的角落,以减少流通。楼梯之间的双重空间带有天窗,使自然阳光可以照到楼下,而不是产生缺乏隐私的垂直空隙。
Steel structure is applied, mainly for reducing beams’ depth which affects total building height, yet it helps decreasing column size which increasing more interior space. Two staircases are placed in different corner which minimize circulation. Double space in between the stairs with skylight allows natural sunlight through downstairs, instead of creating vertical voids with lacks privacy.

由于房子位于拐角处,需要有隐私,所以需要有外墙遮挡。垂直的铝制花架和穿孔金属被用来覆盖所有的凹槽,延续到现有的房子,以协调两个建筑。
As the house located at the corner while privacy is needed, façade cover is required. Vertical aluminum trellis together with perforated metal are used to cover all cove, continuing to an existing house, to harmonize both buildings.


























Architects: TOUCH Architect
Area: 170 m²
Year: 2021
Photographs: Anan Naruphantawat
Manufacturers: Alumet, COTTO, Champaca, SCG
Contractor: DWN Builder
Design Team:Pitchaya Tiyapitsanupaisan, Supanan Tangsajjanuraksa, Tanita Panjawongroj
Client:Kongkiat Punpanich
Civil Engineer:Chittinat Wongmaneeprateep
Architects:TOUCH Architect
Interior Contractor:TRIGON Design Con
Country:Thailand