这个位于法国Ville de Cranves-Sales的项目的建议是,通过在两个不同的露台上建造 "两所学校 "来最大限度地利用土地的双坡,这两所学校都处于俯瞰周围环境的有利位置。
The proposal of this project in Ville de Cranves-Sales, France, is to maximize the use of the double slope of the land by building "two schools" developed on two different terraces, both in a vantage point over their surroundings.


位于南部的通道由俯瞰庭院的屋顶划定,作为通往小学、课外班和大型多功能厅的通道,从而在设备使用方面提供更大的灵活性。
The access, located in the south, is delimited by a roof that overlooks the courtyard and serves as access to the primary school, extracurricular classes, and the large multipurpose room, thus offering greater flexibility in the use of equipment.


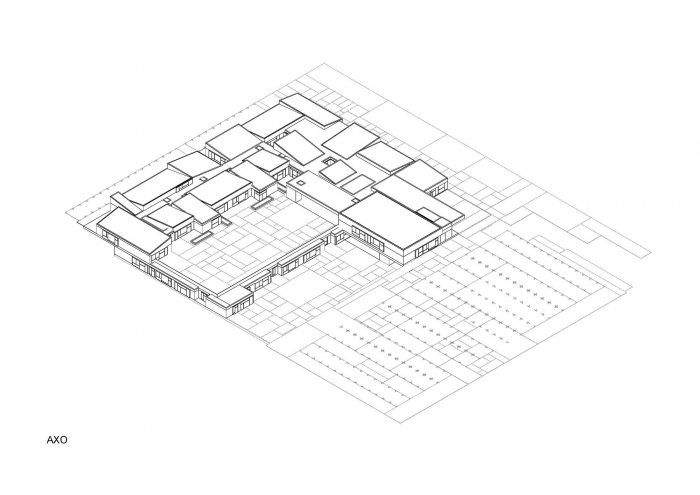
在寻求以最佳方式适应环境的过程中,该项目根据每个项目提出了零散的体量,从而为不同的用途提供了更适当的规模,并最大限度地减少了巨大的 "UFO "型项目的误导性概念,这与城市学校在密集的环境中更相关。
In the search to adapt in the best possible way to the context, the project proposes fragmented volumes according to each program, thus allowing a more adequate scale for the different uses and minimizing the misleading notion of a huge “UFO” type project, which would be more related to an urban school, in a denser environment.

从建筑的最高点可以看到,该项目采用了倾斜的屋顶,与植被相连,从而确保了这第五个立面的完美封闭,并将其融入当地的建筑遗产。
Visible from the highest point of the building, the project incorporates sloping roofs that connect with the vegetation and thus ensure the perfect closure of this fifth façade and its integration into the local architectural heritage.

用户安全是决定将学校设在两个不同楼层的原因之一:这样,每个教室都可以与外部互动,从而创造出更直接和方便用户的路线。另外,与第一层不同的是,土地的坡度要求创建一个较低的层次,以便不成为一个大堤。建议的景观是当地森林的碎片和并列的石头体量。
User safety is one of the reasons why it was decided to locate the school on two different levels: so that each classroom can interact with the outside, thus creating more direct and user-friendly routes. Also, unlike the first level, the slope of the land required the creation of a lower level, so as not to become a large embankment. The proposed landscape is that of a fragment of local forest and juxtaposed volumes of stone.



当地的物种发展迅速,在短短7年内提供了一个不可改变的景观记录,与建筑的位置完全平衡,考虑到植被的体积与建筑的体积的关系。
The local species are of rapid development, offering in just 7 years the immutable record of a landscape that is unified with the location of the building in total balance, considering the volume of vegetation in relation to the volume of the building.

根据这一逻辑,两个院子是平地,允许在设施旁边有充足的游戏和景观空间,学校是被周围山脉包围的景观的中心点。
According to this logic, the two courtyards are flat land and allow for ample play and landscaping spaces next to the facilities, the school is a central point in the landscape surrounded by the surrounding mountain ranges.

学校的材料性寻求促进长期的耐久性,高度变化的内部通过使用鲜艳的颜色得到加强,同时通过在所有公共区域和地板上使用木材加强了温暖的感觉。
The materiality of the school seeks to promote durability over time and the highly varied interior is enhanced with the use of vibrant colors and at the same time reinforces the feeling of warmth with the use of wood in all common areas and on the floor.
































Architects: Christophe Rousselle Architecte
Area : 2645 m²
Year : 2022
Photographs :Takuji Shimmura
Landscape : Verdance
Project Leader : Jean-Philippe Marre
Kitchen : BEGC
City : Cranves-Sales
Country : France