对这个位于多伦多历史悠久的 "小城 "的不起眼的单层工人别墅的彻底改造,将一个破旧的房子变成了一个发光的、空灵的大流行的避难所。客户Laurel Hutchison是一位靠固定收入生活的退休教师,她的预算被指定用于基本的装修,以拯救她112年历史的房屋。结果是一个720平方英尺、比例微妙、光线充足的住宅,在其原来的基础上建造,同时重新考虑了工人别墅的方方面面--这种世纪之交的住房类型几乎已经从城市中完全消失了。
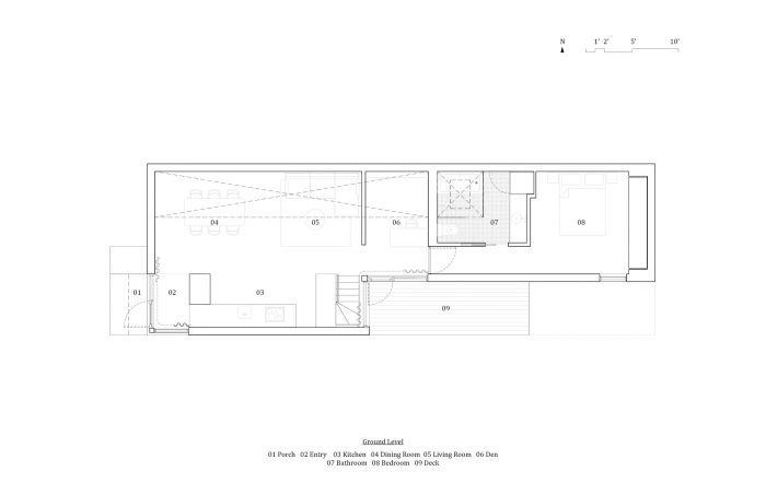
The complete transformation of this unassuming single-story worker’s cottage in Toronto’s historic "Tiny Town" turned a run-down house into a luminous and ethereal pandemic refuge. The client, Laurel Hutchison, is a retired schoolteacher living on a fixed income, with a budget earmarked for basic renovations to rescue her 112-year-old home from disrepair. The result is a 720 sqft, delicately proportioned, light-filled home, built on its original foundations while re-envisioning every other aspect of the worker’s cottage vernacular – a turn-of-the-century housing typology that has almost completely disappeared from the city.


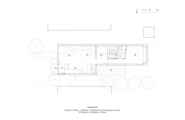
背景。克雷文路代表了一种不寻常的城市状况。这条街以前被称为Erie Terrace,最初在20世纪初被开发为低收入劳工和移民的住所。这条非典型的街道只在街道的东侧有小型住宅,西侧有市政围栏,是多伦多500平方英尺以下独立住宅最集中的地方。今天,克雷文路仍然是一个紧密的社区和独特的建筑前哨,在一个越来越难以负担的城市。
Context. Craven Road represents an unusual urban condition. Previously known as Erie Terrace, the street was originally developed to house lower-income laborers and immigrants in the early 20th century. With small dwellings lining only the street’s east side, and a municipal fence running along the west, this atypical thoroughfare was the site of Toronto’s highest concentration of detached homes under 500 sqft. Today, Craven Road remains a close-knit community and unique architectural outpost in an increasingly unaffordable city.


背景。克雷文路代表了一种不寻常的城市状况。这条街以前被称为Erie Terrace,最初在20世纪初被开发为低收入劳工和移民的住所。这条非典型的街道上只有东侧的小型住宅,西侧有市政围栏,是多伦多500平方英尺以下独立式住宅最集中的地方。今天,克雷文路仍然是一个紧密的社区和独特的建筑前哨,在一个越来越难以负担的城市。
Context. Craven Road represents an unusual urban condition. Previously known as Erie Terrace, the street was originally developed to house lower-income laborers and immigrants in the early 20th century. With small dwellings lining only the street’s east side, and a municipal fence running along the west, this atypical thoroughfare was the site of Toronto’s highest concentration of detached homes under 500 sqft. Today, Craven Road remains a close-knit community and unique architectural outpost in an increasingly unaffordable city.


主要的设计策略包括沿规划的长轴翻转方案,将规划重新定位到亲密的南向庭院,并通过将屋顶的传统檐口重新设计成36英尺长的锯齿状夹层来创造一种压缩和扩张的感觉,使住宅充满自然光线和新鲜空气。额外的开孔被战略性地引入,以吸引来自不同方向的光线,并将室内与小花园无缝连接,同时掩盖了从外部直接进入住宅的视野。这些形式上和现象上的策略共同创造了一种高度活跃的、不断折叠的空间感,打破了720sf住宅的物理界限。
The main design strategies included flipping the program along the plan's long axis, re-orienting the plan towards the intimate south-facing courtyard, and creating a sense of compression and expansion by reinventing the roof's traditional gable as a 36-foot long sawtooth clerestory to flood the home with natural light and fresh air. Additional apertures were strategically introduced to draw in light from various directions and seamlessly connect the interior to its small garden while obscuring direct views into the home from the outside. Together, these formal and phenomenological strategies create a sense of a highly animated, ever-unfolding space that defies the physical boundaries of the 720sf home.

这些设计决定是对客户要求的直接回应:希望有充足的光线、宁静的环境,以及相对于她繁忙的城市环境的隐蔽感。为了回应这种对孤独感的渴望--在这里可以独处,但不孤独--这个家已经被改造成一个光与影的容器,在这里,这两者似乎与劳拉一起居住在这个空间。尽管有相对简约的审美,但这个家总是让人感觉很充实。为了进一步强调这一点,住宅北墙的16英尺高的内部立面,构成了住宅主要生活空间的背景,作为一个投影屏幕,展示了不断变化的颜色、光芒和经过的季节的阴影,包括克拉文路西侧成熟的城市森林的斑驳的光线和树丛的剪影。
These design decisions were a direct response to the client's mandate: a desire for abundant light, peacefulness, and a relative sense of seclusion from her busy urban surroundings. In response to this desire for inspired solitude – where one can be alone, but not lonely – the home has been transformed into a vessel of light and shadow, where the two almost seem to inhabit the space, alongside Laurel. Despite its relatively minimalist aesthetic, the home always feels full. To further emphasize this, the 16-foot-tall interior facade of the home's north wall, which forms a backdrop to the home’s main living spaces, acts as a projection screen for the ever-changing color, glow, and shadow of the passing day and seasons, including the dappled light and arboreal silhouettes of the mature urban forest on the west side of Craven Road.

就地养老、可负担性和维护。该住宅由四个房间组成:一个合并的入口、客厅、餐厅和厨房空间;一个可以容纳一张单人床的小工作室/书房;一个合并的盥洗室/洗衣房;以及一个主卧室。这个简单的方案被一个就地养老的策略所补充,该策略整合了一个U型厨房,便于流通;一个适合无障碍设备的无路缘湿润室,墙壁被挡住,以便将来安装扶手;LED照明和坚固的饰面,以促进低维护和能源费用;为潜在的住家护理人员提供睡眠空间;以及一个前廊,设计成可以容纳未来的斜坡,并有一个保护天气的顶棚。
Aging-In-Place, Affordability, and Maintenance. The home consists of four rooms: a combined entry, living, dining, and kitchen space; a small studio/den that could accommodate a single bed; a combined washroom/laundry room; and a principal bedroom. This straightforward program was complemented by an aging-in-place strategy that integrates a U-shaped kitchen for easy circulation; a curbless wetroom suitable for accessibility equipment with walls blocked for future grab bars; LED lighting and robust finishes to promote low maintenance and energy bills; sleeping space for a potential live-in caregiver; and a front porch designed to accommodate a future ramp, with a canopy that protects against weather.









Architects: Anya Moryoussef Architect (AMA)
Area: 67 m²
Photographs:Doublespace Photography, Scott Norsworthy
Manufacturers: DuPont, Daltile, Delta Light, Liteline, Moncer Specialty Flooring, Torp Inc, Velux
Lead Architects: Anya Moryoussef, James Swain, Deborah Wang
Structural Engineer: Kieffer Structural Engineering
Landscape Architect: Zahra Awang
Builder: Desar Construction Studio Inc.
Program / Use / Building Function: Residential
Millworker: Renca + Heilimo Inc
City: Toronto
Country: Canada