背景。该项目的客户是一对有两个年幼孩子的夫妇,他们希望重新改造家中拥挤的单元房,以创造宽敞的生活空间,使烹饪和玩耍能够共存。这家人位于伦敦洪斯洛区的伊斯尔沃思,在2018年9月委托Alder Brisco的建筑师James Alder和Thom Brisco之前,他们已经居住在这栋末尾的瓦房中好几年了。该项目由Alder Brisco于2020年3月完成。
Background. The project’s clients were a couple with two young children looking to rework the congested cellular rooms of their home, in order to create generous living spaces where cooking and play might coexist. Located in Isleworth in the London Borough of Hounslow, the family had occupied their end-of-terrace, interwar home for a number of years before appointing architects James Alder and Thom Brisco of Alder Brisco in September 2018. The project was completed by Alder Brisco in March of 2020.



与周围街区的大部分住房以及那个时期的住房一样,该房屋采用了普通的弗莱顿砖,其中门楣也在砖石中公开表达。一般来说,这些房屋的上层只使用泥浆。每个排屋的末端都有一个倾斜的瓦片屋顶,在排屋与一个共享的侧巷相接处。
Like much of the housing in the surrounding neighbourhood, and of the period, the house is constructed in a common Fletton brick, where lintels are also openly expressed within the masonry. Render is typically applied only to the upper levels of these homes. Each end of terrace property is finished in a hipped, tiled roof where the terrace meets a shared side alleyway.

该方案成功的核心是引导现有的1.3米的落差,从内部地面层到后花园下部的草坪和花坛。
Central to the success of the scheme would be the navigation of an existing 1.3 metre drop from the internal ground floor level to the lawn and beds of the lower rear garden.

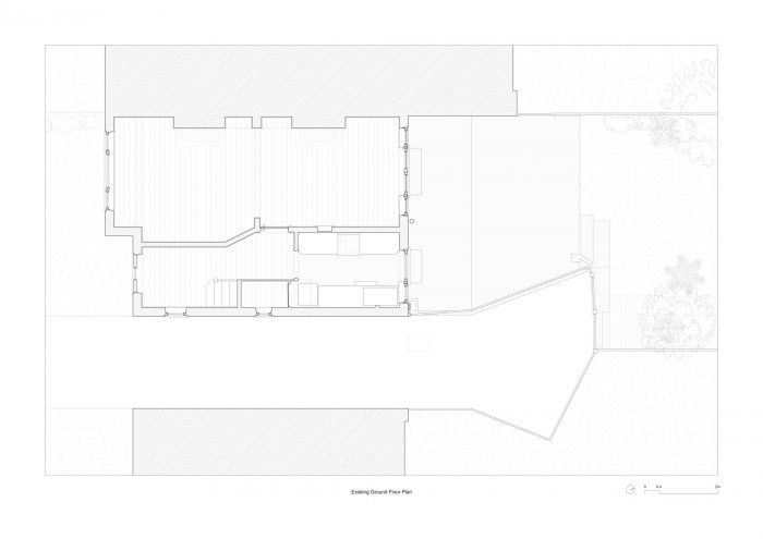
该方案。 该住宅的原始底层平面图采用了明确的分区策略,将较大的生活空间沿西侧的党墙布置;而次要的、辅助的和循环的空间则位于东侧。这种关系决定了前后立面的开口尺寸,入口门进入较窄的次要区域,而凸窗和宽大的天井门则为较大的生活空间服务。认识到这一既定模式,该方案在扩建部分的体量和门窗层次中统一了重新设计的底层平面,并提供了大量重新设计的花园景观设计。
The Scheme. The home’s original ground floor plan was arranged with a clear zoning strategy that positions the larger living spaces along the western party wall; while secondary, ancillary, and circulatory spaces sit to the east. This relationship then determines the size of both the front and the rear façade’s openings, where entrance doors enter narrower secondary zones, whilst a bay window and wide patio doors serve the larger living spaces. In recognition of this established pattern, the scheme unifies a reworked ground floor plan within the extension’s massing and fenestration hierarchy, as well as providing a heavily reworked garden landscape design.


扩建部分的体量被提升到西部,以创造一个体积宽敞的用餐空间,并配有一个高大的滑动玻璃门和屋顶灯。在这个门槛之外,一个砖砌的露台形成了宽阔的台阶,两边是花盆,家人和客人可以在这里休息,享受花园,并在下层庭院的独立餐桌区用餐。从房子的前面到花园,有一条不间断的路线,西侧的墙仍然是家庭主要生活活动的场所。
The extension’s massing is lifted to the west to create a volumetrically generous dining space with a tall sliding glazed door and roof light. Beyond this threshold, a brick terrace forms broad steps, flanked by planters, where family and guests can rest, enjoy the garden, and eat at the lower patio’s freestanding table area. With an unbroken route running from the front of the house through to the garden beyond, the western party wall remains host to the home’s principal living activities.

扩建部分的高度向东下降,就像屋顶上的臀部一样,并与邻近的房产相呼应。高度的变化表现在内部,门楣从扩建部分的前面延伸到后面,与底层剩余的隔板和住宅的传统空间模式相一致。一个新的玻璃门提供了通往花园的常规快速通道,更陡峭的楼梯下降到这一层。砖和门楣建造的花园门和墙构成了朝向花园的砖石形式堆叠的第三个体块。
The extension drops in height to the east, much as the hip does at roof level, and responds to the neighbouring properties. The change in height is expressed internally where lintels span from the front to the back of the extension in alignment with the ground floor’s remaining partitions and the home’s traditional spatial pattern. A new glazed door provides regular swift access to the garden, with steeper stairs dropping down to this level. A brick and lintel-built garden gateway and wall form the third mass in this stacking of masonry forms toward the garden.

考虑到项目的财务限制,在整个项目中使用了标准化的建筑构件,形成了一种经济的手段。这些都是有目的的,选择了最宽的现成的门楣跨度,以最大限度地扩大扩建部分的体积和后部通往花园的开口规模。Fletton砖被用来建造内墙和外墙,而平齐的堆叠式混凝土门楣和盖板则被暴露出来。凹槽木托梁和胶合板甲板完成了该方案内部的阶梯式檐口。
Given the financial constraints of the project, an economy of means was developed using standardised building components throughout. These were purposely utilised, with the broadest off-the-shelf lintel spans selected to maximise both the volume of the extension and the scale of the rear opening to the garden. Fletton bricks are used to build both internal and external walls, while flush, stacked concrete lintels and copings are left exposed throughout. Notched timber joists and a plywood deck complete the stepped soffit of the scheme internally.


原有的后立面的线条现在标志着厨房和新的用餐区之间的软门槛,有两个台阶,开始向花园缓缓下降。厨房的主要工作面被安排在前面的生活空间和新的后部餐厅,以确保家庭成员在准备食物时与周围的住宅活动保持一致。全宽的砖砌露台完成了通往花园的路线,其集成的花盆将用餐空间夹在简单的镶板厨房的绿色和下面生长的花园之间。
The line of the original rear façade now marks a soft threshold between the kitchen and the new dining area, with a drop of two steps that begin a gentle fall towards the garden. The kitchen’s principal work surfaces are arranged to address both the front living space and a new rear dining room, ensuring the engagement of family members preparing food with the surrounding activity of the home. The full width brick terrace completes the route to the garden with its integrated planters sandwiching the dining space between the green of the simple panelled kitchen and the growing garden below.






Architects: Alder Brisco
Area: 47 m²
Year: 2020
Photographs: Nick Dearden
Structural Engineer: Ameet Mistry
Main Contractor: P McLoughlin Builders
City:Isleworth
Country:United Kingdom