"Casa Cumbre "是一个住房项目,旨在通过将自然美景与现代精致和舒适相结合,重新诠释农村生活。它位于瓦拉斯港附近的拉斯奎马斯镇,寻求一种灵活的设计,以适应不同类型的空间和用途。
"Casa Cumbre" is a housing project that aims to reinterpret rural living by combining natural beauty with modern sophistication and comfort. Located in the town of Las Quemas, near Puerto Varas, it seeks a flexible design that can adapt to different types of spaces and uses.



这座房子位于该地区典型的放牧草地上,是一块空白的画布,使项目可以从头开始。它位于地块的后面,可以看到安第斯山脉的远景和周围树木的近景,以及随着时间的推移将建立的花园和果园。
The house is located in a typical grazing meadow of the region, a blank canvas that allowed the project to start from scratch. Its location at the back of the plot allows for distant views of the Andes mountain range and close-up views of the surrounding trees and the garden and orchard that will be created over time.



通过一条从东到西贯穿房屋的透明轴线来寻求最佳的阳光照射,捕捉日出和日落的光线。
An optimal solar exposure is sought through a transparent axis that runs through the house from east to west, capturing the light of sunrise and sunset.


该项目侧重于房屋的公共区域,客厅、餐厅和厨房融为一体,并具有双重高度,在一天中的不同时段接受阳光,提供宽敞的空间感和空间整合。一个小房间突出于这个空间,进一步增强了这种感觉。
The project focuses on the common areas of the house, with a living room, dining room, and kitchen integrated and with double height, which receives the sun at different times of the day and provides a sense of spaciousness and spatial integration. A small room protrudes over this space, further enhancing this feeling.


朝东,一个冬季花园被投射出来,作为室内和室外之间的一个中间空间,一个免受雨淋的地方,在晴朗的日子里帮助房屋取暖。这个空间是房子内部的延伸,也是房子里的植物和动物共存的地方。
Towards the east, a winter garden is projected that functions as an intermediate space between the interior and exterior, a place protected from the rain that on sunny days helps to heat the house. This space is an extension of the interior of the house and the place where the plants and animals of the house coexist.


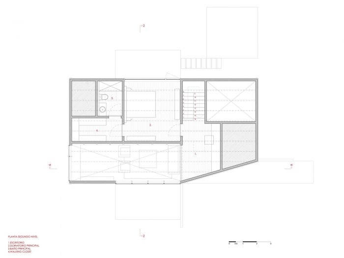
房子的形状是由它的内部程序决定的,第一层是主要的公共空间和一个客卧和浴室。在第2层,我们可以看到小房间和带有浴室和步入式衣橱的主卧室。山脊,或房子的最高点,与第二层的布局相呼应。
The shape of the house is given by its interior program, with level 1 housing the main common spaces and a guest bedroom and bathroom. On level 2, we find the small room and the master bedroom with its bathroom and walk-in closet. The ridge, or the highest point of the house, responds to the layout of the second level.


Casa Cumbre的结构系统是一个由钢和传统木制框架组成的混合结构的房子,黑锌的外表与木制细节相结合,创造出一种温暖的感觉,并邀请人们保护性地进入房子和它的露台。这些都是连接房子和地形的元素。
The structural system of Casa Cumbre is a house with a mixed structure of steel and traditional wooden framing, with a black zinc exterior combined with wooden details that create a feeling of warmth and invite protected access to the house and its terraces. These are the elements that connect the house with the terrain.

在内部,钢和木的结构元素被暴露出来。原生木地板和白色油漆的木墙有助于提高空间的自然亮度。
Inside, structural elements of steel and wood are exposed. The native wood floor and white-painted wooden walls contribute to the natural brightness of the space.


Casa Cumbre使用的木材是一种可持续的、环保的选择。通过在墙壁和地板上使用木材,减少了建筑的碳足迹,促进了对自然资源的负责任使用。此外,作为一种可再生和可生物降解的材料,木材是实现可持续建筑和与房屋所在的自然环境和谐的理想选择。
The wood used in Casa Cumbre is a sustainable and environmentally friendly choice. By using wood in the walls and floor, the carbon footprint of the construction is reduced and the responsible use of natural resources is promoted. In addition, being a renewable and biodegradable material, wood is an ideal option for achieving sustainable construction and harmony with the natural environment in which the house is located.














Architects: Viento Norte
Area: 150 m²
Year: 2020
Photographs:Matias Riveros
Manufacturers: Tablao PV, Wasser
Architects In Charge: Dulce Elena Sánchez, Valeria Perramont
Drawings: Teresita Polette
City: Puerto Varas
Country: Chile