弧形墙的房子位于圣地亚哥的郊区,在Chicureo区。客户的主要要求之一是,考虑到地中海夏季的高温,房子要尽可能凉爽。
The Curved Walls House is located on the outskirts of Santiago, in the Chicureo sector. One of the client's main requirements was that the house be as cool as possible, considering the high temperatures that are reached during the Mediterranean summer.




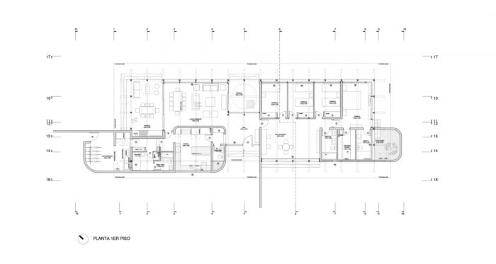
考虑到这种情况,我们提出了一个面向东北的单层住宅,有两个前提:建筑遮阳和热质量。
Considering this context, a one-story house facing northeast is proposed, with two premises: building shade and thermal mass.


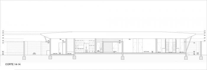
遮阳是通过一个大型的通风木质屋顶来实现的,它有宽大的屋檐,可以防止夏天的阳光进入。这个屋顶是用数控技术制造的,其结构是基于每1.8米重复的模块,由桁架和层压木柱组成。
Shade is achieved by means of a large ventilated wooden roof provided with wide eaves that prevent the entry of the sun in summer. This roof, manufactured with numerical control technology, is structured based on a module that is repeated every 1.8 meters, which is made up of trusses and laminated wood pillars.



热量是由独立于屋顶结构的砖墙提供的,它将房子的不同房间划分为两个区域;一个是公共区域,客厅、餐厅和厨房位于这里,另一个是私人区域,容纳卧室。
The thermal mass is given by the brick walls independent of the roof structure, which delimit the different rooms of the house, organized in two areas; a public area where the living room, dining room and kitchen are located, and a private area that houses the bedrooms.














Architects: Schwember García-Huidobro Arquitectos
Area: 272 m²
Year: 2020
Photographs:Nicolás Sánchez
Manufacturers: Arauco, Timber
Engineer: Patricio Bertholet
Architect: Fernando García-Huidobro
City: Chicureo
Country: Chile