在阿尔卑斯山中的放松,周围是风景如画的山脉。这个梦想在奥地利阿尔卑斯山的D号木屋中成为现实。D号木屋被设计成一个包括温泉区的度假木屋,几个友好的家庭可以在这里共同度过假期。
Relaxation in the middle of the Alps surrounded by picturesque mountains. This dream has become reality with Chalet D in the Austrian Alps. Chalet D was designed as a holiday chalet including a spa area, where several friendly families can spend their holidays together.




现代的重新设计为现有的建筑注入了新的活力,并使其与周围的环境形成对话。橡木、干石墙和裸露的横梁使小屋具有典型的阿尔卑斯山风格。外部区域的木材被处理成原来的样子。
The contemporary redesign breathes new life into the existing building and sets it in dialogue with its surroundings. Oakwood, dry stone walls, and exposed beams give the chalet a typical alpine flair. The wood of the exterior areas was treated back to its original appearance.



在内部,横梁已被修复,并通过深色的颜色使其可见。每层楼的大窗户提供了周围山脉的不同景色。浅色的橡木和众多的壁炉创造了一个温暖的环境,室内设计中的蓝色调是对水的一种点缀--这是温泉区放松的核心元素。
Inside, the cross beams have been restored and made visible through dark coloring. Large windows offer different views of the surrounding mountains on each floor. Light oak wood and numerous fireplaces create a warm environment and blue tones in the interior design are a nod to water - a central element of relaxation in the spa area.


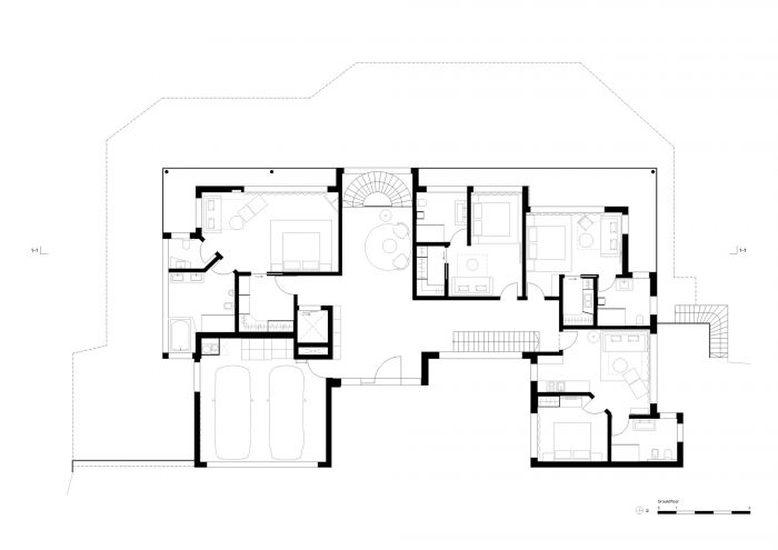
四间宽敞的卧室有自己的休息区和浴室,为顶层的人提供了撤退和放松的机会。现代化的厨房,以及位于中层的大型餐厅和宽敞的生活区,为公共生活创造了一个欢快的空间。一个大露台邀请客人在户外享受早餐,进行烧烤或沐浴阳光。在房子的最低层,是温泉区。软性材料的使用,柔和的色彩,以及五颜六色的LED照明,完美地促进了放松。
Four spacious bedrooms with their own lounge area and bathroom offer opportunities to retreat and relax on the top floor. A modern kitchen, as well as a large dining and spacious living area on the middle floor, create a convivial space for communal living. A large terrace invites guests to enjoy breakfast outdoors, have barbecues or soak up the sun. On the lowest floor of the house, there is the spa area. The use of soft materials, soft colors, and colorful LED lighting contribute perfectly to relaxation.
















Architects: monovolume architecture + design
Area : 950 m²
Year : 2021
Photographs :Meraner and Hauser
Design Team : Sergio Aguado Hernández, Astrid Hasler, Diego Preghenella
Country : Austria