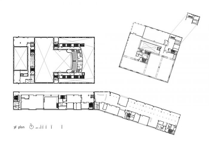
大东艺术中心位于台湾南部经济中心的高雄市。艺术中心连接了历史悠久的凤山区、一个主要的公园和凤山河的密集背景,通过在四个主要体量--剧院、展览馆、艺术图书馆和教育中心之间的膜覆盖的间歇性开放空间,创建了一个公共空间序列。
Dadong Art Center is located in Kaohsiung City in the economic center of southern Taiwan. Connecting the dense context of historic Feng-Shan District, a major park, and the Feng-Shan River, the Art Center creates a sequence of public spaces by means of membrane-covered interstitial open space between four major volumes- theater, exhibition hall, art library and the education center.



舞蹈、太极拳和各种游戏等活动对公共空间的密集使用是台湾城市户外使用的特点。薄膜屋顶为广泛的活动创造了一个遮阳条件。屋顶的形状可以防止极端的气候条件,如台风、定期的强降雨和夏季高温。屋顶上的宽孔将水引导到内部泉眼。温暖的空气上升到屋顶顶部的开口处,产生新鲜的内部气流。
The intensive use of public space by activities such as dance, Tai-Chi and various games characterizes outdoor use in Taiwanese cities. A membrane roof creates a shaded condition for a wide range of activities. The roof shape prevents against extreme climatic conditions such as Typhoon, periodically strong rain and high summer temperature. Wide holes in the roof guide the water to inner springs. Warm air rises to the top roof openings generating a fresh inner draft.

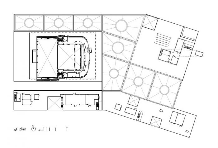
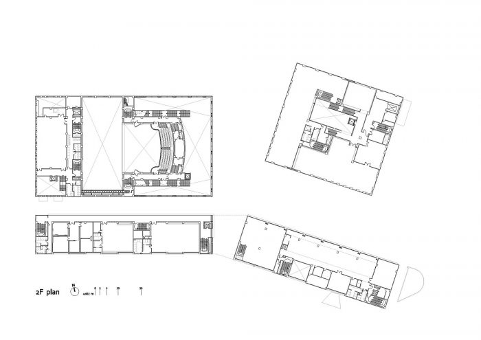
一个有900个座位的剧院和一个小的排练厅,用木头和穿孔金属填充,是这个项目的核心部分。剧院被设计成一个包含在X形混凝土外墙内的木质体。整个项目的外墙是同质的,但通过密度的微妙变化暗示了里面的项目。
A 900-seat theater and a small rehearsal hall, cladded in wood and perforated metal, are center pieces of the program. The theater is designed as a wood volume contained inside the X-shaped concrete facade. The facade of the whole project is homogenous, yet implies the program inside by subtle changes in density.

为了在音乐和剧院使用中达到最佳的声学效果,礼堂的天花板可以根据音乐和剧院的模式进行调整。吸音材料也可以在木质薄板后面伸缩。
In order to achieve optimal acoustics in both music and theater use, the ceiling of the auditorium is adjustable according to music and theater modes. Sound absorption materials are also retractable behind the wood lamella.


























Architects: MAYU architects, de Architekten Cie
Area: 36 m²
Year: 2012
Photographs: Yu-lin Chen, Guei-Shiang Ke
City:KAOHSIUNG CITY
Country:China