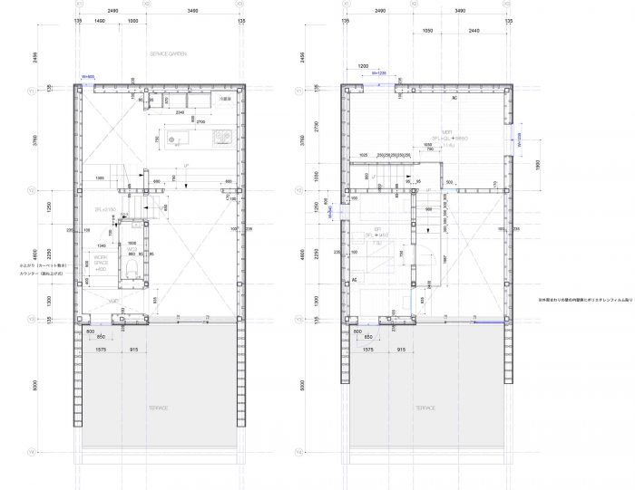
这是一个三层的住宅,靠近名古屋市中心。客户的要求是4个停车位(其中2个是带屋顶的),二楼的高顶客厅有充足的露台。
It is three stories residence near the central Nagoya city. Requirements of client are 4 parking spaces (2 of them are with roof) and high ceiling living room on second floor with ample terrace.



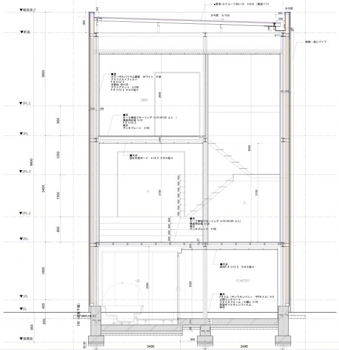
停车场的屋顶是由三层楼房的桁架构成的,因此可以在露台上使用。
Parking roof is trussed from three stories building, consequently there can be used at terrace.


车库已经成为不存在任何柱子的空间,这已经成为可能,这是2个带屋顶的停车位和一个宽阔的入口,在7米宽的地方。
By the garage has been become the space does not exist any columns, there has been made possible, which is 2 parking spaces with roof and a broad approach to entrance, at site of 7 meters’ width.


桁架成为露台的侧墙产生了两种效果。首先,切断了来自邻居和正面道路的视野,另一个是切断了城市景观和天空。
内部被墙体分割成四分之一,它被做成反常的分层住宅,考虑到房间的数量和要求是家庭的到来。
There have been made 2 effects by truss becoming side wall at terrace. First has cut the view from neighbor and frontal road, another has cut out the cityscape and sky.
Interior has been divided the square in quarters by put the wall and it has been made anomalous split-level house, in consideration for a number of rooms and a requirement is felt family’s coming


沿着墙做了巨大的开口,房间与房间之间有各种关系。
Along of the wall has been made huge openings, rooms have been got various relation to each other.


楼梯的交通线和每个房间的墙体开口都被规划成平时生活中的外部开放空间,因为阳光已经通过大开口和居住区的双层高度到达每个房间。
Traffic line as stairs and walls opening at each rooms has been planned to feel like exterior open space in usual life, because sunlight have been reached each rooms through big opening and double floor height at living.

通过白色和灰色的田字形墙面的存在,大开口的阳光可以有更强的层次感,可以感觉到走在螺旋式分层住宅上。
By the wall with the shape of 田 have been existed white color side and gray color side, the sunlight from big opening could have gradation more strongly and it could have been felt walking up spiral split-level house.

在给定的场地上存在着各种空间,成为宽阔的房屋,到处都有阳光照射。
It has been existed variety spaces in the given site and has become wide open house which is reached the sunlight everywhere.








Architects: Keitaro Muto Architects
Area : 159 m²
Year : 2017
Photographs :APERTOZERO
Manufacturers : Atsusi Fujio, Matsubara kenchiku shoji, Suzugen, Tokai koken
City:NAGOYA
Country:Japan