一家意大利餐厅,为平凡的一天带来了特别的东西。至于食物,意大利面和牛排等重口味食物被安排在'暗线'上。清淡的食物,如沙拉和甜点被安排在'光明线'上。以光明和黑暗的名义,'光明空间'试图表达光明和亮度、轻盈和开放的性质。'DARK SPACE'则表现为黑暗、沉重和封闭的空间。它被设计成一个光与暗循环的空间。
An Italian restaurant that brings something special to an ordinary day. As for food, heavy foods like pasta and steak are on the ‘dark line’. Light foods such as salads and desserts are organized in the ‘light line’. In the name of light and darkness, ‘LIGHT SPACE’ tried to express light and brightness, lightness, and open nature. ‘DARK SPACE’ is expressed as darkness, heaviness, and closed space. It was designed as a space where light and darkness circulate.



一家意大利餐厅,为平凡的一天带来特别的东西。至于食物,沉重的食物如意大利面和牛排都在'暗线'上。清淡的食物,如沙拉和甜点被安排在'光明线'上。以光明和黑暗的名义,'光明空间'试图表达光明和亮度、轻盈和开放的性质。'DARK SPACE'则表现为黑暗、沉重和封闭的空间。它被设计成一个光与暗循环的空间。
An Italian restaurant that brings something special to an ordinary day. As for food, heavy foods like pasta and steak are on the ‘dark line’. Light foods such as salads and desserts are organized in the ‘light line’. In the name of light and darkness, ‘LIGHT SPACE’ tried to express light and brightness, lightness, and open nature. ‘DARK SPACE’ is expressed as darkness, heaviness, and closed space. It was designed as a space where light and darkness circulate.


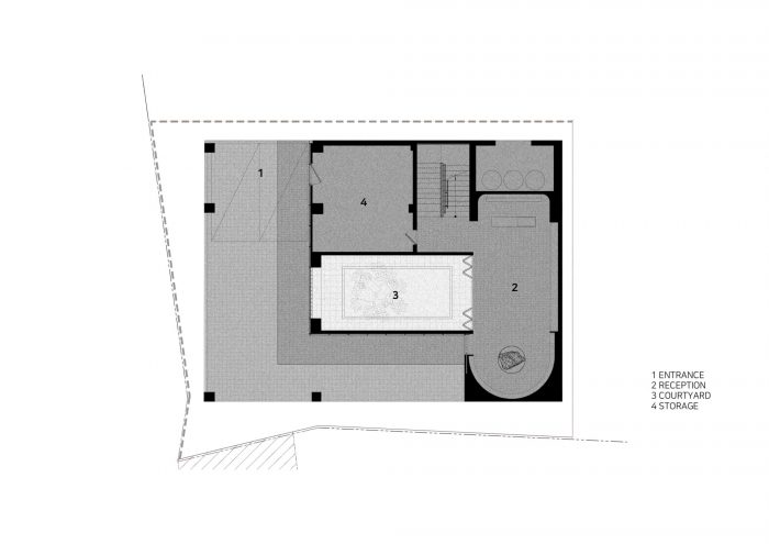
走廊的墙面由规则的网格重复组成,并安装了灯光,通往主入口。位于中间表面的玻璃块显示了内部空间的轮廓,引起了人们的好奇心。 在走廊的尽头,打开门,进入浮动岛。围绕浮岛的变色巴里索给人一种奇妙的感觉,仿佛来到了一个新的世界。穿过浮岛后,收到接待处的回复,上到二楼。
The wall of the hallway is composed of a regular grid repetition, and lights are installed to lead to the main entrance. The glass block located on the middle surface shows the silhouette of the interior space, arousing curiosity. At the end of the hallway, open the door and enter the floating island. The color-changing Barisol surrounding the floating island gives a fantastic feeling as if it came to a new world. After passing through the floating island, receive a response from the reception and go up to the second floor.


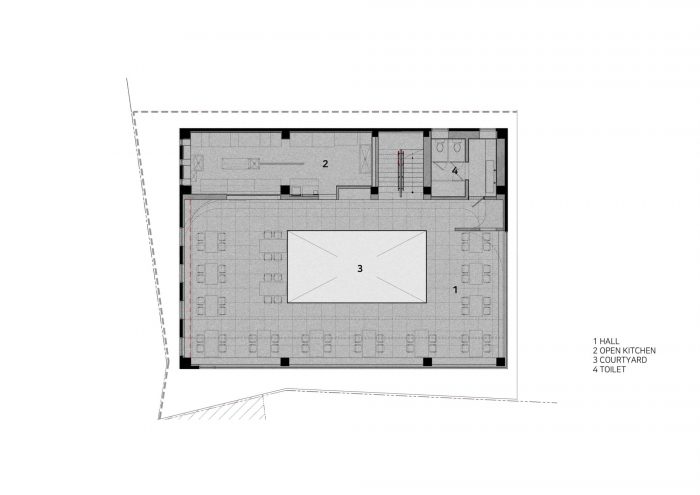
从一楼的过渡空间爬上楼梯,就到了二楼面向院子的餐厅。一楼和二楼的色调相当深沉厚重,一个明亮而温暖的庭院空间被放在中心位置,这样就可以从任何地方看到它。在二楼,弯曲的天花板被用作平面和立面,使单调的空间有了柔和舒适的形象。
Climbing the stairs from the transition space on the first floor leads to the restaurant on the second floor facing the courtyard. The first and second floors are in rather dark and heavy tones, and a bright and warm courtyard space is placed at the center so that it can be viewed from anywhere. On the second floor, the curved ceiling was used as a plane and elevation to give the image of a soft and cozy space to the monotone space.


除了厨房一侧外,在边缘的架子下做了一个小的景观线。无色,但粗糙和柔软的纹理,大大小小的瓷砖,以及各种装饰材料和形式的变化,确保了空间的不枯燥。从一楼到屋顶的长长的楼梯上做了景观设计和不落的太阳的雕塑。
A small landscaping line was made under the shelf around the edge, except for the kitchen side. Achromatic, yet rough and soft textures, large and small tiles, and various finishing materials and variations in form ensured that the space was not boring. Landscaping and sculptures of the sun that does not set are made on the long stairs from the first floor to the rooftop.

















Architects: Plainoddity
Area: 353 m²
Year: 2023
Photographs:Choi Yongjoon
Manufacturers: EU Toppos, SGB Korea, Seongan, TERRACO
Lead Architects: Kim Jihye
Landscape: DUGURU, POINT LANDSCAPE
Clients: Dark and Light
City: Seongnam-si
Country: South Korea