Davich Optical Chain是韩国具有代表性的眼镜连锁店之一,在全国拥有数百家门店,为消费者提供各种价格的眼镜。这个项目的客户要求我们除了作为一个专门的眼镜零售店外,还要用更独特的建筑形象来象征他们自己的品牌。换句话说,他们希望在这个连锁店中加入更多的豪华感和升级的形象(销售文化产品),而不仅仅是一个销售产品的普通眼镜店。
Davich Optical Chain is one of Korea’s representative eyeglass chains, having hundreds of stores throughout the nation and supplying consumers with eyeglasses at all prices. The client for this project asked us to symbolize their own brand with more unique and architectural identity, in addition to being as a special retail store for eyeglasses. In other words, they wanted that a more luxurious feel and upgraded image (selling culture products) are to be added to this chain, not just an ordinary optician’s for selling products.



一个早期的概念是从眼镜的形状--圆形开始的。圆圈的重复创造了眼镜重叠在一起的多样的外墙图案,它的目的是通过这种重复的群体提醒一个特定的形象。由整体图案组成的图像象征着河流的流动。建立Davich眼镜连锁店的创始人家乡的河流形状与圆形图案相结合,创造了立面的主要动机。
An early concept started from a circle, shape of glasses. The repetition of circles creates diverse patterns of façade which glasses are overlapped, and it was intended to remind of a specific image through groups of such repetition. The image made from groups of overall patterns symbolizes the flow of a river. The shape of the river in the hometown of the founder who established Davich Optical Chain was combined with a pattern of the circle, creating a major motive of the façade.

它的前提是位于首尔江南的代表性住宅区。这个地区由于有很多住宅楼和很多著名的学校,所以普通市民和学生都相当繁忙。尽管居住率很高,但商业设施,如百货公司,各种零售商店已经建在这个地区周围。8条陆路在连接江南主要地区方面发挥了重要作用,导致许多车辆从这里经过。建筑物的所有者希望对这个象征着Davich眼镜连锁店的建筑进行改造,使消费者能够获得各种文化体验。
Its premise is located at the representative residential area in Gangnam, Seoul. This area is quite busy with ordinary citizens and students due to a lot of residential buildings and a lot of prestigious schools. Despite of high residential rates, commercial facilities such as department stores, various retail shops have been built around this area. 8-land roads play an important role in connecting key areas of Gangnam to each other, which lead many vehicles to pass by here. The building owner desired to renovate this building which symbolizes Davich Optical Chain and enables consumers to have various kinds of cultural experiences.



除了正面曝光外,其他三面也将被重点改造。为了突出建筑的象征意义,该建筑被设定为增加高度,与其他相邻建筑的高度几乎相同。1楼的后侧根据法律规定设计了停车场,屋顶有各种功能的上层露台。
In addition to the front side exposed, the other three sides are focused to be renovated. The building is set to increase its height in order to highlight the symbolism of the architecture, being almost the same height as other neighboring buildings. The back side on the 1st floor is designed with parking lots pursuant to the laws, and rooftop with upper terrace of various functions.

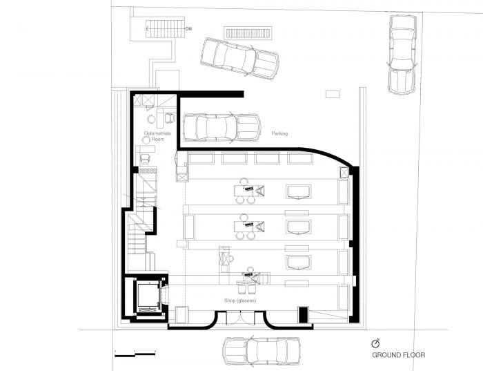
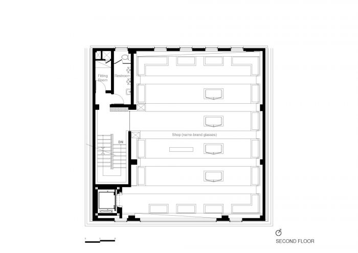
地上四层和地下室的区域将被用作专门的眼镜店,以各种价格为消费者提供各种品牌的眼镜。1楼有一个主入口,展示低价和中价的普通品牌。在这里参观的消费者按照指定的流程移动。消费者在眼镜店被接受后,按照一定的流程,如选择眼镜框,检查视力,在咖啡店待命,进行复查。通过考虑流程,适当地展示各种类型的眼镜是这个项目的一个非常重要的因素。2楼有各种品牌店,4楼有奢侈品牌产品(眼镜和太阳镜),4楼有助听器和高档品牌(眼镜)。地下室有一家隐形眼镜店和咖啡店,消费者可以在此等待眼镜制作完成。为了举办烧烤派对和外部活动,在屋顶设计了一个带有光束投影仪的迷你花园。
Areas with four floors above ground and a basement will be used as a specialized optician, offering consumers various brands of eyeglasses at all prices. The 1st floor has a main entrance, displaying low and middle priced general brands. Consumers who visit here move at the flow designated. After being accepted at the optician, consumers follow a certain process, such as selecting glasses frame, checking vision, standing by at the coffee shop for reexamination. Properly displaying various types of eyeglasses by considering the flow was a very important factor for this project. There are various brand shops on the 2nd floor, luxury brand products (eyeglasses and sunglasses), and hearing aids and premium brands (eyeglasses) on the 4th floor. A contact lens shop and coffee shop are located in a basement, which enables consumers to wait until their glasses are made. For a barbecue party and external events, a mini garden with a beam projector is designed on the rooftop.

外墙由三层板组成。由于该建筑的特点,没有必要向外开窗,因此靠近结构的两侧作为背景板执行防水和照明的功能。3,600块带玻璃图案的面板在这种主要的一面上相互作用,形成外墙。
Façade consists of triple panels. Due to the characteristics of this building, windows to outside are not necessary, thus sides near the structures perform a function as a background panel for waterproof and lighting. 3,600 panels with glasses pattern interact over such primary side, forming the façade.

决定外部形象的带玻璃图案的面板由内部和外部面板组成,它们交替放置。与不同大小的开口的面板相结合,使覆盖物具有丰富的立面纹理和深入的敏感性。各种光束的流动使其表面看起来略有不同。为了提高审美效果,在2毫米的铝材上要涂上阳极氧化涂层。
Panels with glasses pattern which determines the external image consist of inner and outer panels, which are placed alternately. Combining with panels in different sizes of openings leads coverings to have the rich texture of the façade and in-depth sensitivity. A flow of various light beams makes the surface look different slightly. To enhance the aesthetic effect, anodized coatings are to be applied over 2mm aluminum.

由于形状为玻璃的内外板相互交叉,支撑板的装配顺序和配置方法被认为是施工的重要部分。支撑3600块面板的垂直结构和垂直排列的水平支架以及LED灯都要按照一定的程序和规则来建造。
As inner and outer panels whose shape are glasses are intercrossed, the assembly order and configuration method of brackets which support the panels were considered an important part of the construction. The vertical structure which supports 3,600 panels and horizontal brackets which are bugled vertically and LED lights are to be constructed according to certain procedures and rules.

外墙将按照防水和照明的面板、内部面板和外部面板的顺序建造。特别是在这个立面的配置中,一个困难的部分是要为照明的安装和维护设置一个空间。照射后面板的擦墙灯是一个重要的装置,它将光线投射到玻璃的背面,让某种图案的图像在玻璃的缝隙间显现出来。这根据LED调光功能,在后端面板上照出各种不同的光感。此外,它还被设计为根据RGB编程的颜色变化来改变不同颜色的图像。在白天,它有助于保持铝(原材料)的真实感觉,而在晚上则根据一定的LED程序创造各种图像的外部图案。
The façade is to be constructed in order of panels for waterproof and lighting, inner panels, and outer panels. One of difficult parts especially in configuration of this façade was to set a space for lighting installation and maintenance. The wall grazer light which shines the back panel is an important device that projects light onto the back side of glasses and lets a certain patterned image come out between gaps of glasses. This shines a wide variety of light sensitivity at the rear-end panel according to the LED dimming function. Furthermore, it is designed to change images in different colors according to color variations of RGB programmed. During the daytime, it helps stay true to the feeling of aluminum (raw material), and at night create various images of outer pattern in accordance with the certain LED program.

对于内部装修,我们打算用眼镜图案形成外墙,与外部的眼镜图案的动机相同。换句话说,成为眼镜图案的铝塑板构成了展示眼镜的室内空间的主要立面。这种激光切割的外墙和黑铁板为主要空间创造了一种线性的感觉。另外,在地板上,环氧树脂衬里被应用在混凝土和砂浆上,目的是为了让所用的材料相互融合在一起。我们选择了具有独特流线型设计的家具,代表室内空间。横跨室内空间的展示厅里摆放着咨询台和视觉测量机等。
For interior finish, we intended to form the façade with the glasses pattern, same as the motive of glasses pattern on the outside. In other words, the Galvalume panels which become the motive of glasses form the main façade of the interior space which displays glasses. Such laser cut façade and black iron plate create a linear feeling for major space. Also for floors, epoxy lining is applied over concrete and mortar, intended for materials used to mingle with each other. We have selected the furniture with a unique streamlined design, representing the interior space. The show room across the interior space is furnished with consultation tables and vision measuring machines, etc.

整个建筑的特点是其商业用途和外部无窗,因此由封闭的外墙组成,外部三面无窗。三层板在韩国不同的气候变化中保持适当的温度是非常有效的。这些三层板,也被称为多层板,在夏天有规律地吸收太阳的热量。此外,侧窗和后窗以及空调和暖气系统有助于在建筑中定期供应和排出空气。我们不仅考虑了使用LED灯,它具有很好的热效率,可以抵御夜间形象广告所花费的大量电力,而且还考虑了它们的安装和维护费用,以实现合理的消费。
This entire building is characterized by its commercial use and non-windows on outside, thus consists of closed façade without windows on three sides of outside. Triple panels are very effective in maintaining an appropriate temperature for diverse climate changes in Korea. These triple panels, also known as multiple layer panels, absorb the heat of the sun in summer in a regular pattern. Moreover side and rear windows as well as the air-conditioning and heating system help supply and exhaust air regularly in the building. We have considered not only using LED lights with great excellent thermal efficiency against an enormous amount of power spent for image advertising at night, but also their installation and maintenance costs for reasonable consumption.

对于这个改造计划,确保火灾时的紧急出口是相当重要的。除了1楼的主出口外,在大楼后面的停车场也准备了一个副出口。疏散用的标志和其他标志图形在火灾发生时能引导人们迅速到达出口处。由于内部空间的主要楼梯都安装了灭火器和探测器,因此对火灾的安全有所关注。这座大楼配备了闭路电视,使人们能够有效地管理和应对安全问题。由于这些安全和保安系统是作为一个完整的电路来管理的;它们可以由主管控制。
For this renovation program, it is quite important to secure the emergency exits in case of fire. In addition to the main exit on the 1st floor, a sub exit is prepared at the parking lot in the back of the building. Signs and other sign graphics for evacuation guide people to exits promptly in case of fire. As fire extinguishers and detectors are installed in main stairs of interior space, safety is concerned for fire. This building is equipped with CCTVs, which enables people to effectively manage and cope with safety issues. As such safety and security systems are managed as an integrated circuit; they can be under control by the supervisor.








Architects: JOHO Architecture
Area : 182 m²
Year : 2015
Photographs :Thierry Sauvage, Jaehyeon KIM
Manufacturers : Alto, Albeco E&C
Gross Floor Area : 952.21sqm (Extended Area: 24.23sqm)
Architect In Charge : Jeonghoon LEE
Design Team : Bong-Gwi Hong, Jun-hee Cho, Moonyoung Jeong
City : Seoul
Country : South Korea