Jonathan Tuckey Design在英格兰东南部的一所学校内完成了一座新剧院。这座新剧院秉承了Jonathan Tuckey设计公司 "建筑在建筑上 "的承诺,并因此赢得了国际声誉,它在修复和加强现有校园方面发挥了重要作用。
Jonathan Tuckey Design has completed a new theatre on the grounds of a school in southeast England. True to the practice’s commitment to ‘building on the built’, for which it has earned an international reputation, the new theatre plays a vital role in repairing and enhancing the existing campus.




这座新的可持续发展建筑经过精心设计,与邻近的建筑协调一致,成功地将曾经毫无特色的停车场变成了一个充满活力的市民广场。Horris Hill是一所面向4至13岁男孩的寄宿制预备学校,位于伯克郡的一个乡村校园内。学校占地85英亩,有树林、运动场和一个厨房花园。户外教育和课外活动是学校的基本组成部分,这两点有助于Horris Hill保持全校的社区精神。
The new, sustainable building has been carefully crafted to sit in concert with the neighbouring buildings and succeeds in turning what was once a featureless car park into an animated civic square. Horris Hill is a day and boarding preparatory school for boys aged between 4 and 13, set within a rural campus in Berkshire. It is located on 85 acres containing woods, sports pitches, and a kitchen garden. Outdoor education and extracurricular activity are fundamental parts of the school, both of which help Horris Hill maintain a whole-school community ethos.

剧院以其主要捐赠人、大卫-布朗洛慈善基金会创始人大卫-布朗洛勋爵的名字命名,将极大地促进霍里斯山130名学生的个人发展。它将使学生有机会接触到戏剧实践的方方面面:表演、制作和设计--并将这些融入到学校的文化中。
The theatre, which is named after its main benefactor, Lord David Brownlow, founder of the David Brownlow Charitable Foundation, will significantly enhance the personal development of the 130 pupils attending Horris Hill. It will afford access to all aspects of theatre practice: performance, production, and design – and embed these into the culture of the school.



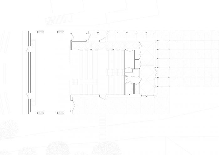
在教学时间之外,新剧院将通过当地的戏剧俱乐部和团体向更广泛的社区开放,在英国无数艺术场所关闭的时候,提供设施以维持这些活动。该项目设计用于举办学校集会、音乐演奏会和戏剧演出,由三个独特的空间组成,创造了一个四面八方的动态建筑,激活了整个校园。这三个空间包括一个160个座位的礼堂和表演空间;一个围绕入口门廊的聚集空间;一个位于南立面的室外露天剧场,面向树林和学校运动场,将剧场舞台延伸到周围的阿卡迪亚景观中。
Outside of teaching hours, the new theatre will open up to the wider community through local theatre clubs and groups, providing facilities to sustain these activities at a time when countless art venues are closing across the UK. Designed to host school assemblies, music recitals, and drama productions, the development comprises three unique spaces, creating a building which is animated on all sides, activating the whole campus. The three spaces include a 160-seat auditorium and performance space; a congregating space around the entrance portico; an outdoor amphitheatre on the south elevation, facing the woods and school playing fields, which extends the theatre stage into the surrounding Arcadian landscape.

该设计是2016年3月实践所赢得的一次邀请赛的结果。简要说明要求建造一座剧院,以扩展学校的艺术和戏剧课程--因为认识到表演艺术可以提高学生的信心、对语言的掌握、辩论技巧、演说和能力。
The design was the outcome of an invited competition, won by the practice in March 2016. The brief called for a theatre that would expand the arts and drama curriculum at the school – in recognition that performing arts improve pupils’ confidence, grasp of languages, debating skills, oratory and aptitude.

剧院取代了校园西侧一座建于上世纪70年代的模块化小屋。新建筑的位置与周围的环境略有不同,以拥抱该地潜在的城市性,在现有的建筑群中创造了一个市民广场。乔纳森-塔基设计公司采用了天然材料,创造了一个被动通风的剧院,它和谐地坐落在校园的森林环境中。它由交叉层压木材(CLT)建造,这是一种工程木结构系统,并以Viroc木纤维板覆盖。选择CLT框架的原因是它的成本效益和减少现场施工时间;它的规格确保了比传统的砌块结构节省40吨二氧化碳。
The theatre replaces a modular cabin built in the 1970s on the western side of the campus. The new building is positioned at a slight angle from its surroundings, to embrace the latent urbanity of the site, creating a civic square within the existing collection of buildings. Jonathan Tuckey Design has employed natural materials to create a passively ventilated theatre which sits harmoniously within the wooded setting of the campus. It is constructed of cross-laminated timber (CLT), an engineered wood structural system, and clad with Viroc wood fibre panelling. The CLT frame was chosen for its cost effectiveness and to reduce construction time on site; its specification has ensured a saving of 40 tonnes of CO2 compared to traditional blockwork.

剧院从周围的环境中汲取灵感,在材料和结构上有意识地加以区别。然而,Viroc立面的暖红色调使剧院与邻近的维多利亚式建筑和新近增建的建筑的土砖相映成趣。该设计在片材和平面的使用和衔接方面具有创新性。为了减少浪费,Viroc是在现场以外的地方用机器从板材上切割下来的,然后用手工拼接成一个个细木工件。
The theatre draws from its surroundings by being consciously distinct in materiality and structure. However, the warm red hue of the Viroc elevations roots the theatre in among the earthy brick of the neighbouring Victorian buildings and more recent additions. The design is innovative in its use and articulation of sheet materials and flat surfaces. The Viroc was machine cut off-site from sheets to reduce waste, and pieced together by hand as one object of joinery.

一个高大的门廊结构从北面的主要到达点宣布了剧院的存在,并激活了前面的新市民广场。它将作为一个广告牌来宣布剧院的演出和功能。
为小学生群体提供了一个集会空间。在内部,CLT框架是
戏院的上半部分是用深浅不一的山毛榉木条铺成的,以参考外部立面的衔接。木条的重复在底部更有规律,以强调结构的坚固性,并随着上升而扩散,以在剧院的上部创造出一种空间感。浅灰色的吸音板被引入整个剧场,以吸收声音并防止回声。
A tall portico structure announces the theatre from the main point of arrival to the north and activates the new civic square in front. It will be used as a billboard to announce theatre productions and functions as
an assembly space for small groups of pupils. Inside, the CLT frame is
left exposed and lined with beech battens of varying depths to reference the articulation of the external façade. The repetition of battens is more regimented at the base to emphasise the solidity of the structure, and diffused as it ascends to create a sense of a firmament in the upper part of the theatre. Light grey acoustic panels are introduced throughout to absorb sound and prevent echoes.

波浪形的天花板以深蓝色代表夜空,经过声学建模,将声音从舞台投射到观众席。地板是黑色抛光的Viroc,切割成一个图案,以参考文艺复兴时期教堂的华丽石地板。到达礼堂的顺序是通过一个入口大厅,隔音门槛和入口走廊进入礼堂,后方是舞台,后台区域和装卸区。储藏室和厕所隐藏在从入口大厅进入的耙形座位下面。
The undulating ceiling, finished in a deep dark blue to represent the night sky, has been acoustically modelled to project sound from the stage into the auditorium. The floor is black polished Viroc, cut into a pattern to reference the ornate stone floors of Renaissance churches. The arrival sequence is through an entrance lobby, acoustic threshold and entrance corridor into the auditorium with the stage, backstage area and loading bay to the rear. Storage and toilets are concealed beneath the raked seating accessed from the entrance lobby.

该项目从Christine Boyer的《集体记忆之城》一书中获得灵感,认识到剧院将成为日常生活的舞台。设计借鉴了历史上的主题,如都铎王朝剧院的站台、古典剧院的序厅和柱廊,以及文艺复兴时期教会建筑的主题。
The project draws inspiration from Christine Boyer’s book, The City of Collective Memory, in its recognition that the theatre will be a stage set for everyday life. The design borrows historical motifs such as the standing stalls of Tudor theatre, classical theatre proscenium and colonnade, as well as motifs from Renaissance ecclesiastical architecture.





































建筑师: Jonathan Tuckey Design
面积:274平方米
年份:2020年
摄影:Nick Dearden, Jim Stephenson
制造商:Viroc, Joinery Solutions
承包商:Vale Southern
结构工程师:Webb Yates Engineers
剧院顾问:Charcoalblue
机电工程:Skelly & Couch
工料测量师顾问:Marstan BDB
木工:Peak Carpentry
Clt结构:Eurban
首席建筑师:Molly Wheeler
城市:Newtown
国家:英国
Architects: Jonathan Tuckey Design
Area: 274 m²
Year: 2020
Photographs: Nick Dearden, Jim Stephenson
Manufacturers: Viroc, Joinery Solutions
Contractor:Vale Southern
Structural Engineer :Webb Yates Engineers
Theatre Consultant:Charcoalblue
M&E Engineering:Skelly & Couch
Quantity Surveyor Consultant:Marstan BDB
Joinery :Peak Carpentry
Clt Structure:Eurban
Lead Architects:Molly Wheeler
City:Newtown
Country:United Kingdom