"日托和协同工作 "为柏林科技大学新建造的日托中心和办公区 一个不寻常的项目现在已经被用户接管。两个建筑商和两种不同的用途,在低层是studierendenWERK BERLIN的日托中心,在上面两层是柏林理工大学的第一个协同工作区。在柏林,这两个机构首次以合作协议的形式合并,Studierendenwerk在这个项目中承担了客户的角色。
"Daycare & Coworking" New construction of a day-care center and office space for the Berlin University of Technology An unusual project has now been taken over by the users. Two builders and two different uses, on the lower floors the daycare center of the studierendenWERK BERLIN, in the two upper floors the first coworking areas of the Berlin University of Technology. For the first time in Berlin, both institutions have merged with a cooperation agreement and the Studierendenwerk has taken on the role of client for this project.



在此之前,我们对日托中心的地点和方式进行了长时间的讨论,在进一步的过程中,又为BHT增加了协同工作区。在为BHT场地上的日托中心寻找合适的建筑场地后,L. Hoffmann在1908-10年规划的Haus Beuth的位置被选为唯一可能的地点。新建筑必须与这个由主楼和两座角楼组成的纪念性建筑群相适应,其中一座在战争中被毁。现有建筑群和新建筑之间的对话是其建筑的特点。
This was preceded by a long discussion about the where and how of the daycare center, to which the coworking areas for the BHT were added in the further process. After a long search for a suitable building site for the daycare center on the BHT site, the location at Haus Beuth, a former school planned by L. Hoffmann in 1908-10, was selected as the only possible location. The new building had to fit into this monument ensemble, which consists of the main building and two corner houses, one of which was destroyed in the war. The dialogue between the existing ensemble and the new building characterizes its architecture.

历史上的角楼的体积和它的典型平面图决定了新的结构。它的外墙采用了现有建筑的网格和比例,并以一种有趣的方式重新解释了它们。外墙的材料以经典的石膏外墙为基础,将其转化为轻度灌浆的裸露砖石外墙,显示出其在整个建筑群中的独立元素。
The volume of the historic corner house and its typical floor plan determine the new structure. Its facade adopts the grid and proportions of the existing building and reinterprets them in a playful way. The material of the facade is based on the classic plaster facade, translating it into a lightly grouted exposed masonry facade, which shows itself as an independent element in the ensemble.

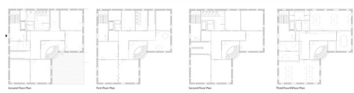
内部概念提供了界限清晰的房间,这些房间可以灵活地相互连接,用于日托中心和协同工作区。材料仅限于裸露的混凝土、橡木、白色的HWL天花板,以及一些颜色的点缀。内置的家具设置了额外的点缀,并且在每一层都有不同的设计。三角形、圆形和正方形,作为楼层的特征图案,给孩子们带来了良好的定位和识别。
The interior concept provides for clearly delimited rooms that are flexibly connected to each other, both for the daycare center and the coworking areas. The materials are limited to exposed concrete, oak, white HWL ceiling tiles, and a few color accents. The built-in furniture sets additional accents and is designed differently on each floor. Triangles, circles, and squares, which are characteristic of a floor as a motif, give the children good orientation and identification.



椭圆形平面图上的楼梯间是根据历史上的平面图开发的,它将日托所内部连接起来,为孩子们创造了额外的游戏区域。Kolb Ripke Gesellschaft von Architekten与EiSat GmbH Gesellschaft建筑咨询工程师、Marko Augustat + Partner GmbH和Dr. Gabriele Holst Landschaftsarchitektur一起,代表studierendenWERK BERLIN为柏林科技大学规划了这座日托中心的新建筑以及办公空间。这个新的建筑项目是创建家庭友好型大学的重要措施,因此为学习、工作和家庭的兼容做出了决定性的贡献。
A stairwell on an elliptical floor plan, which was developed from the historical floor plan, connects the daycare internally and creates additional play areas for the children. Kolb Ripke Gesellschaft von Architekten, together with EiSat GmbH Gesellschaft Consulting Engineers for Construction, Marko Augustat + Partner GmbH and Dr. Gabriele Holst Landschaftsarchitektur planned this new building of the day-care center as well as office space for the Berlin University of Technology on behalf of the studierendenWERK BERLIN. The new building project is an important measure for the creation of a family-friendly university and as such makes a decisive contribution to the compatibility of studies, work, and family.









Architects: Kolb Ripke Gesellschaft von Architekten
Area: 2279 m²
Year: 2021
Photographs: Hanns Joosten
Manufacturers: Recker Ziegelwerk Berentelg & Hebrok OHG/ABC Klinkergruppe
Lead Architects: Henry Ripke, Anh Pham Phuong
Structural Engineering: EiSat GmbH Berlin
Landscape: Dr. Gabriele Holst Landschaftsarchitektur
Technical Building Equipment:Marco Augustat+Partner GmbH
City:Berlin
Country:Germany